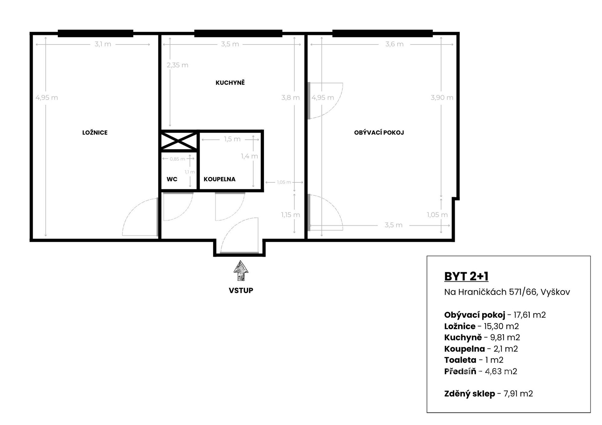
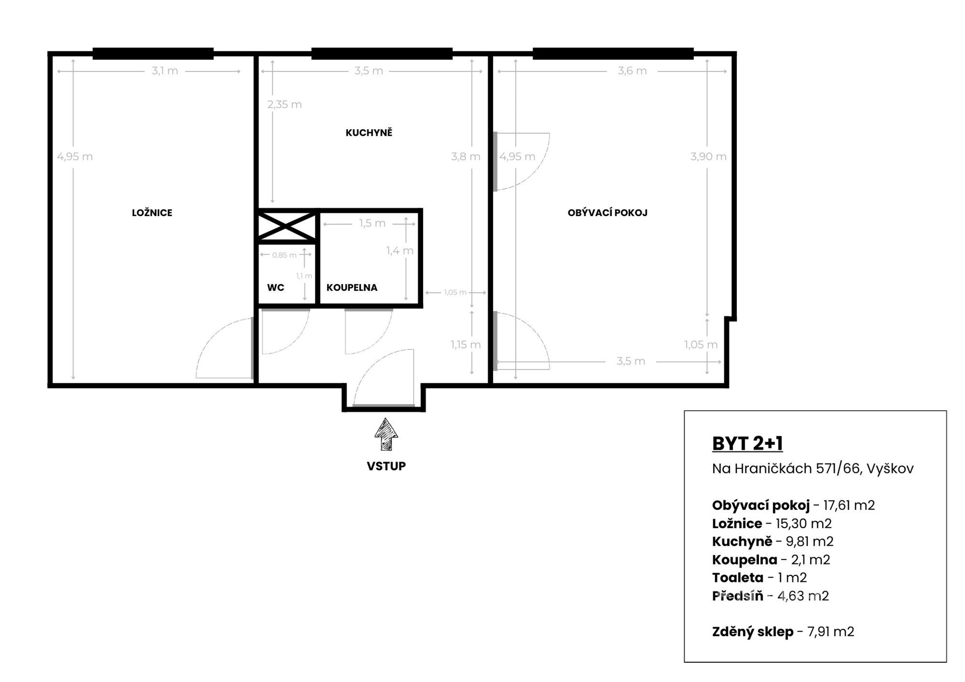
RealityMIX.cz

Kontaktujte makléře nemovitosti

David Gablas

David Gablas

420538728645

bonusbrno@century21.cz

Zobrazit kontakt
CENTURY 21 Bonus Brno

CENTURY 21 Bonus Brno

Křenová 241/69, Brno, 602 00

Detail kanceláře

Podobné nemovitosti

Zavolat
reklama
reklama