Představuji k prodeji dům se 4 byty a další budovu s garážemi na pozemku o celkové rozloze 1783 m2 v na adrese K Silu 40, Kuchař.
Podívejte se na samostatnou stránku nemovitosti odkaz ve videoprohlídce.
Obec Kuchař se nachází 10 min jízdy jihozápadně od Prahy a 10 min jízdy od Karlštejna, v okrese Beroun, u Vysokého Újezda.
Samotný dům je na vlastním oploceném pozemku na okraji obce.
Dispozice domu:
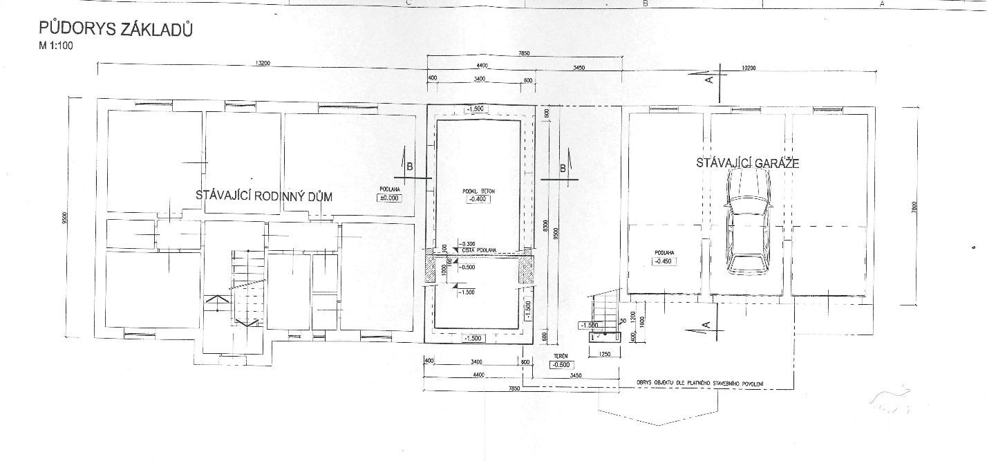
V domě jsou 4 bytové jednotky.
V přízemí:
1+1, 44 m2
3+1, 96 m2
V patře:
2+1, 60 m2
1+1, 44 m2
Byty jsou po rekonstrukci z let 2010 a 2016.
Součástí všech bytů je kuchyňská linka se spotřebiči z roku 2016.
V domě je velký půdní prostor s možností půdní vestavby a vzniku dalších 1 2 bytů. Na půdu vedou samostatné dveře, je zde vyvedena elektřina, voda, odpady a trubky pro topení. S výstavbou dalšího bytu se při rekonstrukci v roce 2016 počítalo.
Dům je částečně podsklepený, sklepní prostory jsou po rekonstrukci.
Vedle domu stojí stavba se 3 garážemi s elektrickými vraty a podkrovním prostorem. Tato budova ovšem vykazuje známky poškození. Je tedy možné ji buď opravit a zvětšit, nebo zdemolovat a místo ní postavit novou budovu (sklad, kanceláře, garáže...). STAVEBNÍ POVOLENÍ JE VYDANÉ na budovu o rozměru 11x24 m a do budovy jsou přivedeny přípojky (voda, elektřina, odpad a trubka pro připojení plynu). Současný majitel měl v plánu tuto budovu přestavět na velkou skladovací halu.
Vedle této budovy je podzemní sklep o výměře cca 6x3 m.
Technické informace:
Dům je cihlový, po částečné rekonstrukci. Vytápění je řešeno plynovým kotlem Vaillant, ohřev teplé vody boilerem Vaillant, vyhřívaným plynovým kotlem. V bytech jsou radiátory. V bytě 3+1 jsou navíc umístěná krbová kamna s novým komínem (2024).
Elektřina:
Sloupek je umístěn na hranici pozemku, je zde zaveden noční proud. V centrálním schodišti je v mezipatře umístěn hlavní elektrický rozvaděč (2016) s podružnými měřiči pro jednotlivé byty, půdu, garáž a společné prostory (chodba, sklepy, venkovní osvětlení). V každém bytě je osazen nový rozvaděč pro jednotlivé okruhy. Kompletní elektroinstalace rekonstruována v roce 2016.
Voda, odpady:
Celý objekt je napojen na vodovodní řád (VAK Beroun), odpady jsou svedeny do kanalizace.
Na pozemku je vlastní studna, ta se však pro občasný nedostatek vody v letních měsících nevyužívá. Čerpadlo ve studni umístěné je.
Na pozemku (pod přístavbou) je retenční nádrž o kapacitě cca 30m3. Je do ní svedena dešťová voda slouží jako zásobárna užitkové vody pro zalévání zahrady. Rozvody po celém domě jsou nové v plastu (2010 2016). Každý byt je vybaven měřičem pro studenou i teplou vodu.
Právní informace:
V bytech bydlí nájemníci s nájemními smlouvami na dobu určitou do 31.8.2026.
Na pozemku je zřízeno věcné břemeno pro GasNet z důvodu provozování plynové přípojky.
Dům je možné financovat hypotečním úvěrem, který zajistíme.
Uvedené výměry jsou orientační.
PENB je v přípravě, proto uvádíme třídu G.
Pomocí naší hypoteční kalkulačky si můžete udělat orientační představu o výši měsíčních splátek hypotéky. O vše ostatní se pak postaráme my ve spolupráci s našimi obchodními partnery.
97 170 Kč
* Odhadovaná měsíční splátka vychází z výše úvěru Kč s pevnou úrokovou sazbou % po celou dobu trvání úvěru.
Uživatel serveru RealityMIX.cz (dále jen „Server“) dostupného na internetové adrese (URL) https://www.realitymix.cz, který provozuje společnost DALTEN media s.r.o., se sídlem Na Harfě 916/9a, Praha 9, 190 00, IČO: 271 35 306 (dále jen „Správce“) jako provozovateli tohoto Serveru uděluje svůj výslovný souhlas v souladu s ustanovením § 5 zákona č. 101/2000 Sb. O ochraně osobních údajů a o změně některých zákonů, v platném znění (dále jen „zákon o ochraně osobních údajů“), se zpracováním uživatelem poskytnutých osobních údajů a dalších dat.
Uživatel poskytuje Správci osobní údaje v rozsahu: jméno, příjmení, e-mailová adresa, telefonický kontakt a další data, a to z důvodu projeveného zájmu o nemovitost, kde prostřednictvím služby Serveru Správce osloví Uživatel inzerenta uvedeného v detailu
nemovitosti - TAURUM reality s.r.o. (IČ 05904498) se zájmem o jeho služby.
Uživatel tyto osobní údaje poskytuje dobrovolně a bere na vědomí, že součástí služeb Správce, které Správce Uživateli poskytuje, je vyhledání všech Uživateli vyhovujících (dle parametrů - cena, typ nemovitosti, lokalita atd.) nemovitostí. Správce za tímto účelem provozuje aplikace Hlídací pes a newsletter. Tyto služby je možné z každého zaslaného emailu odhlásit. Souhlas se zpracováním osobních údajů Uživatel poskytuje Správci na dobu neurčitou s tím, že svůj udělený souhlas může Uživatel kdykoliv na drese správce info@realitymix.cz odvolat. Správce garantuje Uživateli i další práva uvedené v ustanovení §11 a §21 zákoba č. 101/200 Sb. Ve znění pozdějších předpisů.
Více informací o zpracování údajů získáte zde (realitymix.cz/zasady-ochrany-osobnich-udaju)