Prodej projektu s pozemkem se základovou deskou 1 067 m², Vysoký Újezd
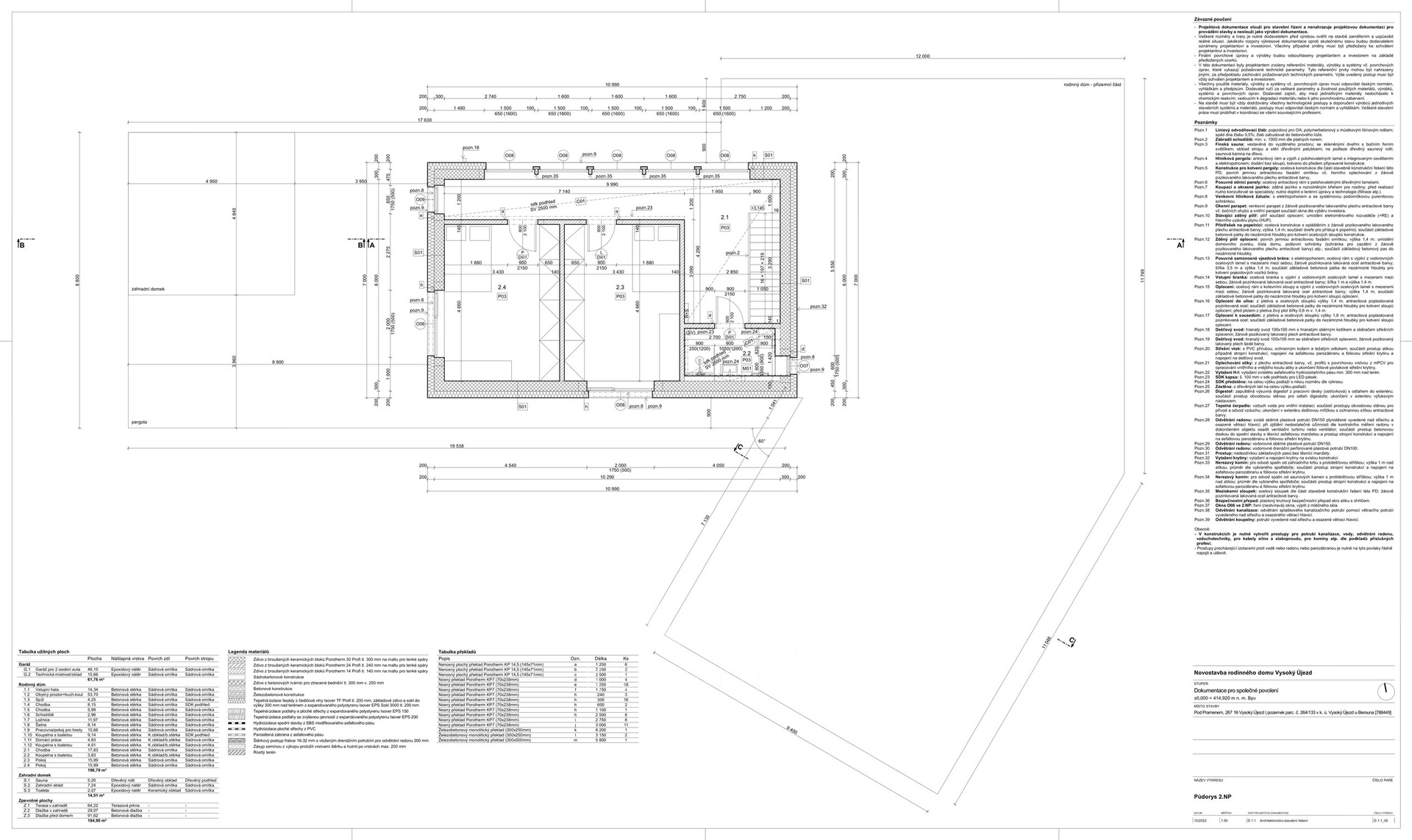
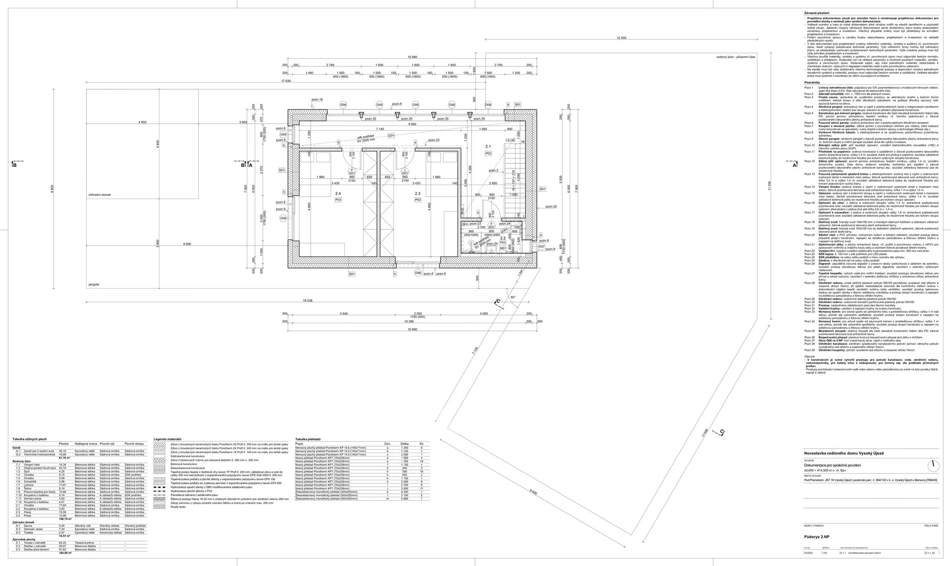
Hledáte místo, kde se sen o vlastním domě mění ve skutečnost? Ve Vysokém Újezdě už je ten nejtěžší krok hotový – projekt moderního rodinného domu o dispozici 5+kk a užitné ploše přibližně 260 m², který stojí na pozemku o výměře 1 067 m² s již dokončenou základovou deskou.
Pozemek je kompletně zasíťovaný a připravený k okamžité výstavbě. K dispozici je připravený projekt i platné stavební povolení a prověřená stavební firma, která stavbu již zahájila a může dům dokončit přesně podle projektu. Vy tak řešíte už jen to nejpříjemnější – výběr materiálů, styl interiéru a detaily, které z domu vytvoří skutečný domov podle vašich představ. Předpokládaná cena dokončeného domu včetně pozemku (jehož kupní cena činí 11.790.000 Kč) je od 29.990.000 Kč.
Výsledkem může být prostorný rodinný dům o velikosti 5+kk s užitnou plochou přibližně 260 m², navržený pro komfortní bydlení i reprezentativní životní styl.
Okolí nabízí všechno, co náročný životní styl vyžaduje. Pro milovníky gastronomie jsou tu dvě michelinské hvězdy restaurace Papilio a prestižní Locale Ristorante, pro sport a aktivní odpočinek Albatross Golf Resort, TJ Sokol, procházky v lesích u Tří Habrů či Českém krasu a klidná místa k meditaci, jako Jurtovna.
Praktické každodenní záležitosti zajišťuje Žabka, klinika BBJ Care Clinic, základní a mateřská škola i dětská hřiště. A přestože tu panuje absolutní klid a soukromí, Praha je pouhých 12 minut autem, takže spojení pohodlí a prestiže je dokonalé.
Taková nabídka se neobjevuje často. Pokud chcete být mezi těmi, kteří ji nepropásnou, domluvme si osobní prohlídku a podívejte se, jak může vypadat váš nový domov.
Uvedené výměry jsou orientační. V případě více zájemců může být nemovitost prodána nejlepší nabídce a majitel si vyhrazuje právo vybrat kupujícího dle jím zvolených kritérií. Veškeré zveřejněné údaje mají informativní charakter a nejsou nabídkou ve smyslu § 1731 nebo § 1732 občanského zákoníku, ani se nejedná o veřejný příslib dle § 1733 občanského zákoníku.
Pomocí naší hypoteční kalkulačky si můžete udělat orientační představu o výši měsíčních splátek hypotéky. O vše ostatní se pak postaráme my ve spolupráci s našimi obchodními partnery.
121 421 Kč
* Odhadovaná měsíční splátka vychází z výše úvěru Kč s pevnou úrokovou sazbou % po celou dobu trvání úvěru.
Uživatel serveru RealityMIX.cz (dále jen „Server“) dostupného na internetové adrese (URL) https://www.realitymix.cz, který provozuje společnost DALTEN media s.r.o., se sídlem Na Harfě 916/9a, Praha 9, 190 00, IČO: 271 35 306 (dále jen „Správce“) jako provozovateli tohoto Serveru uděluje svůj výslovný souhlas v souladu s ustanovením § 5 zákona č. 101/2000 Sb. O ochraně osobních údajů a o změně některých zákonů, v platném znění (dále jen „zákon o ochraně osobních údajů“), se zpracováním uživatelem poskytnutých osobních údajů a dalších dat.
Uživatel poskytuje Správci osobní údaje v rozsahu: jméno, příjmení, e-mailová adresa, telefonický kontakt a další data, a to z důvodu projeveného zájmu o nemovitost, kde prostřednictvím služby Serveru Správce osloví Uživatel inzerenta uvedeného v detailu
nemovitosti - Keller Williams Czech Republic (IČ 07796340) se zájmem o jeho služby. Tato společnost je součástí seskupení/sítě/franšízového modelu realitních kanceláří, jejich seznam můžete zobrazit kliknutím na tento odkaz.
Keller Williams Czech Republic (IČ 07796340) , Nemovito by Keller Williams (IČ 10826971) , Keller Williams Czech Republic (IČ 07796340) , Keller Williams - centrála (IČ 06521924)
Uživatel tyto osobní údaje poskytuje dobrovolně a bere na vědomí, že součástí služeb Správce, které Správce Uživateli poskytuje, je vyhledání všech Uživateli vyhovujících (dle parametrů - cena, typ nemovitosti, lokalita atd.) nemovitostí. Správce za tímto účelem provozuje aplikace Hlídací pes a newsletter. Tyto služby je možné z každého zaslaného emailu odhlásit. Souhlas se zpracováním osobních údajů Uživatel poskytuje Správci na dobu neurčitou s tím, že svůj udělený souhlas může Uživatel kdykoliv na drese správce info@realitymix.cz odvolat. Správce garantuje Uživateli i další práva uvedené v ustanovení §11 a §21 zákoba č. 101/200 Sb. Ve znění pozdějších předpisů.
Více informací o zpracování údajů získáte zde (realitymix.cz/zasady-ochrany-osobnich-udaju)