Pokud hledáte dům kousek od Prahy, který má pozemek pouze s jedním sousedem a je těsně před dokončením, tak čtěte dál.
V současné době se plánuje kolaudace, která bude pro nového vlastníka hotova.
Nemovitost se nachází na strategicky umístěném pozemku s jediným sousedem, což zajišťuje maximální míru soukromí a klid. Ideální pro rodiny, které hledají rovnováhu mezi přírodou a dostupností do města.
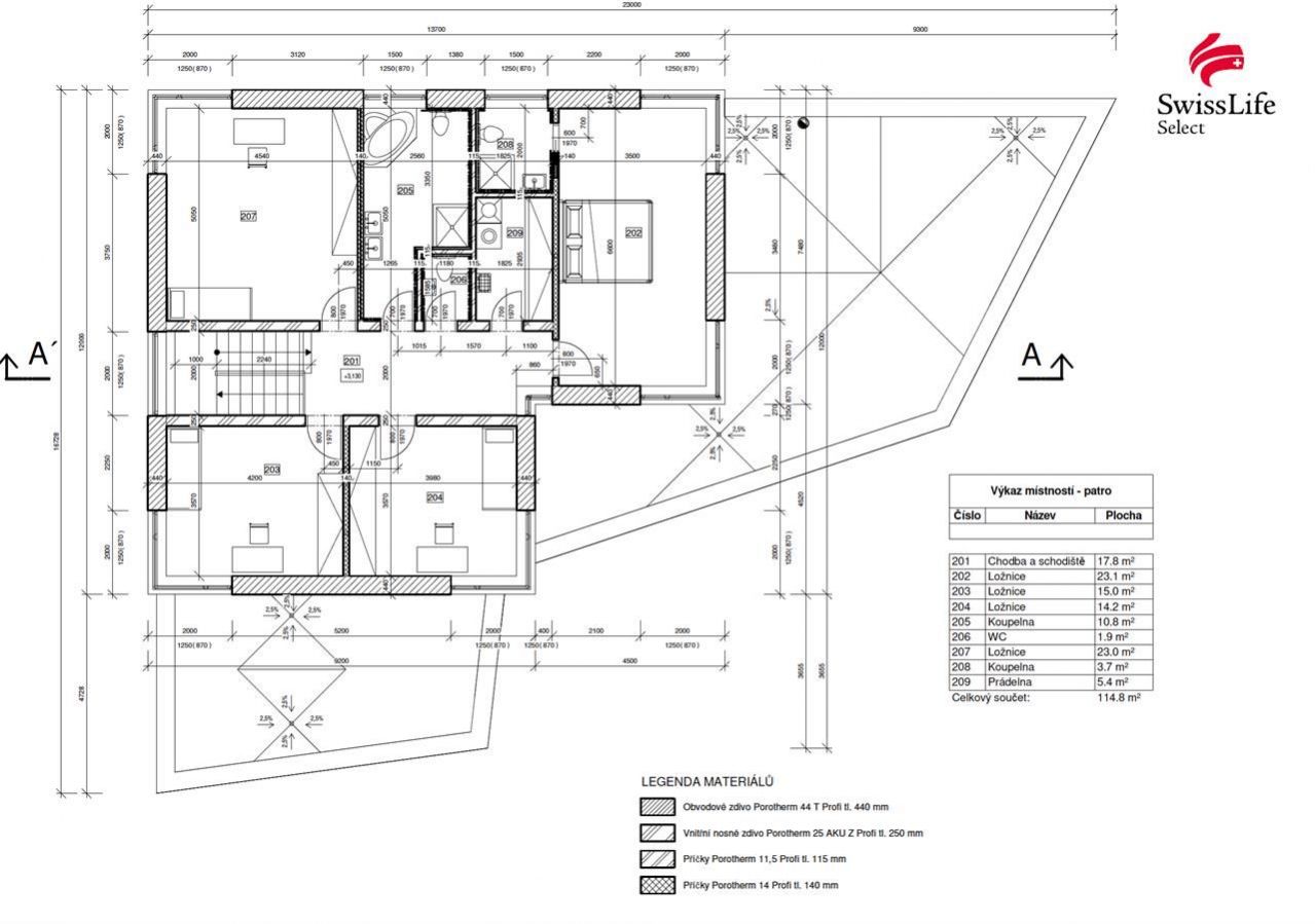
Krásný, moderní rodinný dům ve vyhledávané lokalitě Vysoký Újezd, jen pár minut od Prahy. Dům je těsně před dokončením, což Vám dává jedinečnou možnost doladit interiér dle vlastních představ.
Podlahová plocha: 238 m
Terasy: 44 m
Dispozice: 6+kk
Pozemek: 821 m
Zastavěná plocha: 197 m
Garáž: 42 m
Tepelné čerpadlo
Podlahové topení v celém domě včetně garáže
Krbová vložka
Příprava na fotovoltaiku
Příprava na autonabíječku
Hliníková panoramatická okna
Kolaudace možná v krátké době
Možnost klientských změn ve finální fázi
Moderní technologie a nadstandardní materiály
Na domě se stále intenzivně pracuje a majitel je připraven vše dokončit dle preferencí nového vlastníka. Pro lepší představu přidávám vizualizace toho, jak může finálně vypadat obývací pokoj.
Pomocí naší hypoteční kalkulačky si můžete udělat orientační představu o výši měsíčních splátek hypotéky. O vše ostatní se pak postaráme my ve spolupráci s našimi obchodními partnery.
79 760 Kč
* Odhadovaná měsíční splátka vychází z výše úvěru Kč s pevnou úrokovou sazbou % po celou dobu trvání úvěru.
Uživatel serveru RealityMIX.cz (dále jen „Server“) dostupného na internetové adrese (URL) https://www.realitymix.cz, který provozuje společnost DALTEN media s.r.o., se sídlem Na Harfě 916/9a, Praha 9, 190 00, IČO: 271 35 306 (dále jen „Správce“) jako provozovateli tohoto Serveru uděluje svůj výslovný souhlas v souladu s ustanovením § 5 zákona č. 101/2000 Sb. O ochraně osobních údajů a o změně některých zákonů, v platném znění (dále jen „zákon o ochraně osobních údajů“), se zpracováním uživatelem poskytnutých osobních údajů a dalších dat.
Uživatel poskytuje Správci osobní údaje v rozsahu: jméno, příjmení, e-mailová adresa, telefonický kontakt a další data, a to z důvodu projeveného zájmu o nemovitost, kde prostřednictvím služby Serveru Správce osloví Uživatel inzerenta uvedeného v detailu
nemovitosti - Swiss Life Select Reality (IČ 24260444) se zájmem o jeho služby. Tato společnost je součástí seskupení/sítě/franšízového modelu realitních kanceláří, jejich seznam můžete zobrazit kliknutím na tento odkaz.
Fincentrum a.s. (IČ 24260444) , Swiss Life Select Reality (IČ 24260444)
Uživatel tyto osobní údaje poskytuje dobrovolně a bere na vědomí, že součástí služeb Správce, které Správce Uživateli poskytuje, je vyhledání všech Uživateli vyhovujících (dle parametrů - cena, typ nemovitosti, lokalita atd.) nemovitostí. Správce za tímto účelem provozuje aplikace Hlídací pes a newsletter. Tyto služby je možné z každého zaslaného emailu odhlásit. Souhlas se zpracováním osobních údajů Uživatel poskytuje Správci na dobu neurčitou s tím, že svůj udělený souhlas může Uživatel kdykoliv na drese správce info@realitymix.cz odvolat. Správce garantuje Uživateli i další práva uvedené v ustanovení §11 a §21 zákoba č. 101/200 Sb. Ve znění pozdějších předpisů.
Více informací o zpracování údajů získáte zde (realitymix.cz/zasady-ochrany-osobnich-udaju)