Dlouhodobý pronájem bytu 2+1 s lodžií v žádané lokalitě Žamberk – Hledáme slušné a spolehlivé nájemníky!
Hledáte klidné a kvalitní bydlení s veškerými výhodami města?
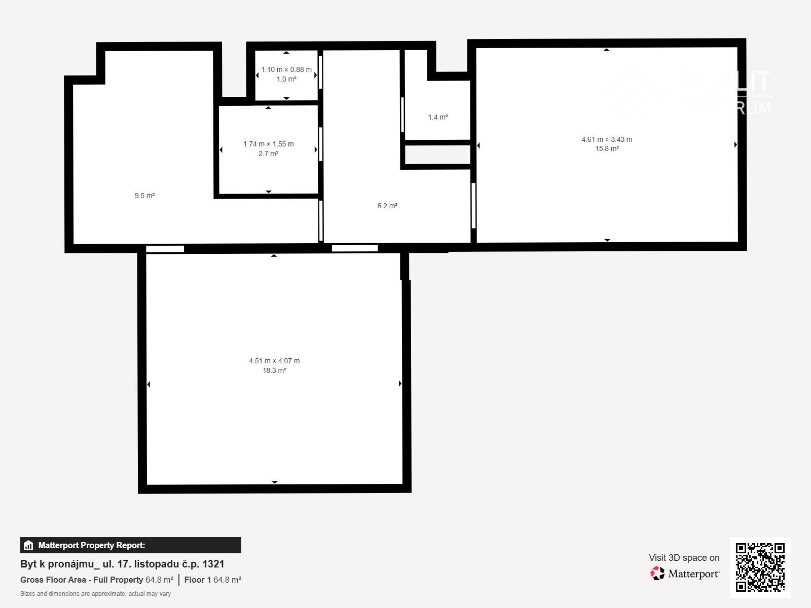
Nabízíme k dlouhodobému pronájmu světlý, prostorný byt 2+1 s orientační výměrou 55 m², který je ideální pro ty, kteří si chtějí vytvořit skutečný domov.
Klíčové vlastnosti bytu a domu:
• Lokalita: Vyhledávaná část města Žamberk s kompletní občanskou vybaveností (obchody, školy, školky, zdravotnická zařízení, sportoviště) v pěší dostupnosti.
• Dispozice: Byt 2+1.
• Stav: Původní, ale velmi dobrý stav, částečně vybavený.
• Relaxace: Prosklená lodžie (balkon) s příjemným výhledem na město a parkoviště.
• Úložné prostory: K bytu náleží sklepní kóje pro uskladnění sezónních věcí.
• Dům: PENB, energetická třída D, revitalizovaný panelový dům s výtahem, 3. patro.
Finanční podmínky:
• Měsíční nájemné: 9 400 Kč
• Zálohy na energie a služby: 4 500 Kč (závislé na počtu osob)
• Vratná kauce: 20 000 Kč (Požadavek na složení kauce je z důvodu zajištění
řádného užívání bytu.)
• Provize realitní kanceláři
• K nastěhování od: 01.07. 2026, po domluvě i dřívě
Náš požadavek na nájemníky:
Hledáme solidní a spolehlivé nájemníky, kteří budou byt obývat s respektem, kteří hledají pohodlí, dostatek místa a chtějí si vytvořit vlastní domov.
Neváhejte, volejte, těším se na prohlídky se všemi zájemci.
Cena:
9 400 Kč / (za měsíc)
Poznámka:
v textu, nutno připočítat zálohu na energie a služby
Uživatel serveru RealityMIX.cz (dále jen „Server“) dostupného na internetové adrese (URL) https://www.realitymix.cz, který provozuje společnost DALTEN media s.r.o., se sídlem Na Harfě 916/9a, Praha 9, 190 00, IČO: 271 35 306 (dále jen „Správce“) jako provozovateli tohoto Serveru uděluje svůj výslovný souhlas v souladu s ustanovením § 5 zákona č. 101/2000 Sb. O ochraně osobních údajů a o změně některých zákonů, v platném znění (dále jen „zákon o ochraně osobních údajů“), se zpracováním uživatelem poskytnutých osobních údajů a dalších dat.
Uživatel poskytuje Správci osobní údaje v rozsahu: jméno, příjmení, e-mailová adresa, telefonický kontakt a další data, a to z důvodu projeveného zájmu o nemovitost, kde prostřednictvím služby Serveru Správce osloví Uživatel inzerenta uvedeného v detailu
nemovitosti - REALIT SPEKTRUM s.r.o. (IČ 28803884) se zájmem o jeho služby.
Uživatel tyto osobní údaje poskytuje dobrovolně a bere na vědomí, že součástí služeb Správce, které Správce Uživateli poskytuje, je vyhledání všech Uživateli vyhovujících (dle parametrů - cena, typ nemovitosti, lokalita atd.) nemovitostí. Správce za tímto účelem provozuje aplikace Hlídací pes a newsletter. Tyto služby je možné z každého zaslaného emailu odhlásit. Souhlas se zpracováním osobních údajů Uživatel poskytuje Správci na dobu neurčitou s tím, že svůj udělený souhlas může Uživatel kdykoliv na drese správce info@realitymix.cz odvolat. Správce garantuje Uživateli i další práva uvedené v ustanovení §11 a §21 zákoba č. 101/200 Sb. Ve znění pozdějších předpisů.
Více informací o zpracování údajů získáte zde (realitymix.cz/zasady-ochrany-osobnich-udaju)