Prodej novostavby rodinného domu 114 m2, Žarošice - Silničná
Dovolujeme si Vám nabídnout prodej novostavby rodinného domu v malebné vesničce Silničná nedaleko od obce Žarošice. Z nemovitosti je překrásný výhled do krajiny. Nemovitost se nyní nabízí ve fázi hrubé stavby s možností dokončení na klíč dle přání klienta.
Celková výměra domu činní 113,6 m2
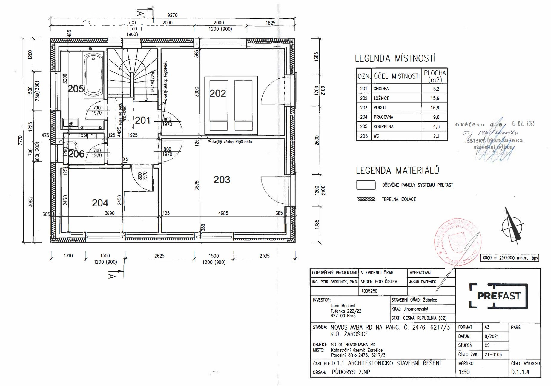
- 1.NP - 60,2 m2
- 2.NP - 53,4 m2
Celková výměra pozemků: 437 m2
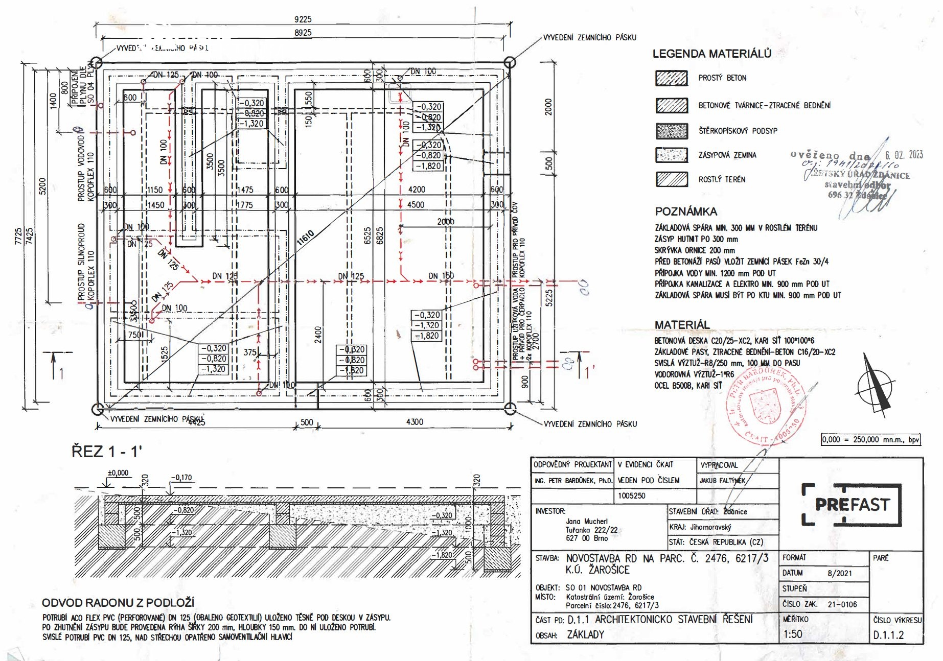
Objekt je postaven z porobetovnových tvárnic Porfix 250 mm
Aktuální rozestavěnost - hrubá stavba 1.NP, vylité stropy a zahájení výstavby 2.NP, v plánu je rovněž realizace střechy. Po dohodě může být provedeno osazení oken, zateplení, vnitřní instalace vody, elektřiny, vzduchotechniky, omítky, podlahy, dveře, atd.
Sítě na pozemku: voda, elektřina,
Kanalizace: objekt je napojen jímku o objemu 5 m3 a také na retenční nádrž pro dešťovou vodu o objemu 3 m3
Bližší informace rádi poskytneme na zavolání.
Pomocí naší hypoteční kalkulačky si můžete udělat orientační představu o výši měsíčních splátek hypotéky. O vše ostatní se pak postaráme my ve spolupráci s našimi obchodními partnery.
18 219 Kč
* Odhadovaná měsíční splátka vychází z výše úvěru Kč s pevnou úrokovou sazbou % po celou dobu trvání úvěru.
Uživatel serveru RealityMIX.cz (dále jen „Server“) dostupného na internetové adrese (URL) https://www.realitymix.cz, který provozuje společnost DALTEN media s.r.o., se sídlem Na Harfě 916/9a, Praha 9, 190 00, IČO: 271 35 306 (dále jen „Správce“) jako provozovateli tohoto Serveru uděluje svůj výslovný souhlas v souladu s ustanovením § 5 zákona č. 101/2000 Sb. O ochraně osobních údajů a o změně některých zákonů, v platném znění (dále jen „zákon o ochraně osobních údajů“), se zpracováním uživatelem poskytnutých osobních údajů a dalších dat.
Uživatel poskytuje Správci osobní údaje v rozsahu: jméno, příjmení, e-mailová adresa, telefonický kontakt a další data, a to z důvodu projeveného zájmu o nemovitost, kde prostřednictvím služby Serveru Správce osloví Uživatel inzerenta uvedeného v detailu
nemovitosti - REAL SPEKTRUM, a.s. (IČ 25314718) se zájmem o jeho služby.
Uživatel tyto osobní údaje poskytuje dobrovolně a bere na vědomí, že součástí služeb Správce, které Správce Uživateli poskytuje, je vyhledání všech Uživateli vyhovujících (dle parametrů - cena, typ nemovitosti, lokalita atd.) nemovitostí. Správce za tímto účelem provozuje aplikace Hlídací pes a newsletter. Tyto služby je možné z každého zaslaného emailu odhlásit. Souhlas se zpracováním osobních údajů Uživatel poskytuje Správci na dobu neurčitou s tím, že svůj udělený souhlas může Uživatel kdykoliv na drese správce info@realitymix.cz odvolat. Správce garantuje Uživateli i další práva uvedené v ustanovení §11 a §21 zákoba č. 101/200 Sb. Ve znění pozdějších předpisů.
Více informací o zpracování údajů získáte zde (realitymix.cz/zasady-ochrany-osobnich-udaju)