Prodej rodinného domu 4+1 se zahradou, stodolou a dílnou - Žárovná, okres Prachatice
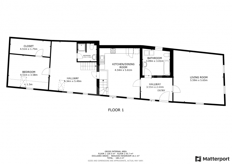
Nabízím k prodeji rodinný dům o dispozici 4+1 v klidné obci Žáro vná na Šumavě, který je vhodný jak pro rodinné bydlení, tak pro kombinaci bydlení a podnikání. Dům má celkovou užitnou plochu necelých 300 m2, je částečně podsklepený přibližně z 30 m2 a stojí na pozemku o celkové výměře 1 690 m2. Součástí nemovitosti je také prostorná stodola a dílna o velikosti 92 m2, která je vybavena vlastním sociálním zázemím, tedy toaletou, sprchou a umyvadlem.
Dispozičně dům nabízí čtyři samostatné pokoje, prostornou kuchyň a dvě koupelny, z nichž jedna je vybavena vanou a toaletou a druhá sprchovým koutem a toaletou. Vytápění domu je řešeno elektrokotlem v kombinaci s podlahovým topením. Nemovitost je napojena na veřejný vodovod, k dispozici je také vlastní studna a odpad je sveden do obecní kanalizace. Velkou výhodou je podkroví, které nabízí možnost další úpravy a rozšíření obytného prostoru dle vlastních představ.
Obec Žárovná se nachází v malebné oblasti Šumavy s dobrou dostupností do okolních měst. Šumavské Hoštice jsou vzdálené 2 km, Vimperk přibližně 8 km a Prachatice 15 km. Lokalita nabízí klidné prostředí, dostatek soukromí a zároveň velmi dobrou dostupnost občanské vybavenosti i přírody.
Jmenuji se Vítězslav Novák a jako realitní makléř vám zajistím kompletní servis spojený s koupí této nemovitosti, včetně vyřízení financování za nejlepších možných podmínek u kterékoliv banky. Pro podnikatele nabízím také možnost financování bez nutnosti prokazování příjmů. V případě zájmu o více informací nebo domluvení osobní prohlídky mě neváhejte kontaktovat.
Pomocí naší hypoteční kalkulačky si můžete udělat orientační představu o výši měsíčních splátek hypotéky. O vše ostatní se pak postaráme my ve spolupráci s našimi obchodními partnery.
26 114 Kč
* Odhadovaná měsíční splátka vychází z výše úvěru Kč s pevnou úrokovou sazbou % po celou dobu trvání úvěru.
Uživatel serveru RealityMIX.cz (dále jen „Server“) dostupného na internetové adrese (URL) https://www.realitymix.cz, který provozuje společnost DALTEN media s.r.o., se sídlem Na Harfě 916/9a, Praha 9, 190 00, IČO: 271 35 306 (dále jen „Správce“) jako provozovateli tohoto Serveru uděluje svůj výslovný souhlas v souladu s ustanovením § 5 zákona č. 101/2000 Sb. O ochraně osobních údajů a o změně některých zákonů, v platném znění (dále jen „zákon o ochraně osobních údajů“), se zpracováním uživatelem poskytnutých osobních údajů a dalších dat.
Uživatel poskytuje Správci osobní údaje v rozsahu: jméno, příjmení, e-mailová adresa, telefonický kontakt a další data, a to z důvodu projeveného zájmu o nemovitost, kde prostřednictvím služby Serveru Správce osloví Uživatel inzerenta uvedeného v detailu
nemovitosti - Bidli reality, a.s. (IČ 06790763) se zájmem o jeho služby. Tato společnost je součástí seskupení/sítě/franšízového modelu realitních kanceláří, jejich seznam můžete zobrazit kliknutím na tento odkaz.
Hypocentrum modré pyramidy - Praha (IČ ) , Hypocentrum modré pyramidy - Brno (IČ ) , Hypocentrum Modré pyramidy - Hradec Králové (IČ ) , Hypocentrum Modré pyramidy - České Budějovice (IČ ) , Hypocentrum Modré pyramidy - Pardubice (IČ ) , Hypocentrum Modré pyramidy - Plzeň (IČ ) , Hypocentrum Modré pyramidy - Ústí nad Labem (IČ ) , Hypocentrum Modré pyramidy - Ostrava (IČ ) , Hypocentrum Modré pyramidy - Olomouc (IČ ) , Bidli reality, a.s. (IČ 06790763)
Uživatel tyto osobní údaje poskytuje dobrovolně a bere na vědomí, že součástí služeb Správce, které Správce Uživateli poskytuje, je vyhledání všech Uživateli vyhovujících (dle parametrů - cena, typ nemovitosti, lokalita atd.) nemovitostí. Správce za tímto účelem provozuje aplikace Hlídací pes a newsletter. Tyto služby je možné z každého zaslaného emailu odhlásit. Souhlas se zpracováním osobních údajů Uživatel poskytuje Správci na dobu neurčitou s tím, že svůj udělený souhlas může Uživatel kdykoliv na drese správce info@realitymix.cz odvolat. Správce garantuje Uživateli i další práva uvedené v ustanovení §11 a §21 zákoba č. 101/200 Sb. Ve znění pozdějších předpisů.
Více informací o zpracování údajů získáte zde (realitymix.cz/zasady-ochrany-osobnich-udaju)