© 1999–2026 DALTEN media s.r.o.
Brodská, Žďár nad Sázavou 3, Žďár nad Sázavou
3 250 000 KčBrodská, Žďár nad Sázavou 3, Žďár nad Sázavou
| Cena: | 3 250 000 Kč |
| Hypotéka: | od 13 158 Kč/měsíc |
| Datum k nastěhování: | 01.12.2025 |
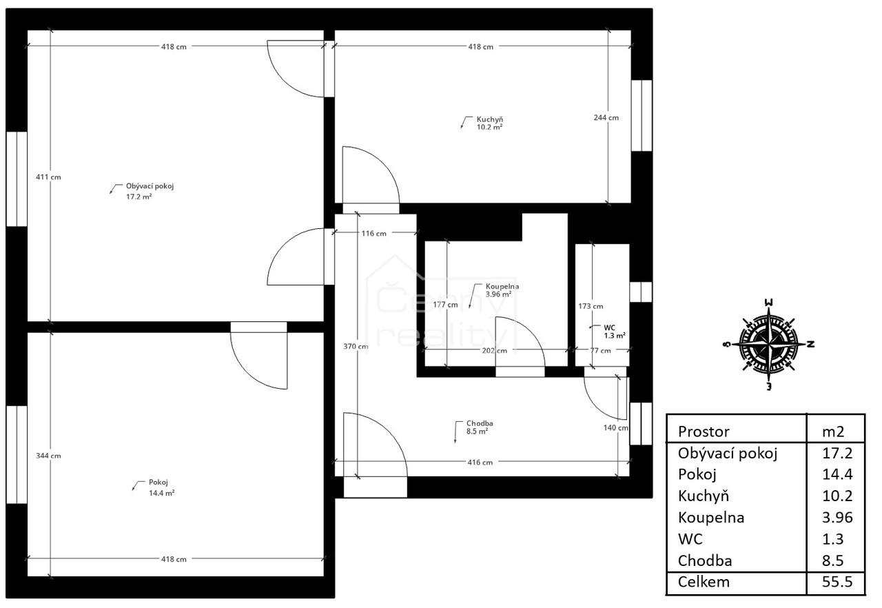
| Dispozice/podlahová plocha: | 2+1/65 m² |
| Číslo zakázky: | REALITYMIX-707 |
Pomocí naší hypoteční kalkulačky si můžete udělat orientační představu o výši měsíčních splátek hypotéky. O vše ostatní se pak postaráme my ve spolupráci s našimi obchodními partnery.