Rodinný dům se zahradou a výhledem Stará Zvonice, Zdice
Hledáte místo, kde se snoubí historie, klid, prostor a nádherný výhled do zeleně?
Pak právě v ulici Stará Zvonice na vás čeká dům s duší, který nabízí obrovský potenciál ať už k rekonstrukci, přestavbě nebo zcela novému životu podle vašich představ.
Na pozemku o celkové výměře 1 709 m (parc. 1323 a 1324) stojí původní rodinný dům o dispozici 3 + kk, částečně podsklepený.
V přízemí se nachází obývací pokoj s kuchyní, ložnice, koupelna, toaleta s úložným prostorem a vstupní chodba.
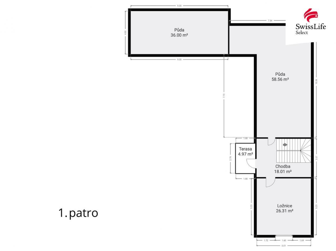
Po schodech nahoru se dostanete do menšího otevřeného prostoru, ideálního třeba pro piano nebo knihovnu, a dále do druhé ložnice.
V patře je dále vchod na rozsáhlou půdu, kde se pohodlně dají vybudovat další jeden, dva pokoje.
Malá část domu je podsklepena (původní sklad uhlí).
Z vnější strany je samostatný vstup do dílny, která může být po propojení využita jako další obytný prostor.
Na dům navazují kůlna (další dílna), sklad a bývalý chlév ideální pro skladování, rekonstrukci nebo rozšíření obytné části.
Součástí pozemku je také samostatně stojící garáž se skladem/dílnou (cca 43 m zastavěné plochy), odkud se otevírá úchvatný výhled na zeleň a panoramata Berounska.
Na zahradě je funkční studna využívaná k zalévání, ovocné stromy, a v dolní části také bývalé včelí úly, které připomínají rodinnou tradici výroby medu.
Zahrada je kaskádovitá, prostorná a plná soukromí, ideální pro relaxaci i pěstování.
Dům má obuvnickou historii kdysi zde rodina provozovala menší výrobu obuvi.
Součástí prodeje je také vypracovaný moderní projekt (k rekonstrukci nebo komerčnímu využití), který je stále možné realizovat.
Ulice Stará Zvonice patří mezi nejklidnější části Zdic, přitom jen pár minut pěšky od náměstí.
V blízkosti se nachází barokní kostel z 18. století, železniční stanice i autobusové spojení.
Do Berouna se dostanete autem za 10 minut, na Prahu Zličín za 25 minut.
V místě je kompletní občanská vybavenost školy, školky, obchody, zdravotní péče i velké koupaliště Zdice.
V okolí najdete oblíbené výletní cíle Koněpruské jeskyně (15 min), hrad Karlštejn (25 min), nebo lesopark Knihov (10 min pěšky).
Dům spadá do programu Oprav dům po babičce (SFŽP) lze tedy čerpat státní dotaci na rekonstrukci až do výše 1,3 milionu Kč a zároveň získat výhodný úvěr na zateplení, výměnu oken, střechy či vytápění.
Pro nové majitele to znamená výraznou úsporu nákladů na rekonstrukci.
Tento dům není o číslech, ale o prostoru, atmosféře a možnostech. Spojuje klid, historii a potenciál, který dnes na Berounsku hledá málokdo.
Je nutné ho vidět osobně fotky ani text nedokážou vystihnout výhled, kouzlo zahrady ani energii tohoto místa.
Pomocí naší hypoteční kalkulačky si můžete udělat orientační představu o výši měsíčních splátek hypotéky. O vše ostatní se pak postaráme my ve spolupráci s našimi obchodními partnery.
40 406 Kč
* Odhadovaná měsíční splátka vychází z výše úvěru Kč s pevnou úrokovou sazbou % po celou dobu trvání úvěru.
Uživatel serveru RealityMIX.cz (dále jen „Server“) dostupného na internetové adrese (URL) https://www.realitymix.cz, který provozuje společnost DALTEN media s.r.o., se sídlem Na Harfě 916/9a, Praha 9, 190 00, IČO: 271 35 306 (dále jen „Správce“) jako provozovateli tohoto Serveru uděluje svůj výslovný souhlas v souladu s ustanovením § 5 zákona č. 101/2000 Sb. O ochraně osobních údajů a o změně některých zákonů, v platném znění (dále jen „zákon o ochraně osobních údajů“), se zpracováním uživatelem poskytnutých osobních údajů a dalších dat.
Uživatel poskytuje Správci osobní údaje v rozsahu: jméno, příjmení, e-mailová adresa, telefonický kontakt a další data, a to z důvodu projeveného zájmu o nemovitost, kde prostřednictvím služby Serveru Správce osloví Uživatel inzerenta uvedeného v detailu
nemovitosti - Swiss Life Select Reality (IČ 24260444) se zájmem o jeho služby. Tato společnost je součástí seskupení/sítě/franšízového modelu realitních kanceláří, jejich seznam můžete zobrazit kliknutím na tento odkaz.
Fincentrum a.s. (IČ 24260444) , Swiss Life Select Reality (IČ 24260444)
Uživatel tyto osobní údaje poskytuje dobrovolně a bere na vědomí, že součástí služeb Správce, které Správce Uživateli poskytuje, je vyhledání všech Uživateli vyhovujících (dle parametrů - cena, typ nemovitosti, lokalita atd.) nemovitostí. Správce za tímto účelem provozuje aplikace Hlídací pes a newsletter. Tyto služby je možné z každého zaslaného emailu odhlásit. Souhlas se zpracováním osobních údajů Uživatel poskytuje Správci na dobu neurčitou s tím, že svůj udělený souhlas může Uživatel kdykoliv na drese správce info@realitymix.cz odvolat. Správce garantuje Uživateli i další práva uvedené v ustanovení §11 a §21 zákoba č. 101/200 Sb. Ve znění pozdějších předpisů.
Více informací o zpracování údajů získáte zde (realitymix.cz/zasady-ochrany-osobnich-udaju)