Hledáte chalupu „na samotě u lesa“? Máte rádi Šumavu, cyklovýlety, turistiku, lyžování a chcete si občas odpočinout od ruchu města?
Ve výhradním zastoupení majitelů vám nabízíme k prodeji kompletně zrekonstruovanou chalupu na polosamotě v Branišově u Zdíkova (okr. Prachatice).
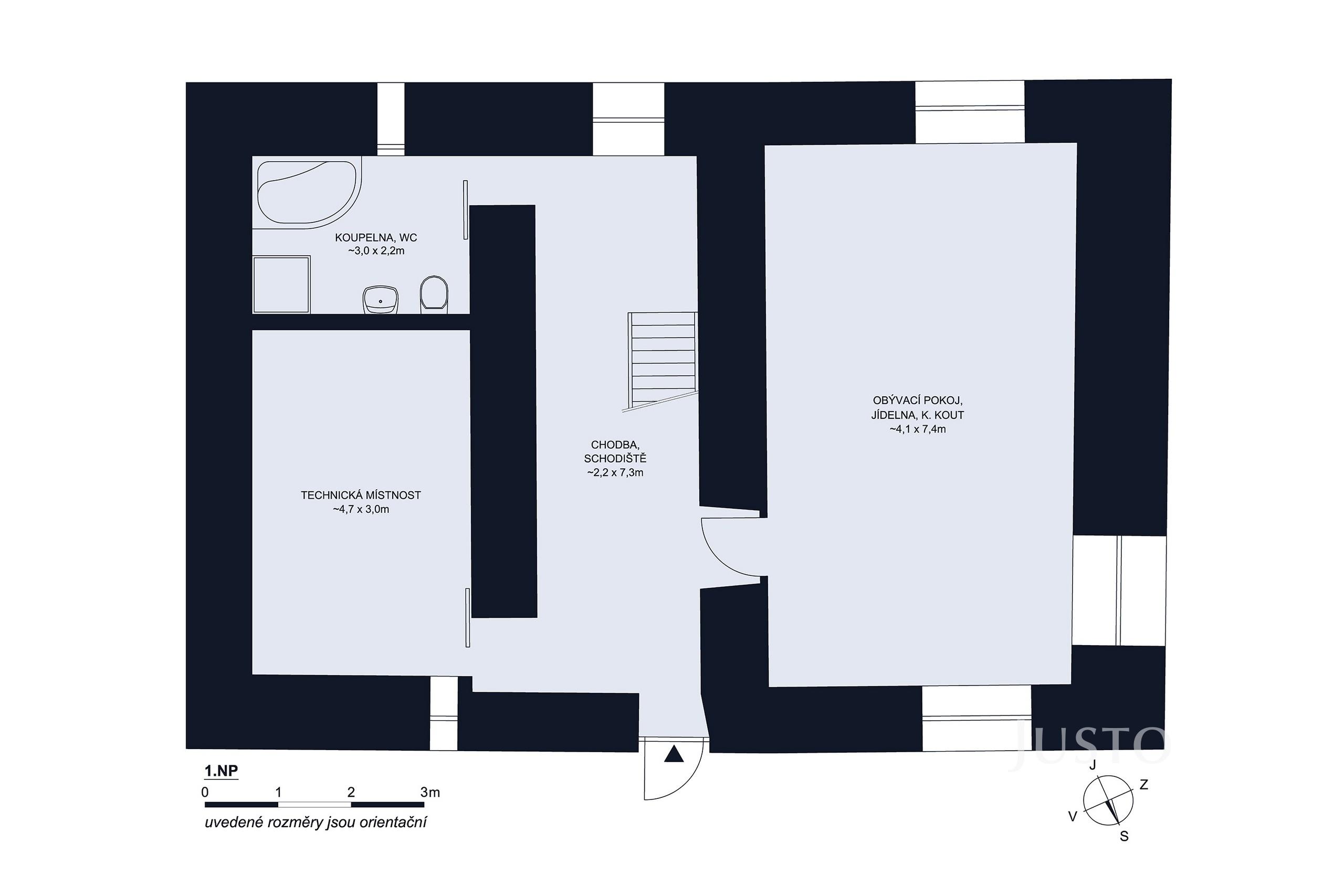
• celková užitná plocha ve dvou podlažích 146 m²
• zastavěná plocha a nádvoří 137 m²
• celková plocha pozemků 371 m²
• přízemí: velká technická místnost, koupelna, obývák/světnice
• podkroví: 3 samostatné neprůchozí pokoje, toaleta
• venku nedokončená pergola, která čeká, co s ní vymyslíte
V roce 2025 majitelé chalupu citlivě zrekonstruovali:
• podlahové vytápění, zateplení minerální vatou, okna s trojskly
• tepelné čerpadlo „vduch-voda“, 200l akumulační nádrž (možnost ovládání vytápění na dálku přes mobil)
• vyvážecí jímka, obecní vodovod s pitnou vodou, nová elektřina
• zateplená střecha, plechová krytina, trámové stropy atd.
Rodina, přátelé, anebo třeba nájemníci budou bydlet samostatně ve třech velkých podkrovních pokojích. Na patře je navíc ještě toaleta.
V přízemí využijete technickou místnost třeba pro lyže/lyžáky a kola.
Z obýváku uděláte to nejútulnější místo pro zimní zasněžené večery i teplé letní dny, kdy naplno využijete potenciál okolní přírody.
Chalupa stojí na polosamotě obce Branišov. V okolí jsou lesy a louky. V obci a blízkém okolí najdete základní občanskou vybavenost, několik restaurací, cukrárnu, supermarket, a zejména řadu turistických a sportovních atrakcí – například Klostermannovu rozhlednu, lyžařský areál Zadov nebo státní zámek Vimperk.
Pokud hledáte místo, kde si vaše rodina užije klidné bydlení s možností aktivního odpočinku v přírodě, anebo nemovitost vhodnou k rekreaci a „úniku z civilizace“, chalupa v Branišově vás zaujme.
Na koupi chalupy vám pomůžeme sjednat financování.
Napište nám skrze formulář u inzerátu. Dostanete odpověď s veškerými informacemi do 20 minut na e-mail, který uvedete. (Zkontrolujte si, prosím správnost zadaného e-mailu, a po odeslání také složky "Spam" a "Nevyžádaná pošta". Občas se tam e-mail může zatoulat.).
Pomocí naší hypoteční kalkulačky si můžete udělat orientační představu o výši měsíčních splátek hypotéky. O vše ostatní se pak postaráme my ve spolupráci s našimi obchodními partnery.
21 661 Kč
* Odhadovaná měsíční splátka vychází z výše úvěru Kč s pevnou úrokovou sazbou % po celou dobu trvání úvěru.
Uživatel serveru RealityMIX.cz (dále jen „Server“) dostupného na internetové adrese (URL) https://www.realitymix.cz, který provozuje společnost DALTEN media s.r.o., se sídlem Na Harfě 916/9a, Praha 9, 190 00, IČO: 271 35 306 (dále jen „Správce“) jako provozovateli tohoto Serveru uděluje svůj výslovný souhlas v souladu s ustanovením § 5 zákona č. 101/2000 Sb. O ochraně osobních údajů a o změně některých zákonů, v platném znění (dále jen „zákon o ochraně osobních údajů“), se zpracováním uživatelem poskytnutých osobních údajů a dalších dat.
Uživatel poskytuje Správci osobní údaje v rozsahu: jméno, příjmení, e-mailová adresa, telefonický kontakt a další data, a to z důvodu projeveného zájmu o nemovitost, kde prostřednictvím služby Serveru Správce osloví Uživatel inzerenta uvedeného v detailu
nemovitosti - JUSTO Česká republika (IČ 04419995) se zájmem o jeho služby.
Uživatel tyto osobní údaje poskytuje dobrovolně a bere na vědomí, že součástí služeb Správce, které Správce Uživateli poskytuje, je vyhledání všech Uživateli vyhovujících (dle parametrů - cena, typ nemovitosti, lokalita atd.) nemovitostí. Správce za tímto účelem provozuje aplikace Hlídací pes a newsletter. Tyto služby je možné z každého zaslaného emailu odhlásit. Souhlas se zpracováním osobních údajů Uživatel poskytuje Správci na dobu neurčitou s tím, že svůj udělený souhlas může Uživatel kdykoliv na drese správce info@realitymix.cz odvolat. Správce garantuje Uživateli i další práva uvedené v ustanovení §11 a §21 zákoba č. 101/200 Sb. Ve znění pozdějších předpisů.
Více informací o zpracování údajů získáte zde (realitymix.cz/zasady-ochrany-osobnich-udaju)