Prodej rodinného domu 570 m², Železná Ruda - Špičák
abízím vám ke koupi rodinný dům na Špičáku, který se nachází v jednom z nejoblíbenějších šumavských středisek. Tento dům nabízí široké možnosti využití jak pro bydlení, tak i pro podnikání.
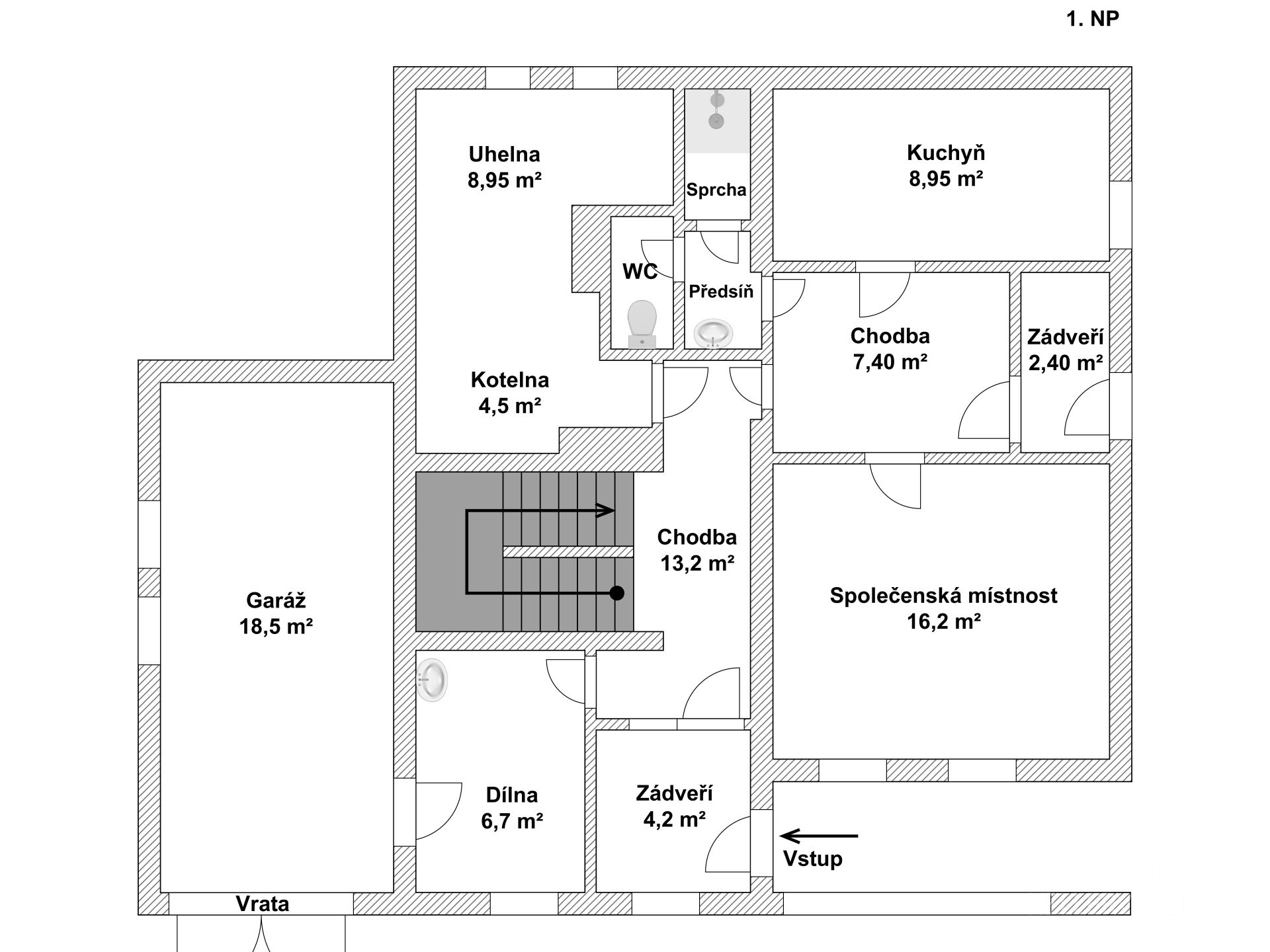
Dům nabízí byt o dispozici 3+1, se dvěma koupelnami. V přízemí je v levé části prostorná garáž, přístupná i z domu, dřevník, kotelna s kotlem na tuhá paliva, v pravé části je velká kuchyň s možností uskladňování potravin a společenskou místností cca pro 15 lidí, které mohou využívat hosté ubytovaní v pěti apartmánech přistavěných v zadní části domu. Dva apartmány jsou dvoulůžkové, dva čtyřlůžkové a jeden třílůžkový. Všechny apartmány mají své vlastní koupelny se sprchou a WC.
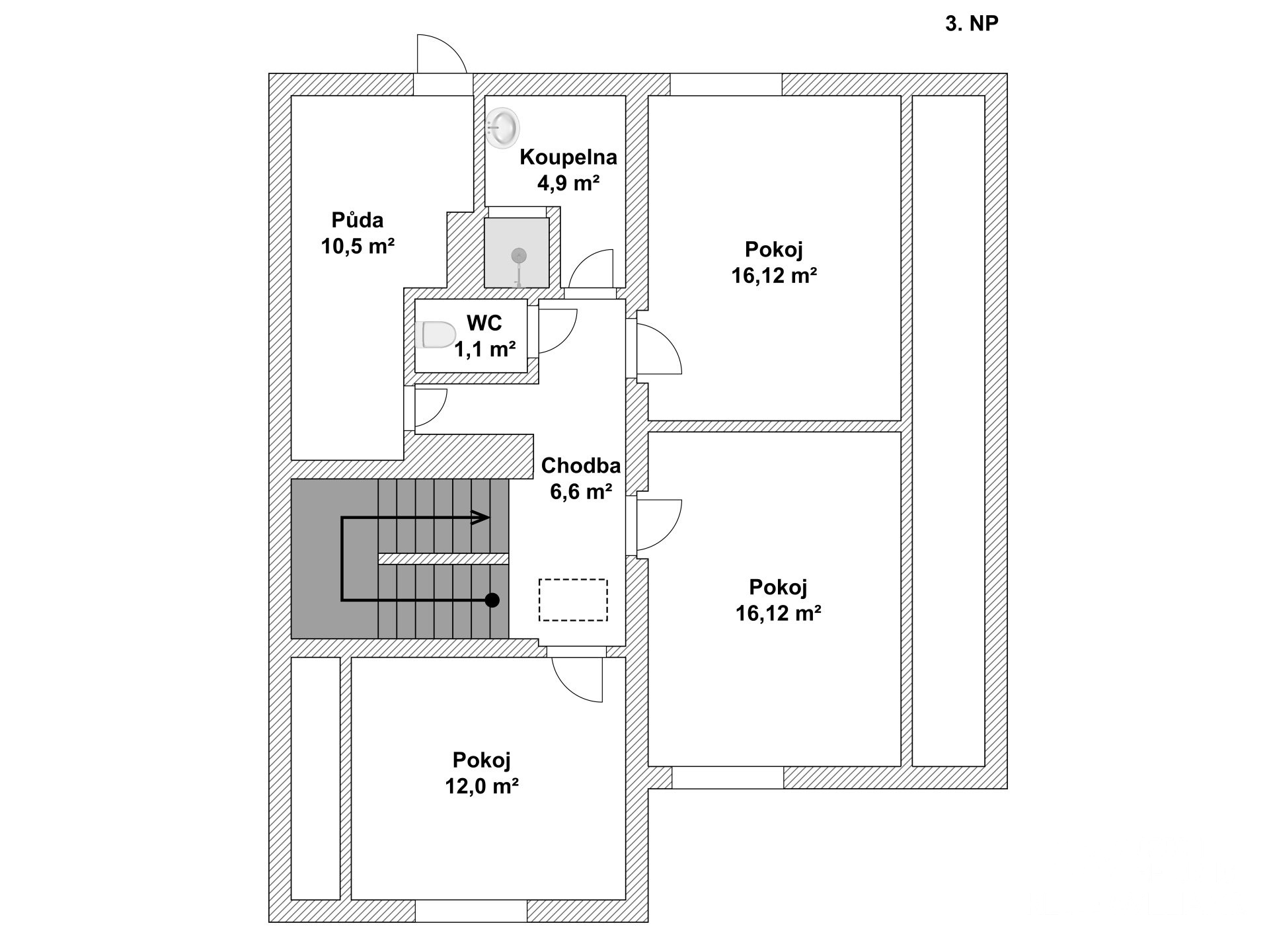
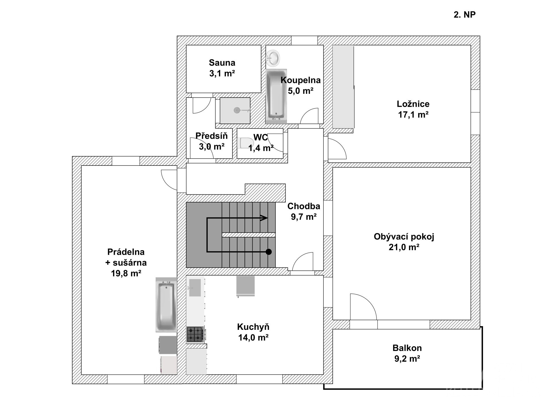
Byt majitele obsahuje v prvním patře kuchyň, obývací pokoj spojený s ložnicí, na chodbě jsou dvě koupelny, jedna s vanoua druhá se sprchovým koutem, v druhém patře je dětský pokoj s patrovým spaním. Vedle tohoto pokoje je místnost, která byla využívaná jako prádelna.
Prádelna je zároveň i jedním ze vstupů do přistavěné části, ve které jsou apartmány na pronájem. Do této části je i samostatný vstup zvenku domu. Každý apartmán je zařízen postelemi podle potřebného počtu osob, koupelnou se sprchovým koutem, zátěžovými koberci.
K domu patří trojgaráž o podlahové ploše 65m2, postavená hned u silnice. Zvenku jsou to tři samostatné vjezdy, ale uvnitř je to jeden celek, kdy v jedné části je i zdviž pro opravování aut. Zároveň další možnost parkování je vedle domu pod přístřeškem, další varianta je i v garáži domu, poslední možnost je i parkování přímo před domem.
Nad trojgaráží je ještě vybudovaný jeden apartmán o podlahové ploše 49m2. Ten je nejnovější a nepotřebuje žádné opravy či rekonstrukce. V tomto apartmánu se v koupelně topí podlahovým topením, ostatní části vytopí krb. Je tady i moderně zařízená kuchyňská linka, v koupelně je sprchový kout.
Dům je v obyvatelném stavu, ale určitě potřebuje rekonstrukci. Užitná ploccha je 570m2, plocha pozemku je 968m2. Na pozemku je venkovní posezení. Penzion disponuje kotelnou s dvěma samostatnými okruhy na topení. Voda je zajištěna vlastní vrtanou studnou, elektřina je 220V i 380V jak v domě, tak v garážích.
Železnorudsko leží 5 km od hranic s Německem, nabízí desítky kilometrů strojově upravovaných běžeckých tras. Na 8 km sjezdových tratí najde místo každý, od začátečníků až pro profesionální lyžaře. Špičák je nejen rájem pro lyžaře, ale i skvělým místem pro letní rodinné dovolené. V obci jekompletní občanská vybavenost, obchody, školka, škola, restaurace, pošta, bankomaty, dopravní spojení - vlak, autobus, spousta cyklostezek.
Pomocí naší hypoteční kalkulačky si můžete udělat orientační představu o výši měsíčních splátek hypotéky. O vše ostatní se pak postaráme my ve spolupráci s našimi obchodními partnery.
64 780 Kč
* Odhadovaná měsíční splátka vychází z výše úvěru Kč s pevnou úrokovou sazbou % po celou dobu trvání úvěru.
Uživatel serveru RealityMIX.cz (dále jen „Server“) dostupného na internetové adrese (URL) https://www.realitymix.cz, který provozuje společnost DALTEN media s.r.o., se sídlem Na Harfě 916/9a, Praha 9, 190 00, IČO: 271 35 306 (dále jen „Správce“) jako provozovateli tohoto Serveru uděluje svůj výslovný souhlas v souladu s ustanovením § 5 zákona č. 101/2000 Sb. O ochraně osobních údajů a o změně některých zákonů, v platném znění (dále jen „zákon o ochraně osobních údajů“), se zpracováním uživatelem poskytnutých osobních údajů a dalších dat.
Uživatel poskytuje Správci osobní údaje v rozsahu: jméno, příjmení, e-mailová adresa, telefonický kontakt a další data, a to z důvodu projeveného zájmu o nemovitost, kde prostřednictvím služby Serveru Správce osloví Uživatel inzerenta uvedeného v detailu
nemovitosti - Keller Williams Czech Republic (IČ 07796340) se zájmem o jeho služby. Tato společnost je součástí seskupení/sítě/franšízového modelu realitních kanceláří, jejich seznam můžete zobrazit kliknutím na tento odkaz.
Keller Williams Czech Republic (IČ 07796340) , Nemovito by Keller Williams (IČ 10826971) , Keller Williams Czech Republic (IČ 07796340) , Keller Williams - centrála (IČ 06521924)
Uživatel tyto osobní údaje poskytuje dobrovolně a bere na vědomí, že součástí služeb Správce, které Správce Uživateli poskytuje, je vyhledání všech Uživateli vyhovujících (dle parametrů - cena, typ nemovitosti, lokalita atd.) nemovitostí. Správce za tímto účelem provozuje aplikace Hlídací pes a newsletter. Tyto služby je možné z každého zaslaného emailu odhlásit. Souhlas se zpracováním osobních údajů Uživatel poskytuje Správci na dobu neurčitou s tím, že svůj udělený souhlas může Uživatel kdykoliv na drese správce info@realitymix.cz odvolat. Správce garantuje Uživateli i další práva uvedené v ustanovení §11 a §21 zákoba č. 101/200 Sb. Ve znění pozdějších předpisů.
Více informací o zpracování údajů získáte zde (realitymix.cz/zasady-ochrany-osobnich-udaju)