V klidné obci Žeravice u Kyjova nabízíme k prodeji rodinný dům, který zaujme nejen svou velikostí a dispozicí, ale především variabilitou využití a atmosférou skutečného domova. Jedná se o nemovitost, která dává prostor představám – ať už hledáte místo pro rodinu, více generací pod jednou střechou, nebo dům s investičním potenciálem.
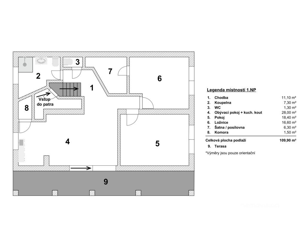
Dům je rozdělen do tří samostatných bytových jednotek, díky čemuž nabízí naprostou flexibilitu využití. V přízemí se nachází dvě bytové jednotky o dispozici 2+1, které poskytují dostatek prostoru a soukromí. V patře je pak nově vybudovaný byt 3+kk, který působí moderně, vzdušně a je připraven stát se plnohodnotným rodinným bydlením.
Nemovitost prošla postupnou rekonstrukcí, přičemž většina zásadních prací je již hotová. K dokončení zbývá pouze minimum úprav, které si nový majitel může přizpůsobit podle vlastního vkusu a potřeb – a dát tak domu osobní rukopis.
Velkou předností domu je udržovaná zahrada, která nabízí příjemné soukromí a prostor pro odpočinek, rodinná setkání i každodenní relax. K domu dále náleží prostorná garáž až pro tři auta, praktická dílna a také sklep ideální pro skladování ovoce a zeleniny.
Základní informace:
užitná plocha domu: 270 m²
plocha pozemku: 1551 m²
počet bytových jednotek: 3
Tento dům je ideální volbou pro ty, kteří hledají klidné bydlení s možností dalšího využití, ať už formou pronájmu, podnikání z domova nebo vícegeneračního soužití. Spojuje v sobě praktičnost, prostor a potenciál, který se jen tak nevidí.
Projděte si nemovitost pomocí 3D scanu.
Pro více informací nebo domluvení osobní prohlídky mě neváhejte kontaktovat.
Ráda vám dům představím osobně a ukážu vám, co všechno může nabídnout.
Pomocí naší hypoteční kalkulačky si můžete udělat orientační představu o výši měsíčních splátek hypotéky. O vše ostatní se pak postaráme my ve spolupráci s našimi obchodními partnery.
38 584 Kč
* Odhadovaná měsíční splátka vychází z výše úvěru Kč s pevnou úrokovou sazbou % po celou dobu trvání úvěru.
Uživatel serveru RealityMIX.cz (dále jen „Server“) dostupného na internetové adrese (URL) https://www.realitymix.cz, který provozuje společnost DALTEN media s.r.o., se sídlem Na Harfě 916/9a, Praha 9, 190 00, IČO: 271 35 306 (dále jen „Správce“) jako provozovateli tohoto Serveru uděluje svůj výslovný souhlas v souladu s ustanovením § 5 zákona č. 101/2000 Sb. O ochraně osobních údajů a o změně některých zákonů, v platném znění (dále jen „zákon o ochraně osobních údajů“), se zpracováním uživatelem poskytnutých osobních údajů a dalších dat.
Uživatel poskytuje Správci osobní údaje v rozsahu: jméno, příjmení, e-mailová adresa, telefonický kontakt a další data, a to z důvodu projeveného zájmu o nemovitost, kde prostřednictvím služby Serveru Správce osloví Uživatel inzerenta uvedeného v detailu
nemovitosti - Nemovision reality s.r.o. (IČ 08351538) se zájmem o jeho služby.
Uživatel tyto osobní údaje poskytuje dobrovolně a bere na vědomí, že součástí služeb Správce, které Správce Uživateli poskytuje, je vyhledání všech Uživateli vyhovujících (dle parametrů - cena, typ nemovitosti, lokalita atd.) nemovitostí. Správce za tímto účelem provozuje aplikace Hlídací pes a newsletter. Tyto služby je možné z každého zaslaného emailu odhlásit. Souhlas se zpracováním osobních údajů Uživatel poskytuje Správci na dobu neurčitou s tím, že svůj udělený souhlas může Uživatel kdykoliv na drese správce info@realitymix.cz odvolat. Správce garantuje Uživateli i další práva uvedené v ustanovení §11 a §21 zákoba č. 101/200 Sb. Ve znění pozdějších předpisů.
Více informací o zpracování údajů získáte zde (realitymix.cz/zasady-ochrany-osobnich-udaju)