Nabízím k prodeji stavební pozemky v horní části obce Zlatá Koruna u Českého Krumlova.
Jednotlivé pozemky jsou prodávány v rámci schválené územní studie na výstavbu rodinných domů a na pozemcích lze stavět dle podmínek pro vymezení a využití pozemků, které jsou k dispozici u RK.
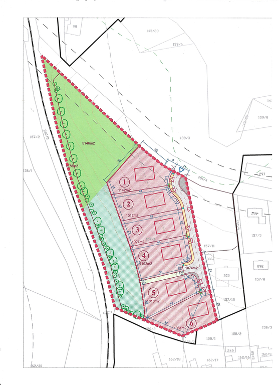
K prodeji jsou tyto stavební pozemky:
Pozemek č. 1, parc. č. 157/15 o výměře 1142 m2, PRODÁNO
Pozemek č. 2, parc. č. 157/16 o výměře 1011 m2, PRODÁNO
Pozemek č. 3, parc. č. 157/17 o výměře 1027 m2, cena 3 594 500 Kč
Pozemek č. 4, parc. č. 157/18 o výměře 1132 m2, cena 3 962 000 Kč
Pozemek č. 5, parc. č. 157/19 o výměře 1010 m2, cena 3 535 000 Kč
Pozemek č. 6, parc. č. 158/20 o výměře 1081 m2, cena 3 783 500 Kč
Pozemky budou v rámci schváleného projektu připojeny na elektrickou distribuční soustavu, veřejnou vodovodní a kanalizační síť a bude vybudována příjezdová komunikace včetně dalších stavebních úprav potřebných pro bezproblémové bydlení.
Obec Zlatá Koruna je vzdálená 6 km od Českého Krumlova a 20 km od Českých Budějovic a leží na úpatí vrcholu Kleť, v Chráněné krajinné oblasti Blanský les. Ve Zlaté Koruně je MŠ a ZŠ rodinného typu. V obci je vlakové i autobusové spojení. Další veškerá občanská vybavenost je v blízkém Českém Krumlově.
Jedná se o velmi zajímavou nabídku a určitě doporučuji prohlídku. V případě zájmu zajistím financování na koupi nemovitosti.
Cena:
Cena na vyžádání
Poznámka:
Cena na vyžádáni u RK
Plocha:
1 m²
Číslo zakázky:
REALITYMIX-0008
Podrobné informace
Celková plocha:1 m²
Druh pozemku:pro bydlení
Inženýrské sítě:vodovod
Umístění objektu:klidná část obce
Energetický ukazatel podle vyhlášky:č. 264/2020 Sb.
Uživatel serveru RealityMIX.cz (dále jen „Server“) dostupného na internetové adrese (URL) https://www.realitymix.cz, který provozuje společnost DALTEN media s.r.o., se sídlem Na Harfě 916/9a, Praha 9, 190 00, IČO: 271 35 306 (dále jen „Správce“) jako provozovateli tohoto Serveru uděluje svůj výslovný souhlas v souladu s ustanovením § 5 zákona č. 101/2000 Sb. O ochraně osobních údajů a o změně některých zákonů, v platném znění (dále jen „zákon o ochraně osobních údajů“), se zpracováním uživatelem poskytnutých osobních údajů a dalších dat.
Uživatel poskytuje Správci osobní údaje v rozsahu: jméno, příjmení, e-mailová adresa, telefonický kontakt a další data, a to z důvodu projeveného zájmu o nemovitost, kde prostřednictvím služby Serveru Správce osloví Uživatel inzerenta uvedeného v detailu
nemovitosti - Daniel Ambrůžek (IČ 60633484) se zájmem o jeho služby.
Uživatel tyto osobní údaje poskytuje dobrovolně a bere na vědomí, že součástí služeb Správce, které Správce Uživateli poskytuje, je vyhledání všech Uživateli vyhovujících (dle parametrů - cena, typ nemovitosti, lokalita atd.) nemovitostí. Správce za tímto účelem provozuje aplikace Hlídací pes a newsletter. Tyto služby je možné z každého zaslaného emailu odhlásit. Souhlas se zpracováním osobních údajů Uživatel poskytuje Správci na dobu neurčitou s tím, že svůj udělený souhlas může Uživatel kdykoliv na drese správce info@realitymix.cz odvolat. Správce garantuje Uživateli i další práva uvedené v ustanovení §11 a §21 zákoba č. 101/200 Sb. Ve znění pozdějších předpisů.
Více informací o zpracování údajů získáte zde (realitymix.cz/zasady-ochrany-osobnich-udaju)