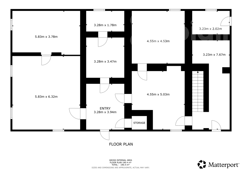
Nabízíme stavbu v klidné části obce Ondřejovice, vedenou v katastru nemovitostí jako bytový dům. Tato stavba zaujme především milovníky původní architektury a těch, kteří hledají objekt s charakterem a velkým potenciálem pro přestavbu dle vlastních představ. Dům je postaven na pevných kamenných základech, je cihlový a zachoval si původní klenbové stropy, které dodávají prostoru jedinečnou atmosféru. Objekt je napojen na elektřinu a jímku, voda zde může být, je zde možnost vrtu-byl by na pozemku, který je součástí prodeje. Doložíme průzkumem. Při vstupu do domu se nachází chodba s dlažbou, obytné místnosti mají betonové podlahy s linoleem. K dispozici je samostatné WC. Do domu vedou dva samostatné vstupy, což nabízí možnost oddělení provozu - například technické části s kotlem na dřevo s přístupem zvenčí. Nemovitost nabízí řadu možností využití stavby jako technického zázemí, dílny nebo garáže. Je zde také možnost pronájmu sousedního pozemku (parcelní číslo 2427), který může rozšířit možnosti využití celé nemovitosti. Tento dům v Ondřejovicích představuje skvělou příležitost pro rekonstrukci či investici. Nabízí: původní klenbové stropy a historický charakter, cihlovou konstrukci a kamenné základy, elektřinu, jímku a možnost vrtu na vodu, dva vstupy do objektu, další stavbu 47 m2, a možnost pronájmu sousedního pozemku. Nemovitost je ideální pro ty, kteří hledají venkovské bydlení s potenciálem a klidem, v prostředí chráněné přírody a přitom s dostatečným prostorem pro realizaci vlastních plánů.
Pomocí naší hypoteční kalkulačky si můžete udělat orientační představu o výši měsíčních splátek hypotéky. O vše ostatní se pak postaráme my ve spolupráci s našimi obchodními partnery.
2 227 Kč
* Odhadovaná měsíční splátka vychází z výše úvěru Kč s pevnou úrokovou sazbou % po celou dobu trvání úvěru.
Uživatel serveru RealityMIX.cz (dále jen „Server“) dostupného na internetové adrese (URL) https://www.realitymix.cz, který provozuje společnost DALTEN media s.r.o., se sídlem Na Harfě 916/9a, Praha 9, 190 00, IČO: 271 35 306 (dále jen „Správce“) jako provozovateli tohoto Serveru uděluje svůj výslovný souhlas v souladu s ustanovením § 5 zákona č. 101/2000 Sb. O ochraně osobních údajů a o změně některých zákonů, v platném znění (dále jen „zákon o ochraně osobních údajů“), se zpracováním uživatelem poskytnutých osobních údajů a dalších dat.
Uživatel poskytuje Správci osobní údaje v rozsahu: jméno, příjmení, e-mailová adresa, telefonický kontakt a další data, a to z důvodu projeveného zájmu o nemovitost, kde prostřednictvím služby Serveru Správce osloví Uživatel inzerenta uvedeného v detailu
nemovitosti - Bidli reality, a.s. (IČ 06790763) se zájmem o jeho služby. Tato společnost je součástí seskupení/sítě/franšízového modelu realitních kanceláří, jejich seznam můžete zobrazit kliknutím na tento odkaz.
Hypocentrum modré pyramidy - Praha (IČ ) , Hypocentrum modré pyramidy - Brno (IČ ) , Hypocentrum Modré pyramidy - Hradec Králové (IČ ) , Hypocentrum Modré pyramidy - České Budějovice (IČ ) , Hypocentrum Modré pyramidy - Pardubice (IČ ) , Hypocentrum Modré pyramidy - Plzeň (IČ ) , Hypocentrum Modré pyramidy - Ústí nad Labem (IČ ) , Hypocentrum Modré pyramidy - Ostrava (IČ ) , Hypocentrum Modré pyramidy - Olomouc (IČ ) , Bidli reality, a.s. (IČ 06790763)
Uživatel tyto osobní údaje poskytuje dobrovolně a bere na vědomí, že součástí služeb Správce, které Správce Uživateli poskytuje, je vyhledání všech Uživateli vyhovujících (dle parametrů - cena, typ nemovitosti, lokalita atd.) nemovitostí. Správce za tímto účelem provozuje aplikace Hlídací pes a newsletter. Tyto služby je možné z každého zaslaného emailu odhlásit. Souhlas se zpracováním osobních údajů Uživatel poskytuje Správci na dobu neurčitou s tím, že svůj udělený souhlas může Uživatel kdykoliv na drese správce info@realitymix.cz odvolat. Správce garantuje Uživateli i další práva uvedené v ustanovení §11 a §21 zákoba č. 101/200 Sb. Ve znění pozdějších předpisů.
Více informací o zpracování údajů získáte zde (realitymix.cz/zasady-ochrany-osobnich-udaju)