Bydlení + investice | 2 samostatné nemovitosti na jednom místě
Nabízím k prodeji dvě nemovitosti ve Zlíně v městské části Podhoří, které dohromady tvoří mimořádně zajímavou příležitost jak pro investory, tak pro vlastní bydlení s možností příjmu z pronájmu.
Tato nabídka vám umožní kombinovat vlastní bydlení a pravidelný měsíční příjem, nebo vytvořit plnohodnotný investiční projekt.
2 samostatné domy v bezprostřední blízkosti (každý na své parcele, každý s číslem popisným)
možnost odděleného využití (bydlení / pronájem / podnikání / sídlo firmy atd.)
flexibilní dispozice s potenciálem úprav
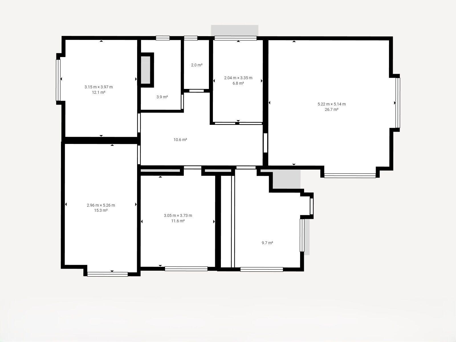
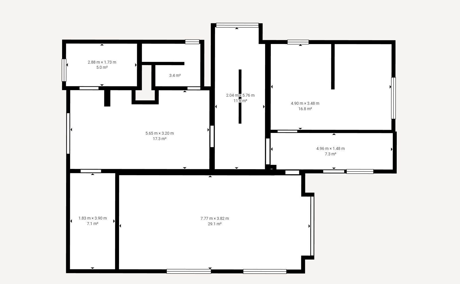
První dům: 2 podlaží, v současné době 5 obytných místností z čehož další 3 k dispozici, celkem přes 200m² plochy pro vás
2 dům samostatný Bungalov 2kk - 52m²
Celkem 15 a více lůžek v případě individuálního pronájmu.
Velký Investiční potenciál:
Jeden dům můžete využívat pro vlastní bydlení
Druhý dům pronajímat = nájem vám pomáhá splácet hypotéku
Případně oba domy pronajímat a vytvořit si stabilní pasivní příjem
Ideální pro:
nájemní bydlení
firemní ubytování
kombinaci bydlení a podnikání
menší developerský / investiční projekt
2 nemovitosti za jednu cenu, jedno místo / jedno rozhodnutí
okamžitý potenciál výnosu
vysoká poptávka po nájmech ve Zlíně / celkem možných cca 15 lůžek a více
klidná a vyhledávaná lokalita Podhoří patří mezi TOP lokality ve Zlíně
skvělá dlouhodobá investice
Možnost rozdělit na samostatné bytové jednotky
Zlín – Podhoří nabízí ideální kombinaci klidného bydlení a dostupnosti do centra města, včetně kompletní občanské vybavenosti.
Pomocí naší hypoteční kalkulačky si můžete udělat orientační představu o výši měsíčních splátek hypotéky. O vše ostatní se pak postaráme my ve spolupráci s našimi obchodními partnery.
60 326 Kč
* Odhadovaná měsíční splátka vychází z výše úvěru Kč s pevnou úrokovou sazbou % po celou dobu trvání úvěru.
Uživatel serveru RealityMIX.cz (dále jen „Server“) dostupného na internetové adrese (URL) https://www.realitymix.cz, který provozuje společnost DALTEN media s.r.o., se sídlem Na Harfě 916/9a, Praha 9, 190 00, IČO: 271 35 306 (dále jen „Správce“) jako provozovateli tohoto Serveru uděluje svůj výslovný souhlas v souladu s ustanovením § 5 zákona č. 101/2000 Sb. O ochraně osobních údajů a o změně některých zákonů, v platném znění (dále jen „zákon o ochraně osobních údajů“), se zpracováním uživatelem poskytnutých osobních údajů a dalších dat.
Uživatel poskytuje Správci osobní údaje v rozsahu: jméno, příjmení, e-mailová adresa, telefonický kontakt a další data, a to z důvodu projeveného zájmu o nemovitost, kde prostřednictvím služby Serveru Správce osloví Uživatel inzerenta uvedeného v detailu
nemovitosti - Konior & Partners | Real Estate (IČ 25597353) se zájmem o jeho služby.
Uživatel tyto osobní údaje poskytuje dobrovolně a bere na vědomí, že součástí služeb Správce, které Správce Uživateli poskytuje, je vyhledání všech Uživateli vyhovujících (dle parametrů - cena, typ nemovitosti, lokalita atd.) nemovitostí. Správce za tímto účelem provozuje aplikace Hlídací pes a newsletter. Tyto služby je možné z každého zaslaného emailu odhlásit. Souhlas se zpracováním osobních údajů Uživatel poskytuje Správci na dobu neurčitou s tím, že svůj udělený souhlas může Uživatel kdykoliv na drese správce info@realitymix.cz odvolat. Správce garantuje Uživateli i další práva uvedené v ustanovení §11 a §21 zákoba č. 101/200 Sb. Ve znění pozdějších předpisů.
Více informací o zpracování údajů získáte zde (realitymix.cz/zasady-ochrany-osobnich-udaju)