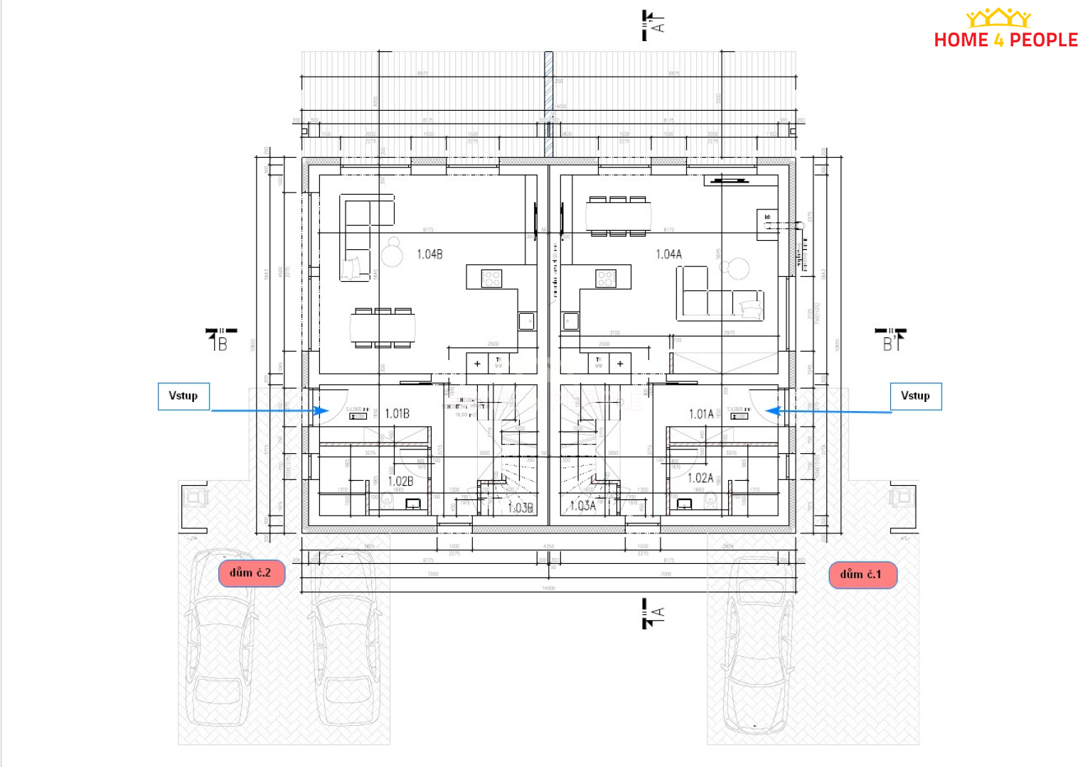
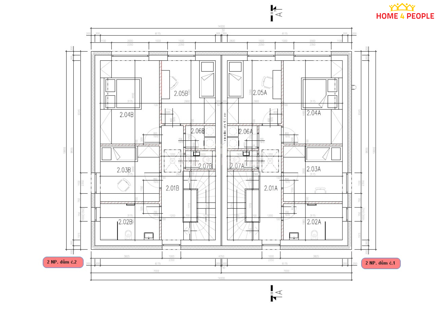
Zprostředkujeme Vám výstavbu patrového domu 4+kk o užitné ploše 118 m² v provedení na klíč s pozemkem v Kostelci u Zlína. Na tento dům již máme vydané stavební rozhodnutí a do 30 dnů budeme zahajovat stavbu. Součástí ceny je dům, pozemek č.2 o velikosti 488 m² (šíře 10,5 m a délka cca 46 m), příprava pozemku pro stavbu, připojení domu na inženýrské sítě, přípojné místo NN, retenční nádrž a parkovací místo o velikosti 36m². Dům bude realizován jako dvojdomek. Zastavěná plocha jednodomku je 74 m² s užitnou plochou. Prodej pozemků bez výstavby neumožňujeme, pouze pozemky č.5 a 6 s výstavbou do dvou let. V projektu jsou možné variabilní úpravy dispozice (posuny příček). Patrový dům je ideální pro 5 člennou rodinu s nízkými provozními náklady. Uvedená cena je za pozemek, kompletní stavbu domu v provedení na klíč, projektové dokumentace, vyřízení stavebního povolení, základové desky až po kolaudaci. V uvedené ceně můžete počítat také s finálními povrchovými úpravami exteriéru i interiéru, a to včetně elektroinstalací, sanitárního vybavení s bateriemi, interiérovými dveřmi včetně obložek a vytápění bude řešeno teplovodním podlahovým topením v kombinaci tepelného čerpadla se 180L zásobníkem na teplou vodu. Dle dohody změníme systém vytápění nebo vystavíme komín pro krbové kamna nebo pro využití krbové vložky. Kryté garážové stání spojené s domem nebo venkovní krytou či nekrytou terasu za příplatek. Pro náročnější klienty máme nabídku nadstandardního vybavení chytré domácnosti, klimatizaci, externí žaluzie, rolety, rekuperaci nebo fotovoltaiku. Doba výstavby cca 12-14 měsíců od vydání stavebního povolení a stavbu zahájíme do 10 dnů od jeho vydání. Smlouvu o dílo včetně položkového rozpočtu a vzorovou kupní smlouvu zašleme na vyžádání. Dne 4. září 2024, došlo k podpisu smlouvy o přeložce distribuční soustavy se společností EG.D. a budou zahájeny následné kroky pro změnu vedení a umístění vysokého napětí - realizace nejpozději do roku 2027. Doporučuji prohlídku pozemků a případně našich staveb. Více u makléře. Ev. číslo: 31346.
Cena:
9 840 000 Kč
Poznámka:
Cena včetně výstavby domu na klíč, pozemku a DPH. VOLNÝ!
Pomocí naší hypoteční kalkulačky si můžete udělat orientační představu o výši měsíčních splátek hypotéky. O vše ostatní se pak postaráme my ve spolupráci s našimi obchodními partnery.
39 840 Kč
* Odhadovaná měsíční splátka vychází z výše úvěru Kč s pevnou úrokovou sazbou % po celou dobu trvání úvěru.
Uživatel serveru RealityMIX.cz (dále jen „Server“) dostupného na internetové adrese (URL) https://www.realitymix.cz, který provozuje společnost DALTEN media s.r.o., se sídlem Na Harfě 916/9a, Praha 9, 190 00, IČO: 271 35 306 (dále jen „Správce“) jako provozovateli tohoto Serveru uděluje svůj výslovný souhlas v souladu s ustanovením § 5 zákona č. 101/2000 Sb. O ochraně osobních údajů a o změně některých zákonů, v platném znění (dále jen „zákon o ochraně osobních údajů“), se zpracováním uživatelem poskytnutých osobních údajů a dalších dat.
Uživatel poskytuje Správci osobní údaje v rozsahu: jméno, příjmení, e-mailová adresa, telefonický kontakt a další data, a to z důvodu projeveného zájmu o nemovitost, kde prostřednictvím služby Serveru Správce osloví Uživatel inzerenta uvedeného v detailu
nemovitosti - HOME 4 PEOPLE (IČ 29132886) se zájmem o jeho služby. Tato společnost je součástí seskupení/sítě/franšízového modelu realitních kanceláří, jejich seznam můžete zobrazit kliknutím na tento odkaz.
Dumrealit.cz (IČ 00537861) , HOME 4 PEOPLE (IČ 29132886) , Reality 11 (IČ 29132886) , REAL ESTATE CZECH REPUBLIC a.s. (IČ 29132886) , Národní Realitní Holding a.s. (IČ 02918897)
Uživatel tyto osobní údaje poskytuje dobrovolně a bere na vědomí, že součástí služeb Správce, které Správce Uživateli poskytuje, je vyhledání všech Uživateli vyhovujících (dle parametrů - cena, typ nemovitosti, lokalita atd.) nemovitostí. Správce za tímto účelem provozuje aplikace Hlídací pes a newsletter. Tyto služby je možné z každého zaslaného emailu odhlásit. Souhlas se zpracováním osobních údajů Uživatel poskytuje Správci na dobu neurčitou s tím, že svůj udělený souhlas může Uživatel kdykoliv na drese správce info@realitymix.cz odvolat. Správce garantuje Uživateli i další práva uvedené v ustanovení §11 a §21 zákoba č. 101/200 Sb. Ve znění pozdějších předpisů.
Více informací o zpracování údajů získáte zde (realitymix.cz/zasady-ochrany-osobnich-udaju)