Prodej rodinného domu 68 m², pozemek 300 m² Podvesná XIV, Zlín
Teď zaplatíte 3,5 mil. Kč a zbylou část 1,1 mil. Kč si jednoduše převezmete formou výhodného hypotečního úvěru se sazbou 1,89 % a fixací do 7/2028.
To znamená výraznou úsporu oproti dnešním úrokovým sazbám a velmi zajímavou příležitost, jak pořídit dům za výhodných podmínek.
Buď je milujete, nebo nenávidíte – řeč je o typických baťovských půldomcích, které jsou neodmyslitelnou součástí Zlína. A právě jeden z nich teď nabízím v oblíbené lokalitě Podvesná.
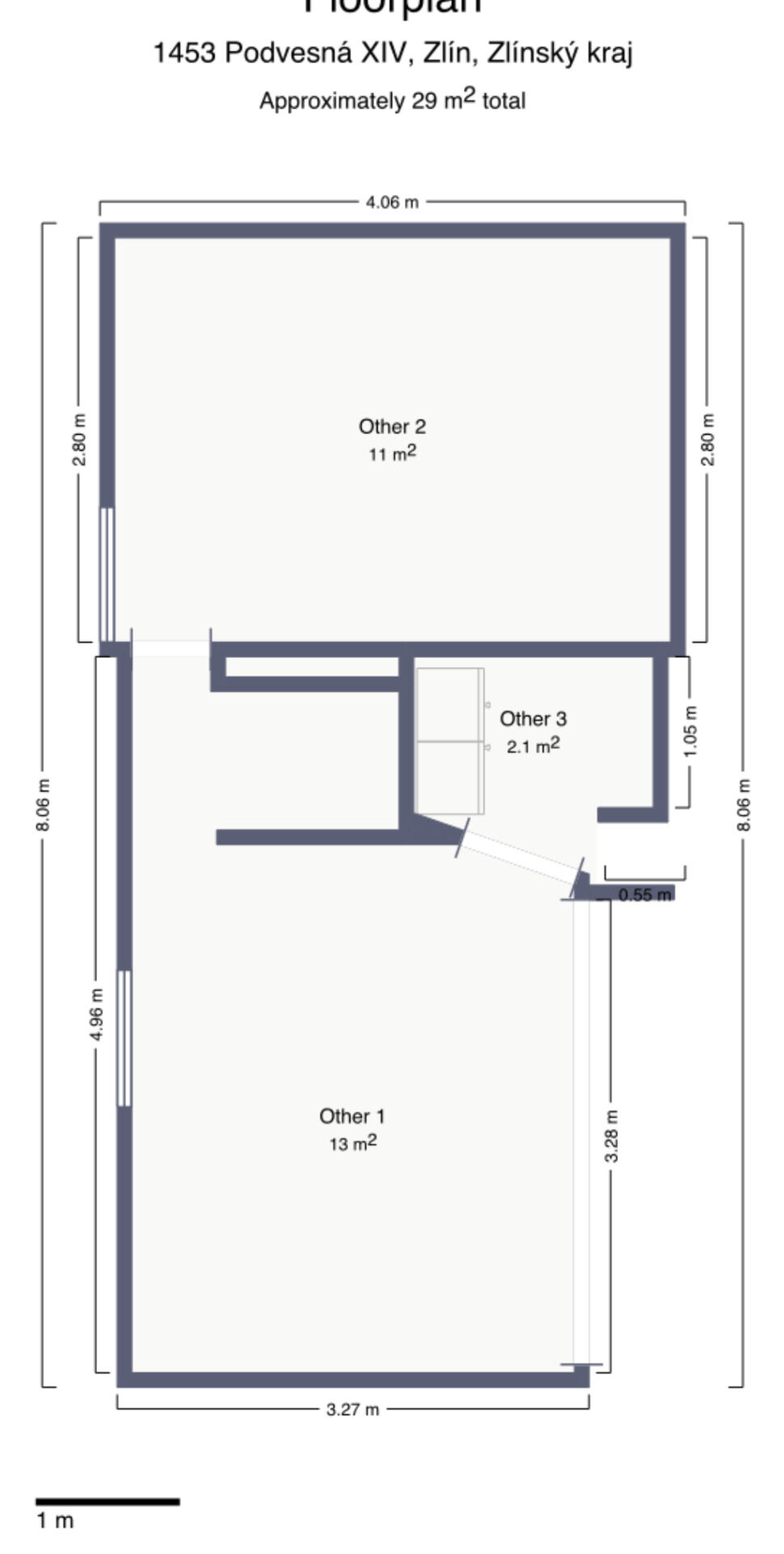
Dům s dispozicí 3+1 má obytnou plochu 68 m² a k tomu velkorysé zázemí – sklep o velikosti 32 m² a garážovou dílnu, kterou lze přestavět na prostornou přístavbu.
Hlavní předností je velká zahrada, která je dlouhodobě zajištěna městskou výpůjčkou. Na pozemku pohodlně zaparkujete dvě / tři auta, v zadní části zahrady najdete pergolu k posezení a bezpečné místo pro dětské hry.
Dům je napojen na veškeré inženýrské sítě, má plastová okna a plynový kotel. Je však potřeba počítat s tím, že stav domu je vhodný ke rekonstrukci.
Lokalita Podvesná nabízí klidné rodinné prostředí a zároveň skvělou dostupnost – pěšky jste za pár minut u nemocnice, na cyklostezce nebo v centru města.
Pokud hledáte dům s potenciálem, ve výborné lokalitě a s možností převzít velmi výhodný úvěr, je tato nabídka ideální kombinací ceny, polohy a budoucí hodnoty.
Zaujalo vás to? Zavolejte mi a domluvíme prohlídku. Rád vám dům osobně ukážu, poradím s možnostmi rekonstrukce i rozdělení a moji kolegové vám následně pomohou i s financováním.
Průkaz energetické náročnosti budovy nebyl předložen – dle platné legislativy uvádíme energetickou třídu G.
Neváhejte mě kontaktovat!
Váš zlínský makléř, Tomáš
KONIOR & Partners | Real Estate
Pomocí naší hypoteční kalkulačky si můžete udělat orientační představu o výši měsíčních splátek hypotéky. O vše ostatní se pak postaráme my ve spolupráci s našimi obchodními partnery.
18 612 Kč
* Odhadovaná měsíční splátka vychází z výše úvěru Kč s pevnou úrokovou sazbou % po celou dobu trvání úvěru.
Uživatel serveru RealityMIX.cz (dále jen „Server“) dostupného na internetové adrese (URL) https://www.realitymix.cz, který provozuje společnost DALTEN media s.r.o., se sídlem Na Harfě 916/9a, Praha 9, 190 00, IČO: 271 35 306 (dále jen „Správce“) jako provozovateli tohoto Serveru uděluje svůj výslovný souhlas v souladu s ustanovením § 5 zákona č. 101/2000 Sb. O ochraně osobních údajů a o změně některých zákonů, v platném znění (dále jen „zákon o ochraně osobních údajů“), se zpracováním uživatelem poskytnutých osobních údajů a dalších dat.
Uživatel poskytuje Správci osobní údaje v rozsahu: jméno, příjmení, e-mailová adresa, telefonický kontakt a další data, a to z důvodu projeveného zájmu o nemovitost, kde prostřednictvím služby Serveru Správce osloví Uživatel inzerenta uvedeného v detailu
nemovitosti - Konior & Partners | Real Estate (IČ 25597353) se zájmem o jeho služby.
Uživatel tyto osobní údaje poskytuje dobrovolně a bere na vědomí, že součástí služeb Správce, které Správce Uživateli poskytuje, je vyhledání všech Uživateli vyhovujících (dle parametrů - cena, typ nemovitosti, lokalita atd.) nemovitostí. Správce za tímto účelem provozuje aplikace Hlídací pes a newsletter. Tyto služby je možné z každého zaslaného emailu odhlásit. Souhlas se zpracováním osobních údajů Uživatel poskytuje Správci na dobu neurčitou s tím, že svůj udělený souhlas může Uživatel kdykoliv na drese správce info@realitymix.cz odvolat. Správce garantuje Uživateli i další práva uvedené v ustanovení §11 a §21 zákoba č. 101/200 Sb. Ve znění pozdějších předpisů.
Více informací o zpracování údajů získáte zde (realitymix.cz/zasady-ochrany-osobnich-udaju)