Pronájem komerčních prostor 183 m² – Zlín, u Tescomy
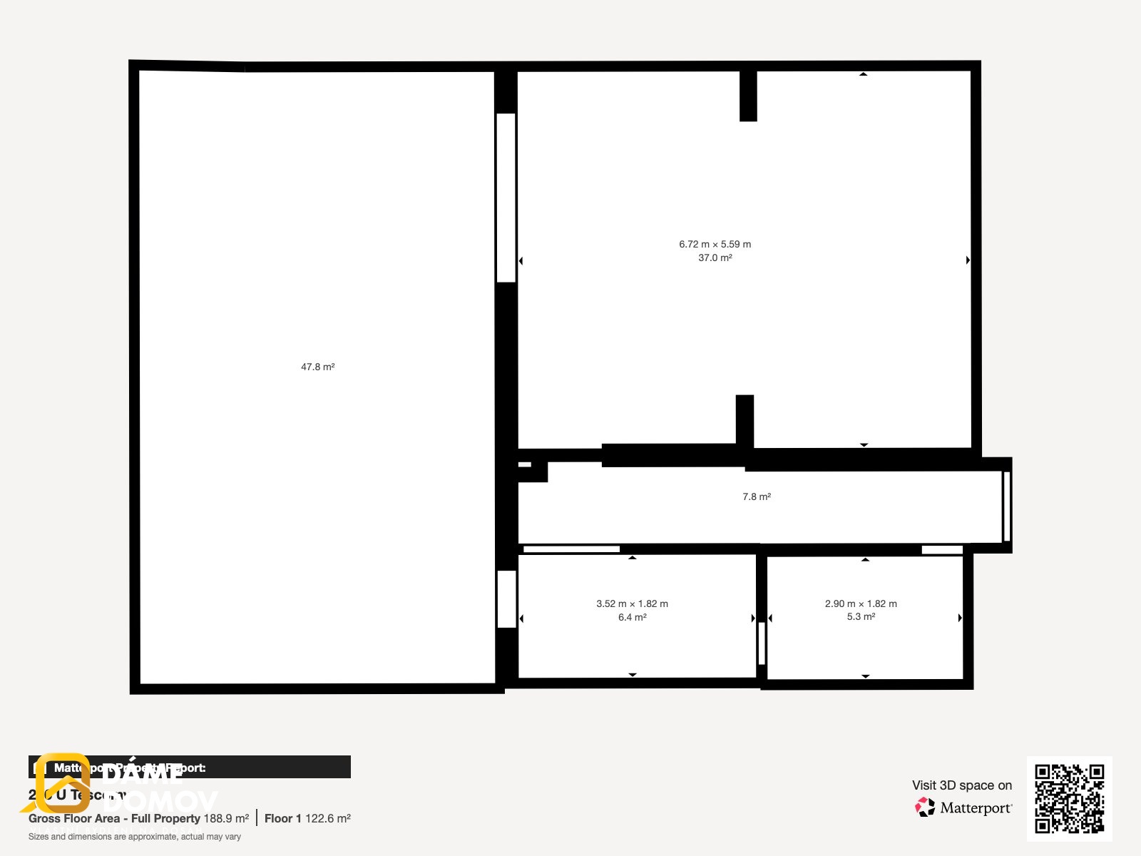
Nabízíme k pronájmu atraktivní komerční prostory o celkové výměře 183 m² s dostatečnou parkovací a manipulační plochou v průmyslové zóně na ulici U Tescomy ve Zlíně, pouhých pár minut od centra města.
Dispozice prostor:
Před budovou: parkovací a manipulační plocha o rozloze 195 m² (15m × 13 m).
Přízemí – 119 m²: otevřený prostor vhodný pro kanceláře, showroom, detailingové centrum, autoservis, pneuservis, různé služby či menší provoz.
Hlavní výhodou přízemí je přímý vstup přes tři garážová vrata, což vytváří ideální podmínky například pro auto-detailing, auto-pneu servis nebo jiné podnikání, kde je potřeba více vnitřních pracovních stání pro vozidla.
1. patro – 64 m²: ideální jako zázemí, kanceláře nebo sklad.
Celková plocha: 183 m² vnitřních prostorů, 195 m² venkovní plochy
Výhody lokality
- Prostorné parkoviště před budovou
- 3 vnitřní garážová stání
- Skvělá dostupnost autem i MHD
- Kompletní občanská vybavenost v okolí
- Frekventovaná poloha u Tescomy a blízkost centra města
- Flexibilní využití prostor s možností úprav dle dohody
Nájemné a poplatky:
Nájemné: 30 000 Kč / měsíc
Energie: 8 300 Kč / měsíc
Celkové měsíční náklady: 38 300 Kč
Při podpisu smlouvy se hradí vratná kauce a provize realitní kanceláři, obě ve výši jednoho celkového měsíčního nájemného.
Další informace:
V roce 2026 bude instalována fotovoltaická elektrárna, která povede ke snížení měsíčních nákladů na energie.
Pokud hledáte prostory pro své podnikání ve strategické lokalitě Zlína, neváhejte mě kontaktovat a domluvit si prohlídku.
Uživatel serveru RealityMIX.cz (dále jen „Server“) dostupného na internetové adrese (URL) https://www.realitymix.cz, který provozuje společnost DALTEN media s.r.o., se sídlem Na Harfě 916/9a, Praha 9, 190 00, IČO: 271 35 306 (dále jen „Správce“) jako provozovateli tohoto Serveru uděluje svůj výslovný souhlas v souladu s ustanovením § 5 zákona č. 101/2000 Sb. O ochraně osobních údajů a o změně některých zákonů, v platném znění (dále jen „zákon o ochraně osobních údajů“), se zpracováním uživatelem poskytnutých osobních údajů a dalších dat.
Uživatel poskytuje Správci osobní údaje v rozsahu: jméno, příjmení, e-mailová adresa, telefonický kontakt a další data, a to z důvodu projeveného zájmu o nemovitost, kde prostřednictvím služby Serveru Správce osloví Uživatel inzerenta uvedeného v detailu
nemovitosti - Dáme domov s.r.o. (IČ 19369859) se zájmem o jeho služby.
Uživatel tyto osobní údaje poskytuje dobrovolně a bere na vědomí, že součástí služeb Správce, které Správce Uživateli poskytuje, je vyhledání všech Uživateli vyhovujících (dle parametrů - cena, typ nemovitosti, lokalita atd.) nemovitostí. Správce za tímto účelem provozuje aplikace Hlídací pes a newsletter. Tyto služby je možné z každého zaslaného emailu odhlásit. Souhlas se zpracováním osobních údajů Uživatel poskytuje Správci na dobu neurčitou s tím, že svůj udělený souhlas může Uživatel kdykoliv na drese správce info@realitymix.cz odvolat. Správce garantuje Uživateli i další práva uvedené v ustanovení §11 a §21 zákoba č. 101/200 Sb. Ve znění pozdějších předpisů.
Více informací o zpracování údajů získáte zde (realitymix.cz/zasady-ochrany-osobnich-udaju)