Pronájem prostorného bytu 2+1 s balkonem, 72 m², Zlín – Morýsovy domy
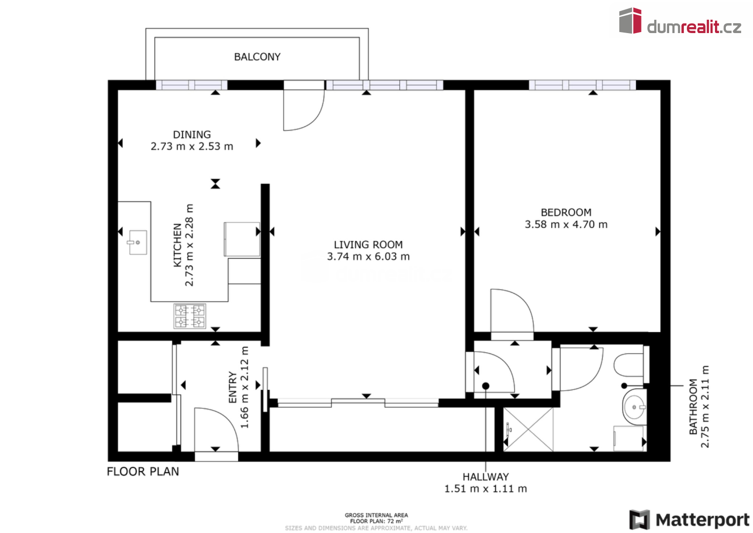
Nabízíme k pronájmu příjemný a prostorný byt o dispozici 2+1 s balkonem, který se nachází ve Zlíně v lokalitě Morýsovy domy. Byt o celkové výměře 72 m² nabízí praktické dispoziční řešení, dostatek úložných prostor a pohodlné bydlení v dobře dostupné části města.
Byt je umístěn v 5. patře bytového domu a je ve velmi udržovaném stavu. Dispozici tvoří vstupní chodba se dvěma komorami, koupelna se sprchovým koutem a WC, kuchyně s jídelním stolem, obývací pokoj se vstupem na balkon a samostatná ložnice. Obývací pokoj i ložnice jsou orientovány na východ, což zajišťuje příjemné ranní světlo a klidnější atmosféru během dne.
Velkou výhodou bytu je jeho vzdušnost, praktické zázemí pro každodenní bydlení a dostatek místa pro uložení věcí. K bytu náleží také sklepní kóje. Vybavení bytu bude ponecháno po dohodě se stávajícím nájemcem.
Měsíční nájemné činí 14.000 Kč. Zálohy na služby jsou stanoveny ve výši 4.000 Kč měsíčně + elektřina bude přepsána přímo na nájemce. Byt bude k dispozici od 1. 7. 2026.
Lokalita Morýsovy domy nabízí dobrou dostupnost služeb, občanské vybavenosti i centra Zlína. Parkování je možné v okolí bytového domu.
Byt je vhodný zejména pro jednotlivce nebo pár, kteří hledají prostorné a udržované bydlení v dobře dostupné části města.
Prohlídky budou probíhat v rámci prohlídkového dne po předchozí domluvě. V případě zájmu nás neváhejte kontaktovat. Ev. číslo: 656030.
Uživatel serveru RealityMIX.cz (dále jen „Server“) dostupného na internetové adrese (URL) https://www.realitymix.cz, který provozuje společnost DALTEN media s.r.o., se sídlem Na Harfě 916/9a, Praha 9, 190 00, IČO: 271 35 306 (dále jen „Správce“) jako provozovateli tohoto Serveru uděluje svůj výslovný souhlas v souladu s ustanovením § 5 zákona č. 101/2000 Sb. O ochraně osobních údajů a o změně některých zákonů, v platném znění (dále jen „zákon o ochraně osobních údajů“), se zpracováním uživatelem poskytnutých osobních údajů a dalších dat.
Uživatel poskytuje Správci osobní údaje v rozsahu: jméno, příjmení, e-mailová adresa, telefonický kontakt a další data, a to z důvodu projeveného zájmu o nemovitost, kde prostřednictvím služby Serveru Správce osloví Uživatel inzerenta uvedeného v detailu
nemovitosti - Dumrealit.cz (IČ 00537861) se zájmem o jeho služby. Tato společnost je součástí seskupení/sítě/franšízového modelu realitních kanceláří, jejich seznam můžete zobrazit kliknutím na tento odkaz.
Dumrealit.cz (IČ 00537861) , HOME 4 PEOPLE (IČ 29132886) , Reality 11 (IČ 29132886) , REAL ESTATE CZECH REPUBLIC a.s. (IČ 29132886) , Národní Realitní Holding a.s. (IČ 02918897)
Uživatel tyto osobní údaje poskytuje dobrovolně a bere na vědomí, že součástí služeb Správce, které Správce Uživateli poskytuje, je vyhledání všech Uživateli vyhovujících (dle parametrů - cena, typ nemovitosti, lokalita atd.) nemovitostí. Správce za tímto účelem provozuje aplikace Hlídací pes a newsletter. Tyto služby je možné z každého zaslaného emailu odhlásit. Souhlas se zpracováním osobních údajů Uživatel poskytuje Správci na dobu neurčitou s tím, že svůj udělený souhlas může Uživatel kdykoliv na drese správce info@realitymix.cz odvolat. Správce garantuje Uživateli i další práva uvedené v ustanovení §11 a §21 zákoba č. 101/200 Sb. Ve znění pozdějších předpisů.
Více informací o zpracování údajů získáte zde (realitymix.cz/zasady-ochrany-osobnich-udaju)