Prostorný rodinný dům v klidné části Malenovic – zahrada, garáž a dvě parkovací stání
Hledáte dům s velkým potenciálem v žádané lokalitě Zlín – Malenovice? Nabízíme samostatný cihlový rodinný dům z roku 1980 o užitné ploše 211 m2 na slunném pozemku 634 m2. Nemovitost stojí v klidné části obce v ulici Kamenec, s krásným výhledem a výbornou občanskou vybaveností v dosahu: škola, školka, nákupní centrum, restaurace, pošta, obecní úřad i lékař.
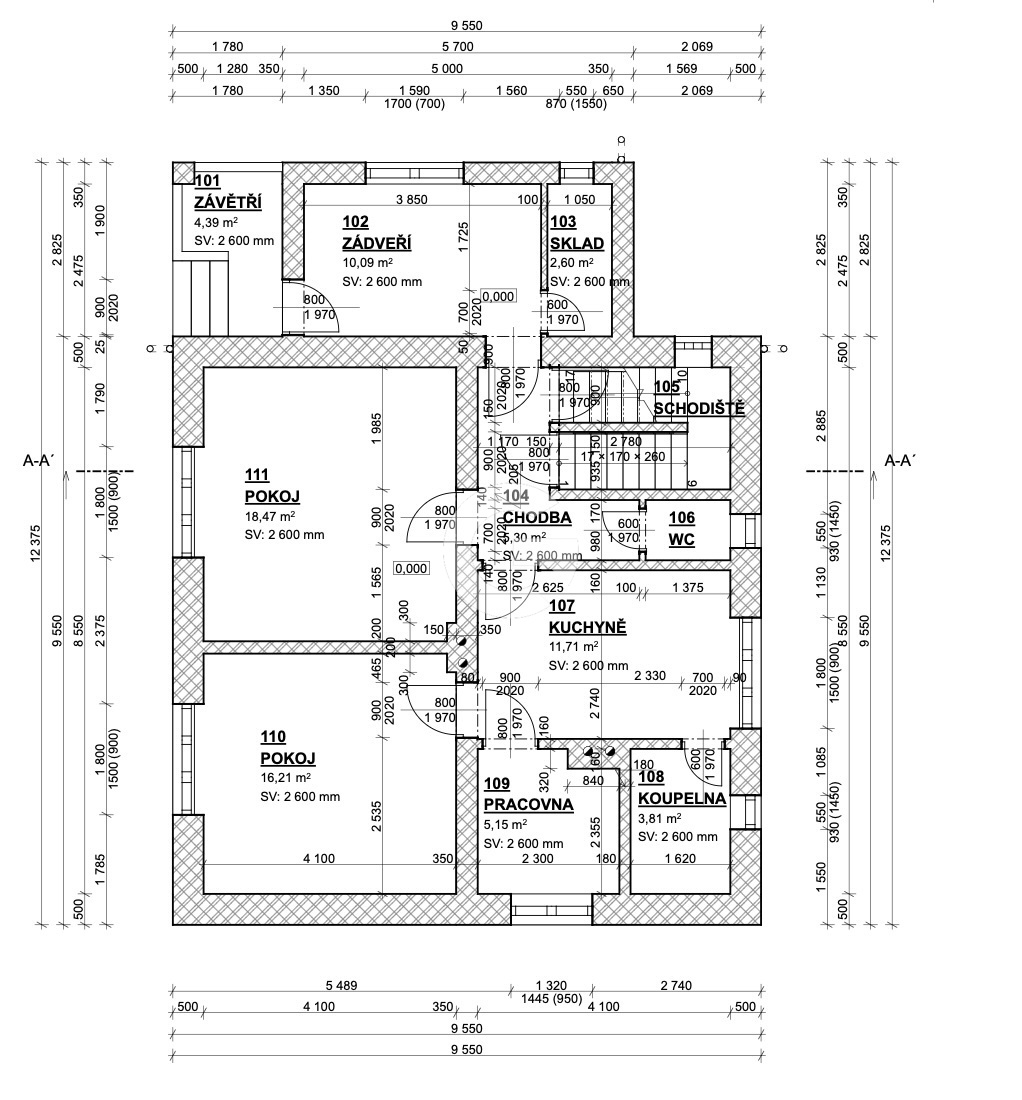
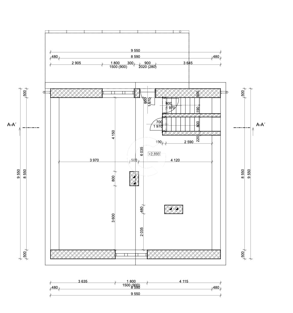
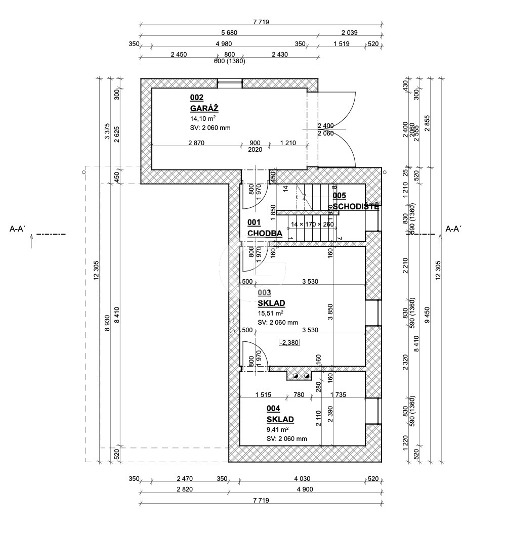
Dům nabízí 4 prostorné pokoje, 2 nadzemní podlaží a podzemní podlaží vhodné k dílně, skladům nebo přeměně na obytné prostory. Součástí je garáž a dvě parkovací místa. Konstrukce je cihlová, všechny sítě provedeny – elektřina 230 V, plynovod, dálkový vodovod a veřejná kanalizace. Příjezd asfaltovou komunikací, bez omezení.
Nemovitost je před rekonstrukcí, což dává novému majiteli možnost přetvořit interiér podle vlastních představ – moderní otevřené dispozice, energetické zateplení nebo vestavba dalších funkcí. Aktuální energetický průkaz: G (mimořádně nehospodárná) – příležitost k výraznému zvýšení hodnoty po modernizaci.
Hlavní přednosti:
- Prostorná užitná plocha 211 m2 na pozemku 634 m2
- Samostatný cihlový dům v klidné části Malenovic
- Garáž + 2 parkovací stání, zahrada
- Kompletní inženýrské sítě (plyn, voda, kanalizace, elektřina)
- V blízkosti škola, školka, obchodní centra a další infrastruktura
- Vhodné k rekonstrukci a přizpůsobení současným nárokům
Cena: 5 490 000 Kč včetně provize. Pro více informací a domluvení prohlídky kontaktujte makléře. Nechte se inspirovat potenciálem této nemovitosti a proměňte ji ve svůj vysněný domov.
Pomocí naší hypoteční kalkulačky si můžete udělat orientační představu o výši měsíčních splátek hypotéky. O vše ostatní se pak postaráme my ve spolupráci s našimi obchodními partnery.
22 228 Kč
* Odhadovaná měsíční splátka vychází z výše úvěru Kč s pevnou úrokovou sazbou % po celou dobu trvání úvěru.
Uživatel serveru RealityMIX.cz (dále jen „Server“) dostupného na internetové adrese (URL) https://www.realitymix.cz, který provozuje společnost DALTEN media s.r.o., se sídlem Na Harfě 916/9a, Praha 9, 190 00, IČO: 271 35 306 (dále jen „Správce“) jako provozovateli tohoto Serveru uděluje svůj výslovný souhlas v souladu s ustanovením § 5 zákona č. 101/2000 Sb. O ochraně osobních údajů a o změně některých zákonů, v platném znění (dále jen „zákon o ochraně osobních údajů“), se zpracováním uživatelem poskytnutých osobních údajů a dalších dat.
Uživatel poskytuje Správci osobní údaje v rozsahu: jméno, příjmení, e-mailová adresa, telefonický kontakt a další data, a to z důvodu projeveného zájmu o nemovitost, kde prostřednictvím služby Serveru Správce osloví Uživatel inzerenta uvedeného v detailu
nemovitosti - Good move (IČ 26964228) se zájmem o jeho služby.
Uživatel tyto osobní údaje poskytuje dobrovolně a bere na vědomí, že součástí služeb Správce, které Správce Uživateli poskytuje, je vyhledání všech Uživateli vyhovujících (dle parametrů - cena, typ nemovitosti, lokalita atd.) nemovitostí. Správce za tímto účelem provozuje aplikace Hlídací pes a newsletter. Tyto služby je možné z každého zaslaného emailu odhlásit. Souhlas se zpracováním osobních údajů Uživatel poskytuje Správci na dobu neurčitou s tím, že svůj udělený souhlas může Uživatel kdykoliv na drese správce info@realitymix.cz odvolat. Správce garantuje Uživateli i další práva uvedené v ustanovení §11 a §21 zákoba č. 101/200 Sb. Ve znění pozdějších předpisů.
Více informací o zpracování údajů získáte zde (realitymix.cz/zasady-ochrany-osobnich-udaju)