Prodej rodinného domu 3+kk 60 m2, terasa 43 m2, pozemek 1 313 m2 - Bojanovice u Zlobic
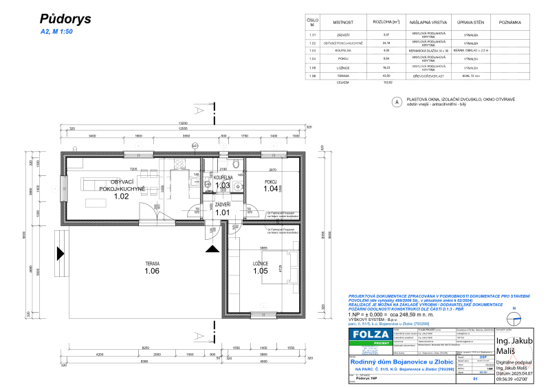
Nabízíme vám ke koupi novostavbu rodinného domu 3+kk, 60 m2, terasa 43 m2. pozemek 1 313 m2, který se nachází na okraji klidné obce Bojanovice u Zlobic, v její jižní části. Jedná se o prodej dřevostavby ve fázi schváleného stavebního povolení - tedy bezpečnou investici s jasným časovým horizontem dokončení. Dům bude realizován jako moderní dřevostavba ve tvaru L, založená na betonových základových patkách se základovou deskou.
Pozemek je rovinatý, slunný a nabízí příjemné prostředí s několika vzrostlými ovocnými stromy.
Dispozice a provedení:
Praktická dispozice 3+kk
Podlahová plocha 60 m2
Prostorná terasa 43 m2 navazující na obytný prostor
Dvě parkovací stání na pozemku
Příjezd přímo z obecní komunikace
Dům není podsklepen
Nemovitost je nabízena kompletně na klíč, bez kuchyňské linky. Součástí prodeje jsou: vytápění klimatizací + krb, podlahové krytiny, interiérové dveře a obložky, kompletně vybavená koupelna, hotové vnitřní a vnější povrchy, atd.
Nejsou zahrnuty terénní úpravy a oplocení - nový majitel si tak může finální podobu pozemku upravit dle vlastních představ.
V případě zájmu Vám rád poskytnu projektovou dokumentaci a detailní informace k provedení stavby.
Napojení na inženýrské sítě:
elektřina
obecní vodovod přes septik
obecní kanalizace
plynová přípojka v dosahu
Občanská vybavenost:
Mateřská škola, obecní úřad, obchody, restaurace, wellness centrum, pošta přímo v obci
Základní škola v sousední obci Bezměrov (cca 5 km)
Pokud hledáte místo pro klidné bydlení v přírodě s výbornou dostupností služeb, může být tento moderní úsporný dům na klíč ideální volbou právě pro Vás. Pro více informací nebo domluvení prohlídky nás neváhejte kontaktovat.
Prohlídka je možná po předchozí domluvě. Inzerovaná cena je včetně provize Bidli.
Pomocí naší hypoteční kalkulačky si můžete udělat orientační představu o výši měsíčních splátek hypotéky. O vše ostatní se pak postaráme my ve spolupráci s našimi obchodními partnery.
19 632 Kč
* Odhadovaná měsíční splátka vychází z výše úvěru Kč s pevnou úrokovou sazbou % po celou dobu trvání úvěru.
Uživatel serveru RealityMIX.cz (dále jen „Server“) dostupného na internetové adrese (URL) https://www.realitymix.cz, který provozuje společnost DALTEN media s.r.o., se sídlem Na Harfě 916/9a, Praha 9, 190 00, IČO: 271 35 306 (dále jen „Správce“) jako provozovateli tohoto Serveru uděluje svůj výslovný souhlas v souladu s ustanovením § 5 zákona č. 101/2000 Sb. O ochraně osobních údajů a o změně některých zákonů, v platném znění (dále jen „zákon o ochraně osobních údajů“), se zpracováním uživatelem poskytnutých osobních údajů a dalších dat.
Uživatel poskytuje Správci osobní údaje v rozsahu: jméno, příjmení, e-mailová adresa, telefonický kontakt a další data, a to z důvodu projeveného zájmu o nemovitost, kde prostřednictvím služby Serveru Správce osloví Uživatel inzerenta uvedeného v detailu
nemovitosti - Bidli reality, a.s. (IČ 06790763) se zájmem o jeho služby. Tato společnost je součástí seskupení/sítě/franšízového modelu realitních kanceláří, jejich seznam můžete zobrazit kliknutím na tento odkaz.
Hypocentrum modré pyramidy - Praha (IČ ) , Hypocentrum modré pyramidy - Brno (IČ ) , Hypocentrum Modré pyramidy - Hradec Králové (IČ ) , Hypocentrum Modré pyramidy - České Budějovice (IČ ) , Hypocentrum Modré pyramidy - Pardubice (IČ ) , Hypocentrum Modré pyramidy - Plzeň (IČ ) , Hypocentrum Modré pyramidy - Ústí nad Labem (IČ ) , Hypocentrum Modré pyramidy - Ostrava (IČ ) , Hypocentrum Modré pyramidy - Olomouc (IČ ) , Bidli reality, a.s. (IČ 06790763)
Uživatel tyto osobní údaje poskytuje dobrovolně a bere na vědomí, že součástí služeb Správce, které Správce Uživateli poskytuje, je vyhledání všech Uživateli vyhovujících (dle parametrů - cena, typ nemovitosti, lokalita atd.) nemovitostí. Správce za tímto účelem provozuje aplikace Hlídací pes a newsletter. Tyto služby je možné z každého zaslaného emailu odhlásit. Souhlas se zpracováním osobních údajů Uživatel poskytuje Správci na dobu neurčitou s tím, že svůj udělený souhlas může Uživatel kdykoliv na drese správce info@realitymix.cz odvolat. Správce garantuje Uživateli i další práva uvedené v ustanovení §11 a §21 zákoba č. 101/200 Sb. Ve znění pozdějších předpisů.
Více informací o zpracování údajů získáte zde (realitymix.cz/zasady-ochrany-osobnich-udaju)