Hledáte byt, který má atmosféru? Byt, kde večer zatopíte v krbu a opravdu se cítíte doma?
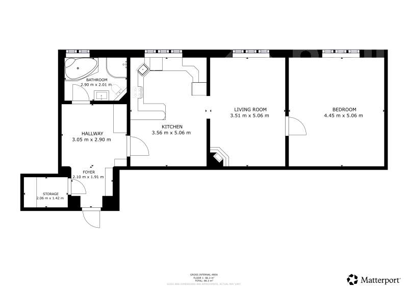
Nabízím k prodeji byt s dispozicí 2+1 o výměře 76,5 m2 na u lici Pražská ve Znojmě.
Byt se nachází se ve 3. patře cihlového domu z roku 1932. Plocha bytu je dle prohlášení vlastníka 76,5m2, k němu náleží sklepní kóje.
Dominantou obývacího pokoje je krb, který vytváří jedinečnou atmosféru a dává bytu charakter.
Nad bytem se nachází půdní prostor, který je možné po dohodě odkoupit a využít pro vytvoření mezonetového bydlení.
Byt prošel částečnou rekonstrukcí: kuchyňská linka včetně spotřebičů, rozvody elektroinstalace v mědi, výměna oken, klimatizace v kuchyni, plovoucí podlaha v ložnici a v kuchyni PVC, koupelna.
V technické místnosti se nachází vlastní vytápění plynovým kotlem, ohřev vody bojlerem a najdete v ní i místo na pračku.
Bytový dům byl revitalizován - nová střecha, výměna oken za plastová, nové stoupačky, nové vstupní dveře.
Měsíční náklady činí 1.690,-Kč, plus záloha na spotřebu zemního plynu a elektřiny.
Byt je k nastěhování od 1.7.2026 ( po domluvě i dříve).
Ulice Pražská nabízí kompletní občanskou vybavenost - školy, školky, obchody, dětské hřiště, služby i dobrou dostupnost do centra Znojma.
Doporučuji osobní prohlídku této nemovitosti. S financováním Vám ráda pomůžu. Pro více informací či domluvení prohlídky mne kontaktujte.
Pomocí naší hypoteční kalkulačky si můžete udělat orientační představu o výši měsíčních splátek hypotéky. O vše ostatní se pak postaráme my ve spolupráci s našimi obchodními partnery.
18 583 Kč
* Odhadovaná měsíční splátka vychází z výše úvěru Kč s pevnou úrokovou sazbou % po celou dobu trvání úvěru.
Prodáváte nemovitost a potřebujete zjistit její reálnou hodnotu?
Uživatel serveru RealityMIX.cz (dále jen „Server“) dostupného na internetové adrese (URL) https://www.realitymix.cz, který provozuje společnost DALTEN media s.r.o., se sídlem Na Harfě 916/9a, Praha 9, 190 00, IČO: 271 35 306 (dále jen „Správce“) jako provozovateli tohoto Serveru uděluje svůj výslovný souhlas v souladu s ustanovením § 5 zákona č. 101/2000 Sb. O ochraně osobních údajů a o změně některých zákonů, v platném znění (dále jen „zákon o ochraně osobních údajů“), se zpracováním uživatelem poskytnutých osobních údajů a dalších dat.
Uživatel poskytuje Správci osobní údaje v rozsahu: jméno, příjmení, e-mailová adresa, telefonický kontakt a další data, a to z důvodu projeveného zájmu o nemovitost, kde prostřednictvím služby Serveru Správce osloví Uživatel inzerenta uvedeného v detailu
nemovitosti - Bidli reality, a.s. (IČ 06790763) se zájmem o jeho služby. Tato společnost je součástí seskupení/sítě/franšízového modelu realitních kanceláří, jejich seznam můžete zobrazit kliknutím na tento odkaz.
Hypocentrum modré pyramidy - Praha (IČ ) , Hypocentrum modré pyramidy - Brno (IČ ) , Hypocentrum Modré pyramidy - Hradec Králové (IČ ) , Hypocentrum Modré pyramidy - České Budějovice (IČ ) , Hypocentrum Modré pyramidy - Pardubice (IČ ) , Hypocentrum Modré pyramidy - Plzeň (IČ ) , Hypocentrum Modré pyramidy - Ústí nad Labem (IČ ) , Hypocentrum Modré pyramidy - Ostrava (IČ ) , Hypocentrum Modré pyramidy - Olomouc (IČ ) , Bidli reality, a.s. (IČ 06790763)
Uživatel tyto osobní údaje poskytuje dobrovolně a bere na vědomí, že součástí služeb Správce, které Správce Uživateli poskytuje, je vyhledání všech Uživateli vyhovujících (dle parametrů - cena, typ nemovitosti, lokalita atd.) nemovitostí. Správce za tímto účelem provozuje aplikace Hlídací pes a newsletter. Tyto služby je možné z každého zaslaného emailu odhlásit. Souhlas se zpracováním osobních údajů Uživatel poskytuje Správci na dobu neurčitou s tím, že svůj udělený souhlas může Uživatel kdykoliv na drese správce info@realitymix.cz odvolat. Správce garantuje Uživateli i další práva uvedené v ustanovení §11 a §21 zákoba č. 101/200 Sb. Ve znění pozdějších předpisů.
Více informací o zpracování údajů získáte zde (realitymix.cz/zasady-ochrany-osobnich-udaju)