© 1999–2026 DALTEN media s.r.o.
Líbí se vám co vidíte?
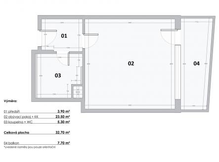
Olgy Havlové, Praha 3, Žižkov
+420 777 091 566