© 1999–2025 DALTEN media s.r.o.
Vyhledávání nemovitostí v kategorii . Vyberte si z naší nabídky nemovitostí, případně si upravte filtr vyhledávání.
Líbí se vám co vidíte?
Sobětice, Klatovy
296 399 006
Mníšek pod Brdy, okr. Praha-západ
+420 774356035
Rožmberk nad Vltavou, okr. Český Krumlov
Lesná, okr. Znojmo
Starosti spojené s prodejem či pronájmem chci nechat na profesionály
Chci využít soukromé inzerce na portálu RealityMIX.cz
Jiříkov, okr. Bruntál
+420 725586491
Thomayerova, Říčany, okr. Praha-východ
727 897 153
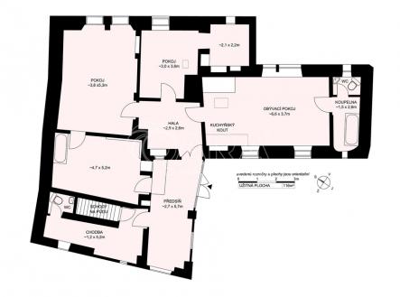
Nad motolskou nemocnicí, Praha 5
Svépravice, okr. Pelhřimov
Borkovany, okr. Břeclav
+420 725 422 155
Sportovní, Tanvald, okr. Jablonec nad Nisou
Praha-Zbraslav
+420 603 711 854
Jahodnická, Praha 9, Hloubětín
+420 730 890 886
Dolní Ostrovec, Ostrovec, okr. Písek
607202887
Na Václavce, Praha 5, Smíchov
+420 606 093 093
Nad Kajetánkou, Praha
Nad Kajetánkou, Praha 6, Břevnov
Horní Pertoltice, Pertoltice, okr. Liberec
+420 771 213 366
Nová Cerekev, okr. Pelhřimov
+420777227709
Vojtanov, okr. Cheb
Doubravice, okr. Trutnov
734241580