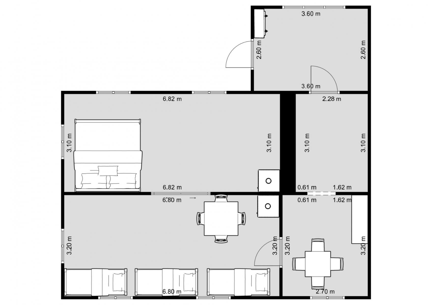
Prodej rodinného domu 96 m, pozemek 1312 m Josefovská, Adamov
Ve výhradním zastoupení majitele Vám nabízím ke koupi pozemek, jehož součástí je rodinný dům nacházející se na výjimečném místě poblíž archeologicky významné oblasti Býčí skála. Tento dům je situován nedaleko muzea Stará Huť v malebném Křtinském údolí, jenž je vzdálený 15 km od Brna. Pozemek o rozloze 1312 m je přístupný autem. Zastavěná plocha domu je 86 m, přístavek 10 m, kůlna cca 25 m vše evidované v katastru nemovitostí. Dispozice domu je 2+1 s nevyužívanou půdou přístupnou z venku. Vedle domu stojí torzo bývalého rychlého občerstvení, které bylo vítanou turistickou zastávkou. Dle územního plánu je celý pozemek v ploše pro individuální bydlení. Dům je památkově chránění v rámci lokality Stará Huť. Z toho vyplívá, že rekonstrukce, přístavba je přípustná se svolením dotčených orgánu, které budou trvat na zachování vizuálně původního charakteru lokality. V blízkosti souboru nemovitostí je autobusová zastávka Adamov, Stará huť. Objekt je v původním stavu, bez koupelny a WC (pouze budka), elektřina i obecní vodovod jsou zavedeny. Okolní majitelé nemovitostí si vybudovali vlastní čističky odpadních vod. Vytápění nemovitosti je tuhými palivem. Podél pozemku protéká nádherný a čistý Křtinský potok, jenž je od zahrady oddělen hliněným bezpečnostním valem. Aktuálně je objekt vhodný pro rekreaci, ale můžete si z něj vytvořit výjimečný prostor pro bydlení nebo komerční rekreaci. Koupi nemovitosti doporučuji hlavně milovníků lesů, lesních potoků, jedinečných jeskyní a nadšencům pro archeologii.
Pomocí naší hypoteční kalkulačky si můžete udělat orientační představu o výši měsíčních splátek hypotéky. O vše ostatní se pak postaráme my ve spolupráci s našimi obchodními partnery.
17 928 Kč
* Odhadovaná měsíční splátka vychází z výše úvěru Kč s pevnou úrokovou sazbou % po celou dobu trvání úvěru.
Uživatel serveru RealityMIX.cz (dále jen „Server“) dostupného na internetové adrese (URL) https://www.realitymix.cz, který provozuje společnost DALTEN media s.r.o., se sídlem Na Harfě 916/9a, Praha 9, 190 00, IČO: 271 35 306 (dále jen „Správce“) jako provozovateli tohoto Serveru uděluje svůj výslovný souhlas v souladu s ustanovením § 5 zákona č. 101/2000 Sb. O ochraně osobních údajů a o změně některých zákonů, v platném znění (dále jen „zákon o ochraně osobních údajů“), se zpracováním uživatelem poskytnutých osobních údajů a dalších dat.
Uživatel poskytuje Správci osobní údaje v rozsahu: jméno, příjmení, e-mailová adresa, telefonický kontakt a další data, a to z důvodu projeveného zájmu o nemovitost, kde prostřednictvím služby Serveru Správce osloví Uživatel inzerenta uvedeného v detailu
nemovitosti - High floor, s.r.o. (IČ 09468773) se zájmem o jeho služby.
Uživatel tyto osobní údaje poskytuje dobrovolně a bere na vědomí, že součástí služeb Správce, které Správce Uživateli poskytuje, je vyhledání všech Uživateli vyhovujících (dle parametrů - cena, typ nemovitosti, lokalita atd.) nemovitostí. Správce za tímto účelem provozuje aplikace Hlídací pes a newsletter. Tyto služby je možné z každého zaslaného emailu odhlásit. Souhlas se zpracováním osobních údajů Uživatel poskytuje Správci na dobu neurčitou s tím, že svůj udělený souhlas může Uživatel kdykoliv na drese správce info@realitymix.cz odvolat. Správce garantuje Uživateli i další práva uvedené v ustanovení §11 a §21 zákoba č. 101/200 Sb. Ve znění pozdějších předpisů.
Více informací o zpracování údajů získáte zde (realitymix.cz/zasady-ochrany-osobnich-udaju)