Prodej rodinného 2+1 s obchodním prostorem 35 m2, Brandýs nad Labem-Stará Boleslav
Prodej rodinného domu s komerčním prostorem a výnosem 420 000,- Kč/rok – Stará Boleslav
Nabízíme k prodeji jedinečný rodinný dům z roku 1887 s kamennými základy, nacházející se v historickém centru Staré Boleslavi. Tato nemovitost představuje výbornou investiční příležitost – díky dvěma samostatným částem nabízí celkový roční výnos až 420 000,- Kč.
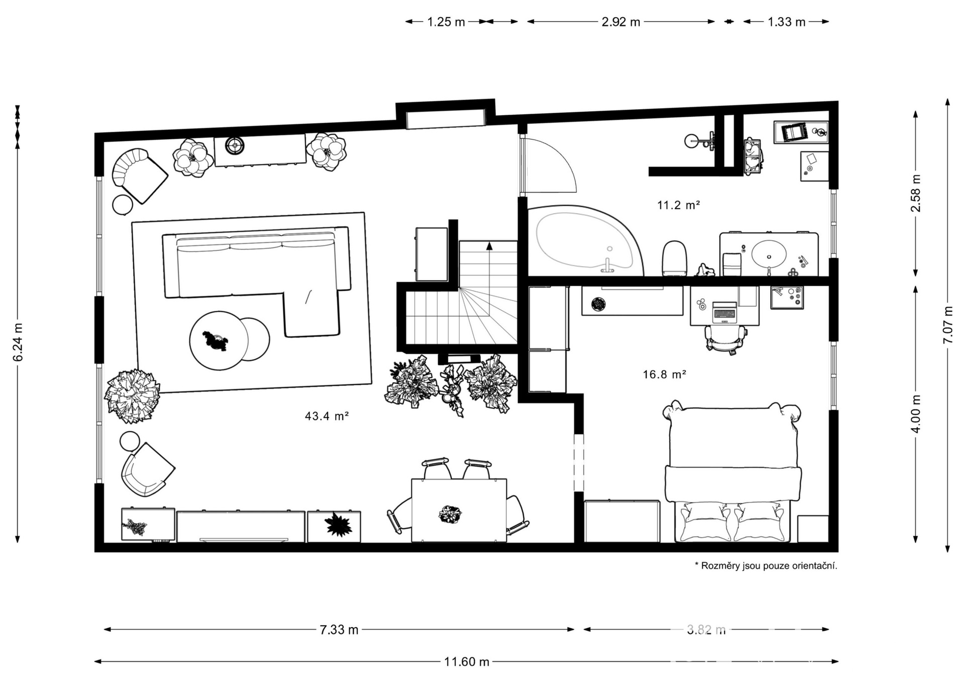
Komerční prostor (35 m²) se nachází v přízemí domu a má samostatný vstup, vlastní sociální zázemí, sklad a oddělené měření elektřiny. V současnosti je dlouhodobě pronajat stabilnímu nájemci – optice – s ročním výnosem 180 000 Kč. Prostor je v perfektním stavu, bez nutnosti úprav, a poskytuje jistý a bezstarostný příjem.
Obytná část domu o dispozici 2+1 nabízí možnost pohodlného bydlení nebo dalšího pronájmu s ročním výnosem 240 000,- Kč. V přízemí se nachází vstupní chodba, technická místnost s místem pro pračku a sušičku, špajz a kuchyně s jídelnou s výhledem do dvora. Po dřevěném schodišti vystoupáte do patra, kde je prostorný obývací pokoj s krbovými kamny, ložnice a koupelna se sprchovým koutem i vanou (aktuálně v rekonstrukci).
Dům nabízí mnoho dispozičních možností – díky rozvodům vody a odpadu v obývacím pokoji je možné vytvořit druhou kuchyni a rozdělit tak prostor na dvě bytové jednotky. Vytápění a ohřev vody zajišťuje kondenzační plynový kotel (stáří 6 let).
Za domem se nachází uzavřený dvorek se zahrádkou, terasou a studnou, ideální pro relaxaci a klidné posezení. Z terasy se otevírá jedinečný výhled na kostel Nanebevzetí Panny Marie, který dotváří kouzelnou atmosféru celého místa.
Lokalita je naprosto výjimečná – v pěší vzdálenosti jsou obchody, restaurace, školy, školky i zastávky MHD. Okolí láká k procházkám, jízdě na kole či posezení u Labe. Praha je dostupná autem do 20 minut.
Tento dům je skvělou volbou pro investory i pro ty, kteří hledají stylové bydlení s duší historie a jistým výnosem. Možnost financování hypotečním úvěrem.
Souhrn:
komerční prostor 35 m² – výnos 180 000 Kč/rok
dům se zahradou – výnos 240 000 Kč/rok
celkový výnos: 420 000 Kč/rok
dispozice 2+1, možnost rozšíření
kondenzační plynový kotel (6 let)
terasa, studna, výhled na kostel
centrum Staré Boleslavi
Tento dům je ideální volbou pro ty, kteří hledají stylové bydlení s duší minulosti, ale zároveň chtějí praktickou investici s jistým výnosem.
Možnost financování hypotečním úvěrem.
Pomocí naší hypoteční kalkulačky si můžete udělat orientační představu o výši měsíčních splátek hypotéky. O vše ostatní se pak postaráme my ve spolupráci s našimi obchodními partnery.
41 661 Kč
* Odhadovaná měsíční splátka vychází z výše úvěru Kč s pevnou úrokovou sazbou % po celou dobu trvání úvěru.
Uživatel serveru RealityMIX.cz (dále jen „Server“) dostupného na internetové adrese (URL) https://www.realitymix.cz, který provozuje společnost DALTEN media s.r.o., se sídlem Na Harfě 916/9a, Praha 9, 190 00, IČO: 271 35 306 (dále jen „Správce“) jako provozovateli tohoto Serveru uděluje svůj výslovný souhlas v souladu s ustanovením § 5 zákona č. 101/2000 Sb. O ochraně osobních údajů a o změně některých zákonů, v platném znění (dále jen „zákon o ochraně osobních údajů“), se zpracováním uživatelem poskytnutých osobních údajů a dalších dat.
Uživatel poskytuje Správci osobní údaje v rozsahu: jméno, příjmení, e-mailová adresa, telefonický kontakt a další data, a to z důvodu projeveného zájmu o nemovitost, kde prostřednictvím služby Serveru Správce osloví Uživatel inzerenta uvedeného v detailu
nemovitosti - Aktivreality (IČ 04581679) se zájmem o jeho služby.
Uživatel tyto osobní údaje poskytuje dobrovolně a bere na vědomí, že součástí služeb Správce, které Správce Uživateli poskytuje, je vyhledání všech Uživateli vyhovujících (dle parametrů - cena, typ nemovitosti, lokalita atd.) nemovitostí. Správce za tímto účelem provozuje aplikace Hlídací pes a newsletter. Tyto služby je možné z každého zaslaného emailu odhlásit. Souhlas se zpracováním osobních údajů Uživatel poskytuje Správci na dobu neurčitou s tím, že svůj udělený souhlas může Uživatel kdykoliv na drese správce info@realitymix.cz odvolat. Správce garantuje Uživateli i další práva uvedené v ustanovení §11 a §21 zákoba č. 101/200 Sb. Ve znění pozdějších předpisů.
Více informací o zpracování údajů získáte zde (realitymix.cz/zasady-ochrany-osobnich-udaju)