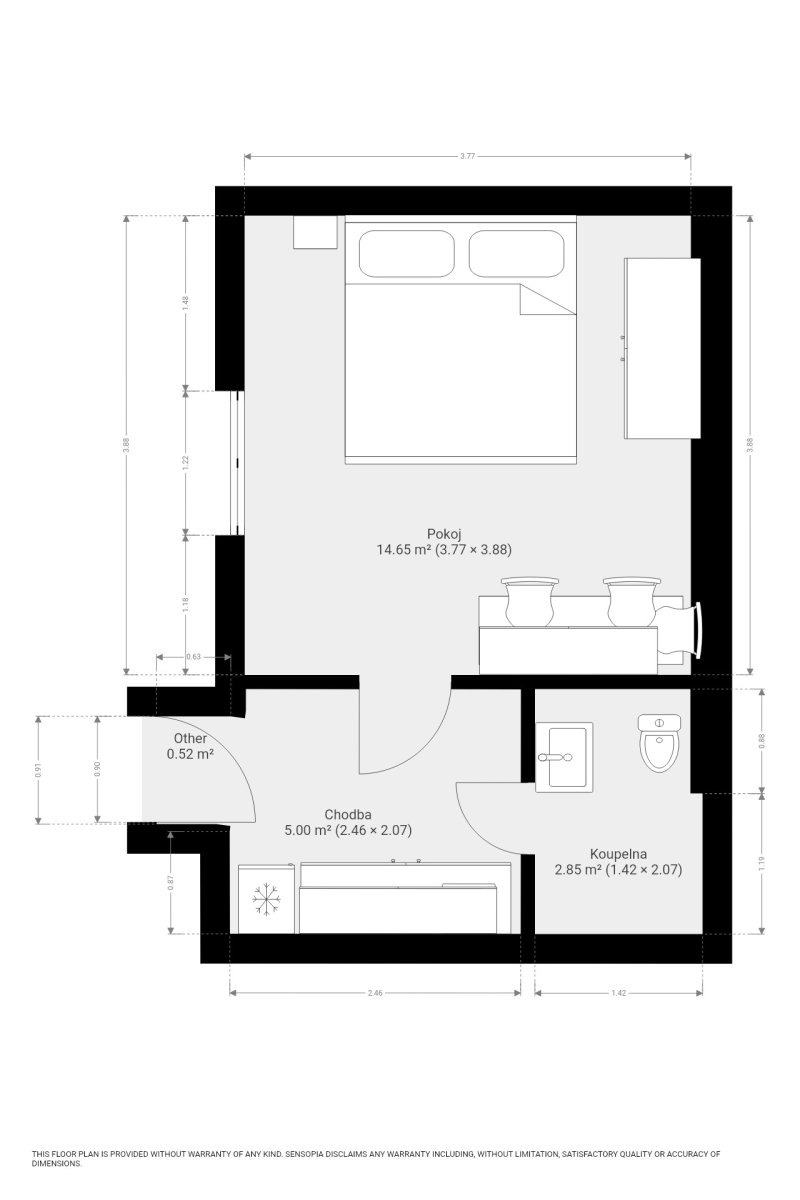
Byt k pronájmu 1+1, Bubeníčkova, Židenice, 14 000 Kč/měsíc, 25 m²
Nabízíme k dlouhodobému podnájmu moderní a plně vybavený byt o dispozici 1+1 a podlahové ploše 25 m², který se nachází v 1. nadzemním podlaží novostavby na ulici Bubeníčkova v Brně. Byt je součástí nového rezidenčního projektu (celkem 16 bytů, z toho 12 bytů této velikosti a dispozice), který klade důraz na kvalitní provedení, energetickou úspornost a komfortní bydlení.
Interiér bytu je navržen s důrazem na funkčnost a čistý moderní design. Byt se nabízí plně vybavený dle vizualizací, které odpovídají plánovanému finálnímu stavu. Kuchyňská linka je vybavena dřezem, lednicí, dvouplotýnkovou varnou deskou, digestoří a mikrovlnnou troubou. Součástí bytu jsou dále úložné prostory i kompletní zařízení obytné části. Byt je ideální pro jednotlivce nebo pár, kteří hledají praktické a kvalitní bydlení v klidném prostředí s dobrou dostupností do centra města.
Velkou přidanou hodnotou domu je společný zabezpečený vnitroblok, který nabízí klidnou zelenou zónu vhodnou k posezení, relaxaci či grilování.
Součástí areálu je rovněž zázemí s moderní pračkou a sušičkou.
Parkování je řešeno v okolních veřejných zónách. Majitel preferuje zájemce bez domácích mazlíčků. Součástí nájmu je také připojení k internetu.
Byt bude volný k okamžitému nastěhování.
Energetická náročnost budovy odpovídá třídě A, což zajišťuje vysoký komfort bydlení a velmi nízkou energetickou náročnost.
Byt pronajímá služba Ideální nájemce – férový a bezstarostný pronájem. Postaráme se o veškerou administrativu, nastavení plateb i řešení případných oprav. Po celou dobu bydlení jsme vám k dispozici, abyste si mohli užívat pohodové bydlení bez starostí.
V případě zájmu o více informací nebo domluvení prohlídky nás neváhejte kontaktovat. Rádi vám byt osobně představíme.
Cena:
14 000 Kč / (za měsíc)
Poznámka:
vratná jistota, náklady na bydlení 3 170 Kč, poplatek za podnájem
Uživatel serveru RealityMIX.cz (dále jen „Server“) dostupného na internetové adrese (URL) https://www.realitymix.cz, který provozuje společnost DALTEN media s.r.o., se sídlem Na Harfě 916/9a, Praha 9, 190 00, IČO: 271 35 306 (dále jen „Správce“) jako provozovateli tohoto Serveru uděluje svůj výslovný souhlas v souladu s ustanovením § 5 zákona č. 101/2000 Sb. O ochraně osobních údajů a o změně některých zákonů, v platném znění (dále jen „zákon o ochraně osobních údajů“), se zpracováním uživatelem poskytnutých osobních údajů a dalších dat.
Uživatel poskytuje Správci osobní údaje v rozsahu: jméno, příjmení, e-mailová adresa, telefonický kontakt a další data, a to z důvodu projeveného zájmu o nemovitost, kde prostřednictvím služby Serveru Správce osloví Uživatel inzerenta uvedeného v detailu
nemovitosti - Ideální nájemce (IČ 29300631) se zájmem o jeho služby.
Uživatel tyto osobní údaje poskytuje dobrovolně a bere na vědomí, že součástí služeb Správce, které Správce Uživateli poskytuje, je vyhledání všech Uživateli vyhovujících (dle parametrů - cena, typ nemovitosti, lokalita atd.) nemovitostí. Správce za tímto účelem provozuje aplikace Hlídací pes a newsletter. Tyto služby je možné z každého zaslaného emailu odhlásit. Souhlas se zpracováním osobních údajů Uživatel poskytuje Správci na dobu neurčitou s tím, že svůj udělený souhlas může Uživatel kdykoliv na drese správce info@realitymix.cz odvolat. Správce garantuje Uživateli i další práva uvedené v ustanovení §11 a §21 zákoba č. 101/200 Sb. Ve znění pozdějších předpisů.
Více informací o zpracování údajů získáte zde (realitymix.cz/zasady-ochrany-osobnich-udaju)