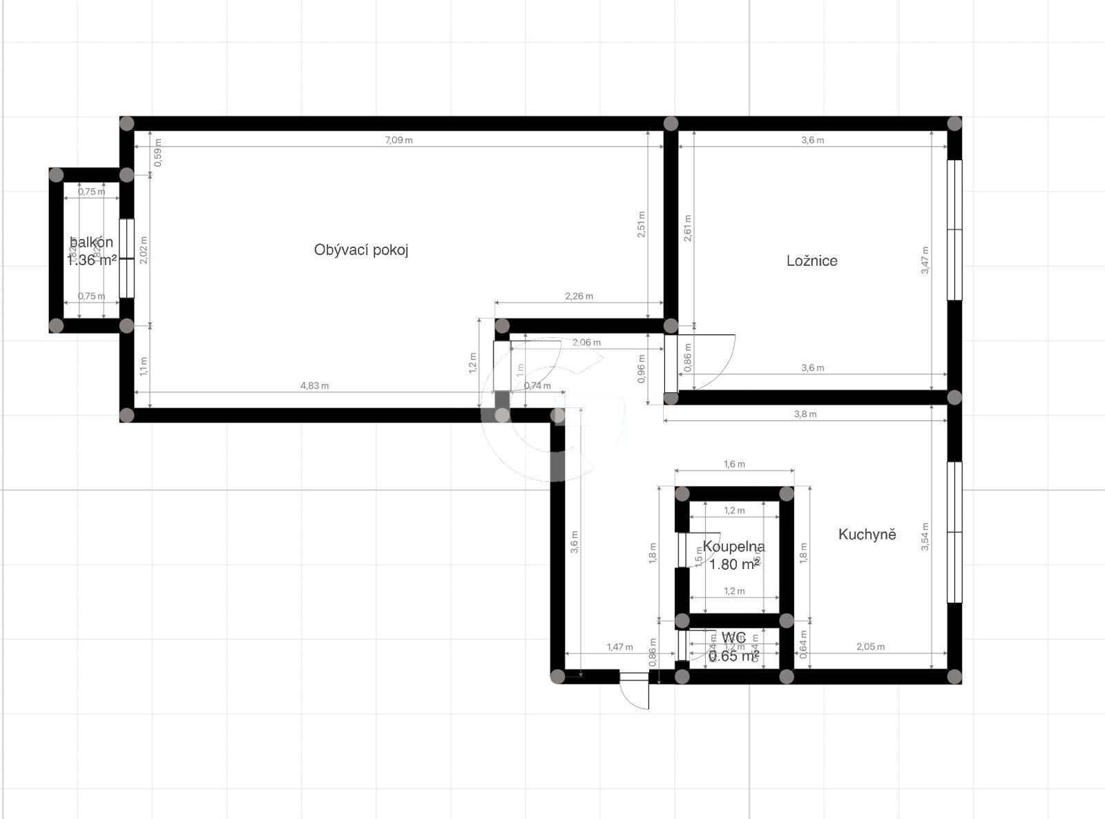
Nabízíme k prodeji slunný byt o dispozici 2+1 s prakticky odděleným prostorem a celkové ploše 55 m², situovaný přímo na náměstí SNP v jedné z nejvyhledávanějších brněnských čtvrtí – Černá Pole.
Byt je v původním, udržovaném stavu, což vám dává dvě jasné možnosti. Můžete ho začít okamžitě využívat – stačí dovybavit nábytkem a získáte plnohodnotné, funkční bydlení ideální jako startovací byt nebo zázemí pro studenty. Zároveň ale nabízí velmi zajímavý potenciál do budoucna – rekonstrukcí si prostor přizpůsobíte přesně podle sebe nebo ho optimalizujete pro maximální výnos z pronájmu.
Dispozice bytu nabízí víc, než se na první pohled zdá. Vedle klasického řešení 2+1 zde najdete také prakticky oddělený prostor, který dnes funguje jako
otevřená zóna, ale snadno poslouží jako pracovna, spací kout nebo šatna. Díky svému uspořádání jej lze navíc jednoduchým řešením (např. příčkou a dveřmi) přeměnit na samostatnou menší místnost. Právě tato variabilita výrazně zvyšuje atraktivitu jak pro vlastní bydlení, tak pro pronájem více osobám.
Balkon orientovaný do zeleně přináší příjemný klid a prostor pro každodenní relax, zatímco sklepní kóje řeší praktickou stránku úložného prostoru.
Velkou výhodou je samotný dům, který prošel kompletní revitalizací – zateplení, fasáda, stupačky, výtahy, elektřina i střecha. Pro nového majitele to znamená minimum starostí a dlouhodobě stabilní hodnotu nemovitosti. Energetická třída C navíc drží provozní náklady v rozumné hladině.
Černá Pole patří dlouhodobě mezi lokality s vysokou poptávkou po bydlení. Výborná dostupnost do centra, kompletní občanská vybavenost v docházkové vzdálenosti a blízkost zeleně dělají z této adresy ideální volbu jak pro vlastní bydlení, tak pro investici.
Cena:
Rezervováno
Dispozice/podlahová plocha:
2+1/55 m²
Číslo zakázky:
REALITYMIX-2026-03-18
Podrobné informace
Dispozice bytu:2+1
Číslo podlaží v domě:1
Počet podlaží objektu:7
Užitná plocha:58 m²
Celková podlahová plocha:55 m²
Druh objektu:panelová
Stav objektu:dobrý
Vlastnictví:osobní
Umístění objektu:klidná část obce
Elektřina:Elektro - 230 V
Voda:Voda - dálkový vodovod
Plyn:Plynovod
Topení:Ústřední - dálkové
Odpad:Kanalizace
Energetická náročnost budovy:C - Úsporná
Energetický ukazatel podle vyhlášky:č. 264/2020 Sb.
Uživatel serveru RealityMIX.cz (dále jen „Server“) dostupného na internetové adrese (URL) https://www.realitymix.cz, který provozuje společnost DALTEN media s.r.o., se sídlem Na Harfě 916/9a, Praha 9, 190 00, IČO: 271 35 306 (dále jen „Správce“) jako provozovateli tohoto Serveru uděluje svůj výslovný souhlas v souladu s ustanovením § 5 zákona č. 101/2000 Sb. O ochraně osobních údajů a o změně některých zákonů, v platném znění (dále jen „zákon o ochraně osobních údajů“), se zpracováním uživatelem poskytnutých osobních údajů a dalších dat.
Uživatel poskytuje Správci osobní údaje v rozsahu: jméno, příjmení, e-mailová adresa, telefonický kontakt a další data, a to z důvodu projeveného zájmu o nemovitost, kde prostřednictvím služby Serveru Správce osloví Uživatel inzerenta uvedeného v detailu
nemovitosti - Good move (IČ 26964228) se zájmem o jeho služby.
Uživatel tyto osobní údaje poskytuje dobrovolně a bere na vědomí, že součástí služeb Správce, které Správce Uživateli poskytuje, je vyhledání všech Uživateli vyhovujících (dle parametrů - cena, typ nemovitosti, lokalita atd.) nemovitostí. Správce za tímto účelem provozuje aplikace Hlídací pes a newsletter. Tyto služby je možné z každého zaslaného emailu odhlásit. Souhlas se zpracováním osobních údajů Uživatel poskytuje Správci na dobu neurčitou s tím, že svůj udělený souhlas může Uživatel kdykoliv na drese správce info@realitymix.cz odvolat. Správce garantuje Uživateli i další práva uvedené v ustanovení §11 a §21 zákoba č. 101/200 Sb. Ve znění pozdějších předpisů.
Více informací o zpracování údajů získáte zde (realitymix.cz/zasady-ochrany-osobnich-udaju)