Nabízíme k pronájmu světlý byt umístěný v klidnější uličce z ulice Vídeňská. Byt je orientován na Jih a nachází se ve 2. nadzemním podlaží bytového domu v těsné blízkosti nemocnice U Milosrdných Bratří a tudíž i v blízkosti veškeré občanské vybavenosti.
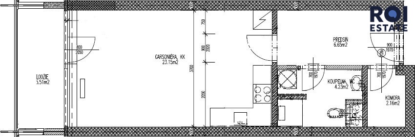
Celková výměra bytu je 41m² a dispoziční řešení bytu je 1+kk, velkou výhodou je možnost pronájmu venkovního parkovací stání 2 000 Kč/měsíc.
Z prostorné předsíně jsou zvlášť vstupy do, koupelny se sprchovým koutem a toaletou a dále do obývacího pokoje s kuchyňským koutem. Z pokoje je přístupný velký balkon. Byt se pronajímá zařízený kuchyní a vestavěnou skříní v předsíni. Předání probíhá po čerstvé výmalbě na bílo včetně kompletně uklizeného bytu.
Prohlídky jsou možné po domluvě v případě zájmu o prohlídku nás neváhejte kontaktovat.
Byt je k dispozici od 1.3. 2026, případně po domluvě i dříve.
Vybavení bytu nemusí odpovídat zobrazenému stavu na fotografiích.
Tento byt je podnajímán se službou „Váš Domácí“.
Je to služba, kdy podnájemce automaticky získává:
- plně pojištěný byt s non stop asistenční linkou, kdy pojištění se vztahuje navíc i na odpovědnost za škody způsobené v běžném životě, prodlouženou záruku spotřebičů o 2 roky, a nebo servisní techniky v případě pojistné události (práce zámečníka, opravy havárií).
- zákaznický servis služby „Váš Domácí“ od 9:00 – 17:00 pro řešení Vašich dotazů a požadavků
- technickou podporu (pro případ, že budete chtít pomoci s technickými záležitostmi na bytě)
- možnost výměny bytu za větší/menší/jinde z portfolia bytů či domů Váš Domácí (Brno, Praha a další města)
Podnajmout si byt nebylo nikdy snazší a efektivnější.
Cena:
16 490 Kč / (za měsíc)
Poznámka:
+2 900 Kč za zálohy na energie a služby, 2 000 Kč parkování +vratná kauce + provize RK
Dispozice/podlahová plocha:
1+kk/41 m²
Číslo zakázky:
REALITYMIX-05431-4
Podrobné informace
Bezbariérový byt:ano
Dispozice bytu:1+kk
Číslo podlaží v domě:2
Počet podlaží objektu:5
Celková podlahová plocha:41 m²
Druh objektu:cihlová
Stav objektu:novostavba
Vlastnictví:osobní
Terasa:7 m²
Vybaveno:ano
Doprava:silnice, MHD, autobus
Elektřina:Elektro - 230 V
Voda:Zdroj pro celý objekt, Voda - dálkový vodovod
Uživatel serveru RealityMIX.cz (dále jen „Server“) dostupného na internetové adrese (URL) https://www.realitymix.cz, který provozuje společnost DALTEN media s.r.o., se sídlem Na Harfě 916/9a, Praha 9, 190 00, IČO: 271 35 306 (dále jen „Správce“) jako provozovateli tohoto Serveru uděluje svůj výslovný souhlas v souladu s ustanovením § 5 zákona č. 101/2000 Sb. O ochraně osobních údajů a o změně některých zákonů, v platném znění (dále jen „zákon o ochraně osobních údajů“), se zpracováním uživatelem poskytnutých osobních údajů a dalších dat.
Uživatel poskytuje Správci osobní údaje v rozsahu: jméno, příjmení, e-mailová adresa, telefonický kontakt a další data, a to z důvodu projeveného zájmu o nemovitost, kde prostřednictvím služby Serveru Správce osloví Uživatel inzerenta uvedeného v detailu
nemovitosti - ROI Estate (IČ 04426169) se zájmem o jeho služby.
Uživatel tyto osobní údaje poskytuje dobrovolně a bere na vědomí, že součástí služeb Správce, které Správce Uživateli poskytuje, je vyhledání všech Uživateli vyhovujících (dle parametrů - cena, typ nemovitosti, lokalita atd.) nemovitostí. Správce za tímto účelem provozuje aplikace Hlídací pes a newsletter. Tyto služby je možné z každého zaslaného emailu odhlásit. Souhlas se zpracováním osobních údajů Uživatel poskytuje Správci na dobu neurčitou s tím, že svůj udělený souhlas může Uživatel kdykoliv na drese správce info@realitymix.cz odvolat. Správce garantuje Uživateli i další práva uvedené v ustanovení §11 a §21 zákoba č. 101/200 Sb. Ve znění pozdějších předpisů.
Více informací o zpracování údajů získáte zde (realitymix.cz/zasady-ochrany-osobnich-udaju)