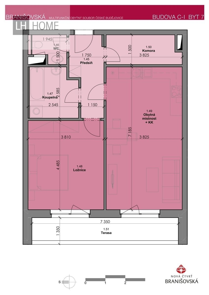
Bytová jednotka 2+kk (67,30 m²) s balkonem (8,50 m²)
IHNED K NASTĚHOVÁNÍ • PRODEJ PŘÍMO OD DEVELOPERA
Nabízíme moderní byt 2+kk (67,30 m²) s balkonem (8,50 m²) ve vyhledávaném projektu Nová čtvrť Branišovská, České Budějovice.
Byt se nachází v 1. patře novostavby, orientovaný na západ. Díky své prostornosti a světlosti poskytuje velmi pohodlné bydlení vhodné pro jednotlivce, páry i mladé rodiny.
Vybavení a standard:
- kvalitní keramická dlažba
- vinylové podlahy
- moderní interiérové dveře s obložkami
Výhody lokality – Nová čtvrť Branišovská:
- klidné prostředí obklopené zelení
- rychlá dostupnost do centra Českých Budějovic
- skvělá poloha u Jihočeské univerzity – vhodné i jako investice
- kompletní občanská vybavenost v pěším dosahu
- ideální místo pro aktivní život (cyklostezky, příroda, vycházky)
Co projekt nabízí:
- moderní bezbariérové byty 2+kk a 3+kk
- každý byt má balkon, lodžii nebo terasu
- možnost dokoupení garážového stání a sklepní kóje
K nastěhování: okamžitě
V případě zájmu nás kontaktujte – rádi vám poskytneme detailní informace o financování i aktuálně volných jednotkách.
Pomocí naší hypoteční kalkulačky si můžete udělat orientační představu o výši měsíčních splátek hypotéky. O vše ostatní se pak postaráme my ve spolupráci s našimi obchodními partnery.
24 252 Kč
* Odhadovaná měsíční splátka vychází z výše úvěru Kč s pevnou úrokovou sazbou % po celou dobu trvání úvěru.
Prodáváte nemovitost a potřebujete zjistit její reálnou hodnotu?
Uživatel serveru RealityMIX.cz (dále jen „Server“) dostupného na internetové adrese (URL) https://www.realitymix.cz, který provozuje společnost DALTEN media s.r.o., se sídlem Na Harfě 916/9a, Praha 9, 190 00, IČO: 271 35 306 (dále jen „Správce“) jako provozovateli tohoto Serveru uděluje svůj výslovný souhlas v souladu s ustanovením § 5 zákona č. 101/2000 Sb. O ochraně osobních údajů a o změně některých zákonů, v platném znění (dále jen „zákon o ochraně osobních údajů“), se zpracováním uživatelem poskytnutých osobních údajů a dalších dat.
Uživatel poskytuje Správci osobní údaje v rozsahu: jméno, příjmení, e-mailová adresa, telefonický kontakt a další data, a to z důvodu projeveného zájmu o nemovitost, kde prostřednictvím služby Serveru Správce osloví Uživatel inzerenta uvedeného v detailu
nemovitosti - Luxury Home Gamma (IČ 04970471) se zájmem o jeho služby.
Uživatel tyto osobní údaje poskytuje dobrovolně a bere na vědomí, že součástí služeb Správce, které Správce Uživateli poskytuje, je vyhledání všech Uživateli vyhovujících (dle parametrů - cena, typ nemovitosti, lokalita atd.) nemovitostí. Správce za tímto účelem provozuje aplikace Hlídací pes a newsletter. Tyto služby je možné z každého zaslaného emailu odhlásit. Souhlas se zpracováním osobních údajů Uživatel poskytuje Správci na dobu neurčitou s tím, že svůj udělený souhlas může Uživatel kdykoliv na drese správce info@realitymix.cz odvolat. Správce garantuje Uživateli i další práva uvedené v ustanovení §11 a §21 zákoba č. 101/200 Sb. Ve znění pozdějších předpisů.
Více informací o zpracování údajů získáte zde (realitymix.cz/zasady-ochrany-osobnich-udaju)