Novostavba. 2+kk s velkou lodžií. Pro bydlení i na investici. Soukromé parkování v ceně. TOP vybavení na míru. Klidná lokalita na okraji města.
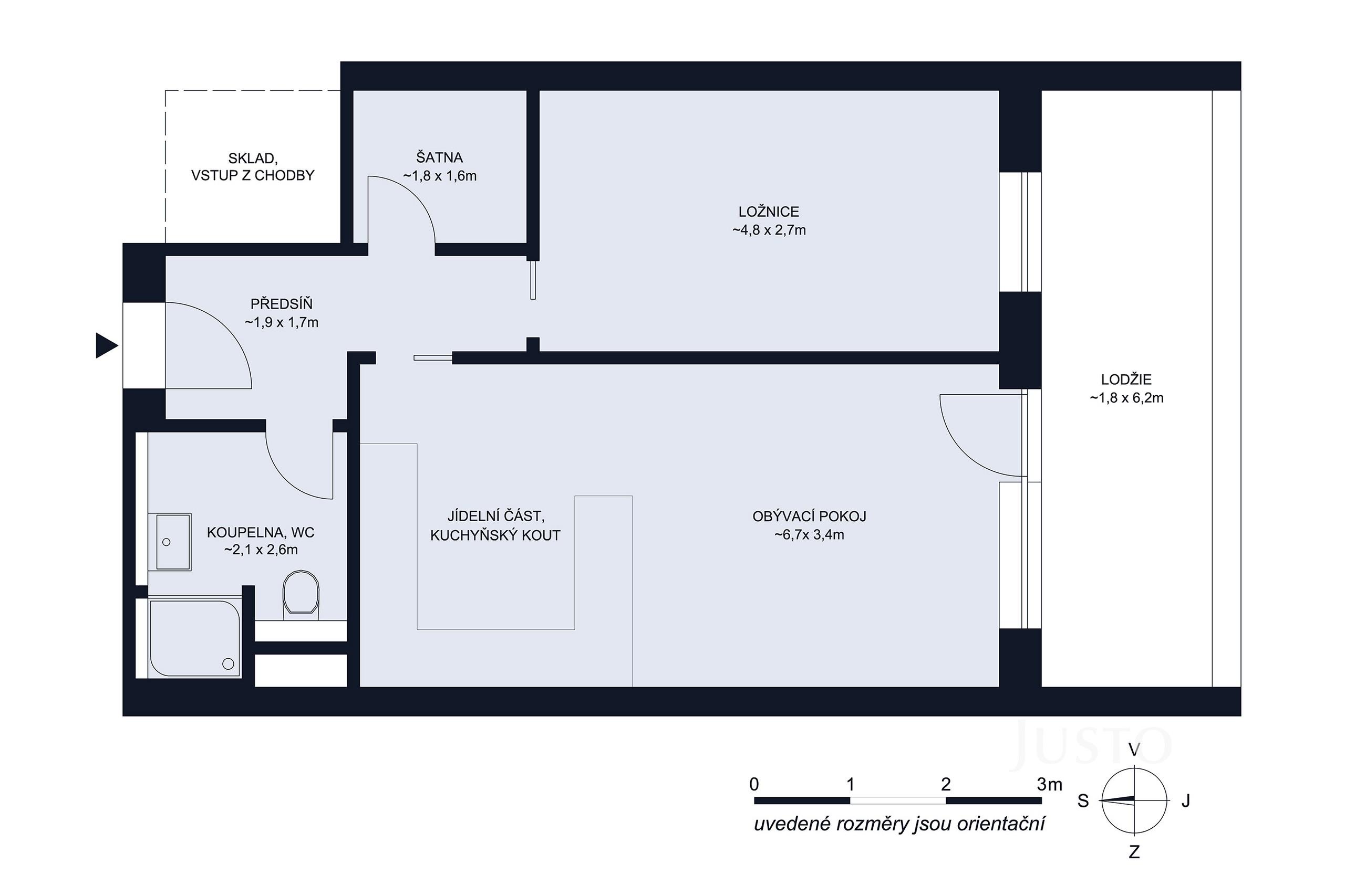
Ve výhradním zastoupení majitelky nabízíme k prodeji moderní byt 2+kk o ploše 52,4 m² (49,15 m² má byt, 3,25 m² sklep), navíc s prostornou lodžií 11,15 m² a vlastním parkovacím stáním v klidné části Českých Budějovic - v Českém Vrbném.
Byt se nachází v posledním, tedy 6. podlaží novostavby cihlového domu zkolaudovaného v roce 2023. Dispozice bytu klade důraz na úložné prostory – obývací pokoj s kuchyňským koutem a jídelní částí tvoří centrální prostor pro odpočinek. Z předsíně navazuje ložnice, samostatná šatna a koupelna se sprchovým koutem a toaletou. V předsíni si odložíte kabáty, boty a využijete praktické sezení s úložnými prostory na míru.
Moderní kuchyňská linka je kompletně vybavena všemi spotřebiči – lednicí, indukční varnou deskou, troubou, mikrovlnkou a myčkou. Interiér dává důraz na dřevěné dekory a kvalitní provedení detailů. Majitelka byt vybavila vestavěným nábytkem. V obývací části můžete své oblíbené pořady sledovat na velké TV. Z obýváku vedou dveře na jižně orientovanou lodžii s výhledem na okolní zástavbu.
Pro uskladnění sezónních věcí nebo sportovního vybavení slouží sklep přímo na patře. Auto zaparkujete na vlastním parkovacím stání u domu. Výhodou je také bezbariérový přístup a moderní výtah.
V docházkové vzdálenosti od bytu najdete hypermarket Globus s nákupním centrem Géčko, další obchody jako Bauhaus či Kaufland, restaurace, lékařský dům, ale i zastávky MHD. Výborné dopravní spojení do centra města i na hlavní tahy zaručuje pohodlný životní styl jak pro jednotlivce, tak pro páry. Na procházku můžete k oblíbeným Vrbenským rybníkům.
Chcete se přijít podívat na prohlídku bytu? Potřebujete doplnit informace a zodpovědět dotazy? Vyplňte prosím formulář u inzerátu. Dostanete odpověď s veškerými informacemi do 20 minut na e-mail, který uvedete. (Zkontrolujte si, prosím, i složky "Spam" a "Nevyžádaná pošta". Občas se tam e-mail může zatoulat.)
Pomocí naší hypoteční kalkulačky si můžete udělat orientační představu o výši měsíčních splátek hypotéky. O vše ostatní se pak postaráme my ve spolupráci s našimi obchodními partnery.
26 114 Kč
* Odhadovaná měsíční splátka vychází z výše úvěru Kč s pevnou úrokovou sazbou % po celou dobu trvání úvěru.
Prodáváte nemovitost a potřebujete zjistit její reálnou hodnotu?
Uživatel serveru RealityMIX.cz (dále jen „Server“) dostupného na internetové adrese (URL) https://www.realitymix.cz, který provozuje společnost DALTEN media s.r.o., se sídlem Na Harfě 916/9a, Praha 9, 190 00, IČO: 271 35 306 (dále jen „Správce“) jako provozovateli tohoto Serveru uděluje svůj výslovný souhlas v souladu s ustanovením § 5 zákona č. 101/2000 Sb. O ochraně osobních údajů a o změně některých zákonů, v platném znění (dále jen „zákon o ochraně osobních údajů“), se zpracováním uživatelem poskytnutých osobních údajů a dalších dat.
Uživatel poskytuje Správci osobní údaje v rozsahu: jméno, příjmení, e-mailová adresa, telefonický kontakt a další data, a to z důvodu projeveného zájmu o nemovitost, kde prostřednictvím služby Serveru Správce osloví Uživatel inzerenta uvedeného v detailu
nemovitosti - JUSTO Česká republika (IČ 04419995) se zájmem o jeho služby.
Uživatel tyto osobní údaje poskytuje dobrovolně a bere na vědomí, že součástí služeb Správce, které Správce Uživateli poskytuje, je vyhledání všech Uživateli vyhovujících (dle parametrů - cena, typ nemovitosti, lokalita atd.) nemovitostí. Správce za tímto účelem provozuje aplikace Hlídací pes a newsletter. Tyto služby je možné z každého zaslaného emailu odhlásit. Souhlas se zpracováním osobních údajů Uživatel poskytuje Správci na dobu neurčitou s tím, že svůj udělený souhlas může Uživatel kdykoliv na drese správce info@realitymix.cz odvolat. Správce garantuje Uživateli i další práva uvedené v ustanovení §11 a §21 zákoba č. 101/200 Sb. Ve znění pozdějších předpisů.
Více informací o zpracování údajů získáte zde (realitymix.cz/zasady-ochrany-osobnich-udaju)