Prodej, byt 3+kk, 80.6 m2, ul. Nádražní, České Budějovice
REALDOMUS Vám ve výhradním zastoupení majitele nabízí prodej prostorného bytu 3+kk, který se nachází ve 3. patře novostavby bytového domu.
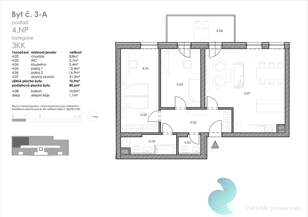
Po vstupu do bytu je prostorná chodba, odkud je přístup do samotných místností. Centrální místností je obývací pokoj spojený s kuchyňským koutem, odkud je přístup na velký balkon (10 m2). Dále dva světlé, samostatné a neprůchozí pokoje. Koupelna je vkusně zařízena zařizovacími předměty, včetně vany. Toaleta je jak v koupelně, tak druhá samostatně.
Součástí bytu je sklep. Vytápěno dálkově teplárnou, ohřev vody též dálkový. Byt je kompletně připraven pro nové majitele, včetně vinylových podlah a sanity. Příprava pro kuchyňskou linku, kterou si nový majitel zhotoví dle svých představ. Majitelé bytů mohou využívat společnou zahradu.
Možnost výběru a koupě venkovního nebo krytého parkovacího stání, případně garáže nebo parkovací místo pro dvě auta s pomocí zakladače.
Vřele doporučujeme prohlídku bytu. Více informací vám poskytne makléř nabídky.
Uvedené výměry jsou orientační. V případě více zájemců bude nemovitost prodána nejlepší nabídce a majitel si vyhrazuje právo vybrat kupujícího na základě jim zvolených kritérií. Veškeré zveřejněné údaje v tomto inzerátu mají pouze informativní charakter.
Pomocí naší hypoteční kalkulačky si můžete udělat orientační představu o výši měsíčních splátek hypotéky. O vše ostatní se pak postaráme my ve spolupráci s našimi obchodními partnery.
28 260 Kč
* Odhadovaná měsíční splátka vychází z výše úvěru Kč s pevnou úrokovou sazbou % po celou dobu trvání úvěru.
Prodáváte nemovitost a potřebujete zjistit její reálnou hodnotu?
Uživatel serveru RealityMIX.cz (dále jen „Server“) dostupného na internetové adrese (URL) https://www.realitymix.cz, který provozuje společnost DALTEN media s.r.o., se sídlem Na Harfě 916/9a, Praha 9, 190 00, IČO: 271 35 306 (dále jen „Správce“) jako provozovateli tohoto Serveru uděluje svůj výslovný souhlas v souladu s ustanovením § 5 zákona č. 101/2000 Sb. O ochraně osobních údajů a o změně některých zákonů, v platném znění (dále jen „zákon o ochraně osobních údajů“), se zpracováním uživatelem poskytnutých osobních údajů a dalších dat.
Uživatel poskytuje Správci osobní údaje v rozsahu: jméno, příjmení, e-mailová adresa, telefonický kontakt a další data, a to z důvodu projeveného zájmu o nemovitost, kde prostřednictvím služby Serveru Správce osloví Uživatel inzerenta uvedeného v detailu
nemovitosti - REALDOMUS s.r.o. (IČ 26070405) se zájmem o jeho služby.
Uživatel tyto osobní údaje poskytuje dobrovolně a bere na vědomí, že součástí služeb Správce, které Správce Uživateli poskytuje, je vyhledání všech Uživateli vyhovujících (dle parametrů - cena, typ nemovitosti, lokalita atd.) nemovitostí. Správce za tímto účelem provozuje aplikace Hlídací pes a newsletter. Tyto služby je možné z každého zaslaného emailu odhlásit. Souhlas se zpracováním osobních údajů Uživatel poskytuje Správci na dobu neurčitou s tím, že svůj udělený souhlas může Uživatel kdykoliv na drese správce info@realitymix.cz odvolat. Správce garantuje Uživateli i další práva uvedené v ustanovení §11 a §21 zákoba č. 101/200 Sb. Ve znění pozdějších předpisů.
Více informací o zpracování údajů získáte zde (realitymix.cz/zasady-ochrany-osobnich-udaju)