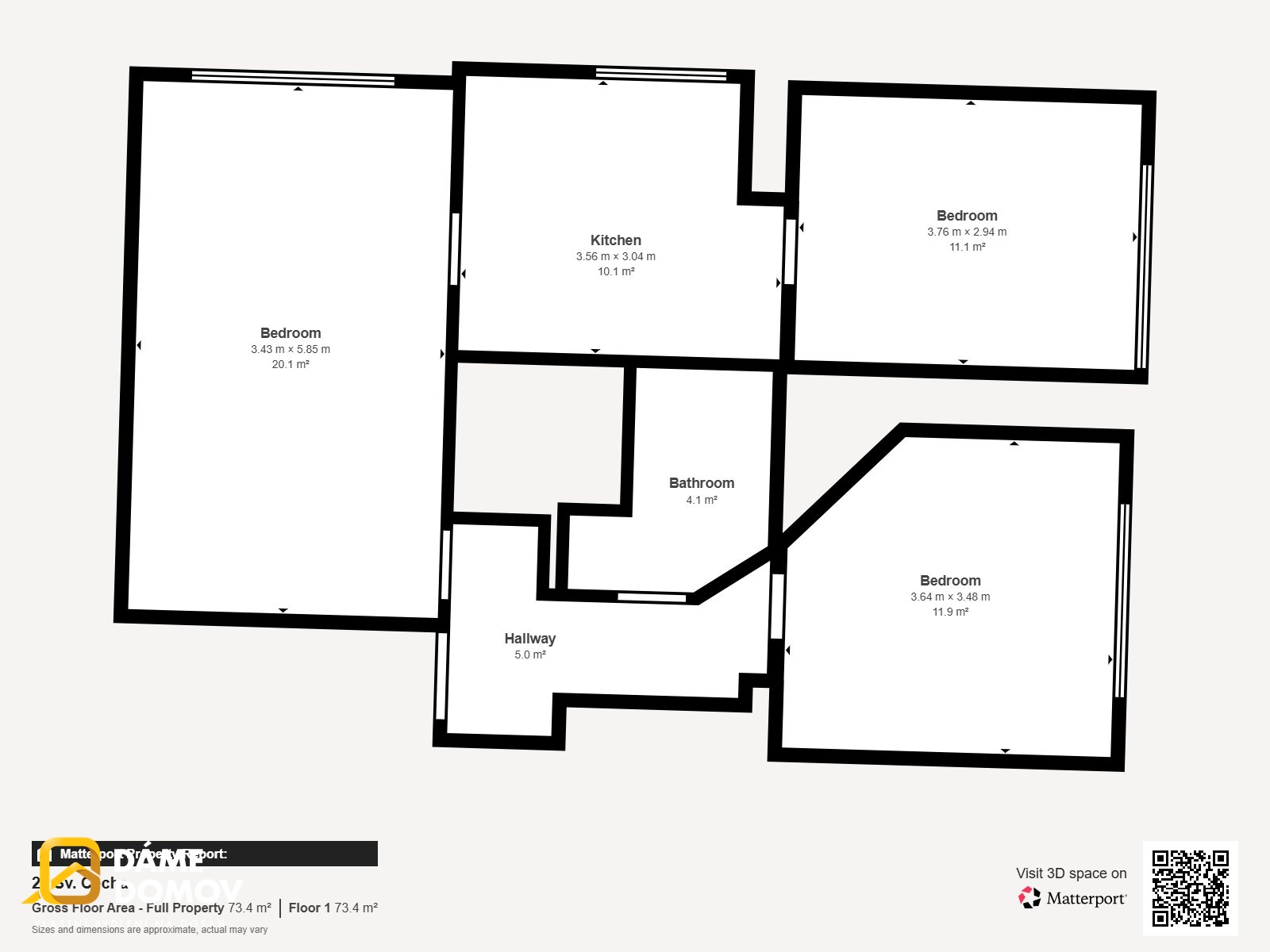
Stylový a světlý byt o užitné ploše 68 m² se nachází ve 3. patře panelového domu a nabízí ideální kombinaci praktičnosti a útulné atmosféry. Už při vstupu vás zaujme příjemný pocit domova, který se nese celým bytem.
Dispozice je velmi dobře řešená – prostorný obývací pokoj, dvě samostatné ložnice a kuchyň. Skutečnou dominantou je koupelna, která potěší každého – najdete zde jak vanu pro chvíle klidu a relaxace, tak i sprchový kout pro rychlé ranní tempo. Velkým benefitem je také klimatizace, díky které si i během horkých letních dní udržíte v bytě příjemné klima. Byt je navíc plně vybavený, takže se můžete bez starostí ihned nastěhovat. Lodžie je ideální prostor na ranní kávu nebo večerní odpočinek a samozřejmě nechybí ani sklep, který poskytne dostatek úložného prostoru.
Nemovitost je udržovaná, vkusně zařízená a připravená k okamžitému nastěhování bez nutnosti dalších investic.
Díky své dispozici a lokalitě je ideální jak pro rodinné bydlení, tak i jako zajímavá investiční příležitost. V okolí najdete veškerou občanskou vybavenost a pohodlnou dostupnost do centra. Ráda Vám byt představím na prohlídce.
Cena:
Cena na vyžádání
Poznámka:
cena k jednání, včetně DPH, včetně poplatků, včetně provize, včetně právního servisu
Dispozice/podlahová plocha:
3+1/68 m²
Číslo zakázky:
REALITYMIX-14425
Podrobné informace
Dispozice bytu:3+1
Číslo podlaží v domě:3
Počet podlaží objektu:1
Celková podlahová plocha:68 m²
Druh objektu:panelová
Stav objektu:dobrý
Vlastnictví:osobní
Vybaveno:ano
Umístění objektu:centrum obce
Doprava:vlak, silnice, MHD, autobus
Elektřina:Elektro - 230 V
Voda:Voda - dálkový vodovod
Telekomunikace:Internet
Plyn:Plynovod
Topení:Ústřední - dálkové, Jiné
Odpad:Kanalizace
Ostatní rozvody:Kabelové rozvody
Energetická náročnost budovy:C - Úsporná
Ukazatel energetické náročnosti budovy:90 kWh/m²
Energetický ukazatel podle vyhlášky:č. 264/2020 Sb.
Uživatel serveru RealityMIX.cz (dále jen „Server“) dostupného na internetové adrese (URL) https://www.realitymix.cz, který provozuje společnost DALTEN media s.r.o., se sídlem Na Harfě 916/9a, Praha 9, 190 00, IČO: 271 35 306 (dále jen „Správce“) jako provozovateli tohoto Serveru uděluje svůj výslovný souhlas v souladu s ustanovením § 5 zákona č. 101/2000 Sb. O ochraně osobních údajů a o změně některých zákonů, v platném znění (dále jen „zákon o ochraně osobních údajů“), se zpracováním uživatelem poskytnutých osobních údajů a dalších dat.
Uživatel poskytuje Správci osobní údaje v rozsahu: jméno, příjmení, e-mailová adresa, telefonický kontakt a další data, a to z důvodu projeveného zájmu o nemovitost, kde prostřednictvím služby Serveru Správce osloví Uživatel inzerenta uvedeného v detailu
nemovitosti - Dáme domov s.r.o. (IČ 19369859) se zájmem o jeho služby.
Uživatel tyto osobní údaje poskytuje dobrovolně a bere na vědomí, že součástí služeb Správce, které Správce Uživateli poskytuje, je vyhledání všech Uživateli vyhovujících (dle parametrů - cena, typ nemovitosti, lokalita atd.) nemovitostí. Správce za tímto účelem provozuje aplikace Hlídací pes a newsletter. Tyto služby je možné z každého zaslaného emailu odhlásit. Souhlas se zpracováním osobních údajů Uživatel poskytuje Správci na dobu neurčitou s tím, že svůj udělený souhlas může Uživatel kdykoliv na drese správce info@realitymix.cz odvolat. Správce garantuje Uživateli i další práva uvedené v ustanovení §11 a §21 zákoba č. 101/200 Sb. Ve znění pozdějších předpisů.
Více informací o zpracování údajů získáte zde (realitymix.cz/zasady-ochrany-osobnich-udaju)