.
Mimořádná nabídka pronájmu bytu 1+1, 61 m2 + 4 m2 sklepní kóje + pakovací místo v nově zrekonstruovaném Villa domě kulturní památce
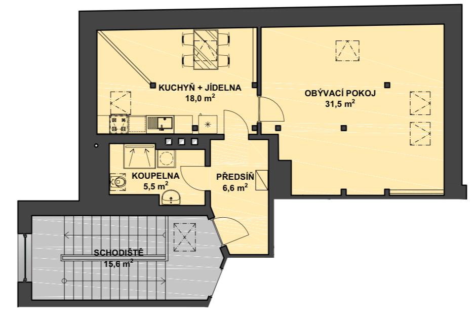
Nabízíme k dlouhodobému pronájmu komfortní byt o dispozici 1+1 a výměře 61 m2 m, situovaný v podkroví kompletně zrekonstruovaného Villa domu kulturní památky v prestižní a klidné části centra města.
Byt je v osobním vlastnictví, nově vybudovaný v rámci citlivé rekonstrukce historického objektu. Dům je bez výtahu.
Dispozice bytu tvoří vstupní předsíň, samostatný pokoj, obývací prostor s kuchyňským koutem, koupelna se sprchovým koutem, umyvadlem a WC. K bytu náleží sklepní kóje o velikosti 4 m.
Byt je nabízen jako nezařízený, avšak s novým základním vybavením:
kuchyňská linka na míru
myčka nádobí
elektrická trouba
elektrická varná deska
digestoř
lednice s mrazákem
úsporný kondenzační kotel
Standard bytu zahrnuje vinylové podlahy, nová eurookna s trojskly, protipožární bezpečnostní vstupní dveře a moderní technické zázemí odpovídající současným nárokům na komfortní bydlení.
Parkování vlastního automobilu je možné na uzavřeném pozemku domu.
Lokalita nabízí kompletní občanskou vybavenost v bezprostřední blízkosti MHD, obchody, služby i centrum města v docházkové vzdálenosti.
Podmínky pronájmu
Nájemné: 16 700 Kč / měsíc
Zálohy na služby: 1 080 Kč / osoba / měsíc, každá další + 700 Kč
Elektrická energie a plyn budou přepsány na nájemce
Vratná kauce: 30 000 Kč
Provize RK
Pouze dlouhodobé, rodinné bydlení
Bez domácích zvířat
Byt je k nastěhování ihned.
Prohlídky jsou možné po předchozí dohodě. Nabídka je určena pouze vážným zájemcům. Další informace poskytne realitní kancelář.
Uživatel serveru RealityMIX.cz (dále jen „Server“) dostupného na internetové adrese (URL) https://www.realitymix.cz, který provozuje společnost DALTEN media s.r.o., se sídlem Na Harfě 916/9a, Praha 9, 190 00, IČO: 271 35 306 (dále jen „Správce“) jako provozovateli tohoto Serveru uděluje svůj výslovný souhlas v souladu s ustanovením § 5 zákona č. 101/2000 Sb. O ochraně osobních údajů a o změně některých zákonů, v platném znění (dále jen „zákon o ochraně osobních údajů“), se zpracováním uživatelem poskytnutých osobních údajů a dalších dat.
Uživatel poskytuje Správci osobní údaje v rozsahu: jméno, příjmení, e-mailová adresa, telefonický kontakt a další data, a to z důvodu projeveného zájmu o nemovitost, kde prostřednictvím služby Serveru Správce osloví Uživatel inzerenta uvedeného v detailu
nemovitosti - Monika Kůrková (IČ 72684143) se zájmem o jeho služby.
Uživatel tyto osobní údaje poskytuje dobrovolně a bere na vědomí, že součástí služeb Správce, které Správce Uživateli poskytuje, je vyhledání všech Uživateli vyhovujících (dle parametrů - cena, typ nemovitosti, lokalita atd.) nemovitostí. Správce za tímto účelem provozuje aplikace Hlídací pes a newsletter. Tyto služby je možné z každého zaslaného emailu odhlásit. Souhlas se zpracováním osobních údajů Uživatel poskytuje Správci na dobu neurčitou s tím, že svůj udělený souhlas může Uživatel kdykoliv na drese správce info@realitymix.cz odvolat. Správce garantuje Uživateli i další práva uvedené v ustanovení §11 a §21 zákoba č. 101/200 Sb. Ve znění pozdějších předpisů.
Více informací o zpracování údajů získáte zde (realitymix.cz/zasady-ochrany-osobnich-udaju)