Prodej RD 3+kk, pozemek 885 m², Josefův Důl, Jizerské hory
Nabízíme k prodeji dům na krásném pozemku v obci Josefův Důl, okres Jablonec nad Nisou. Podél pozemku teče zregulovaný potok Jedlová, kde žijí pstruzi.
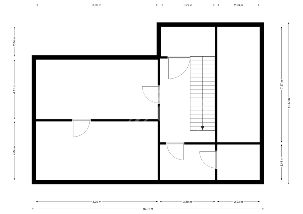
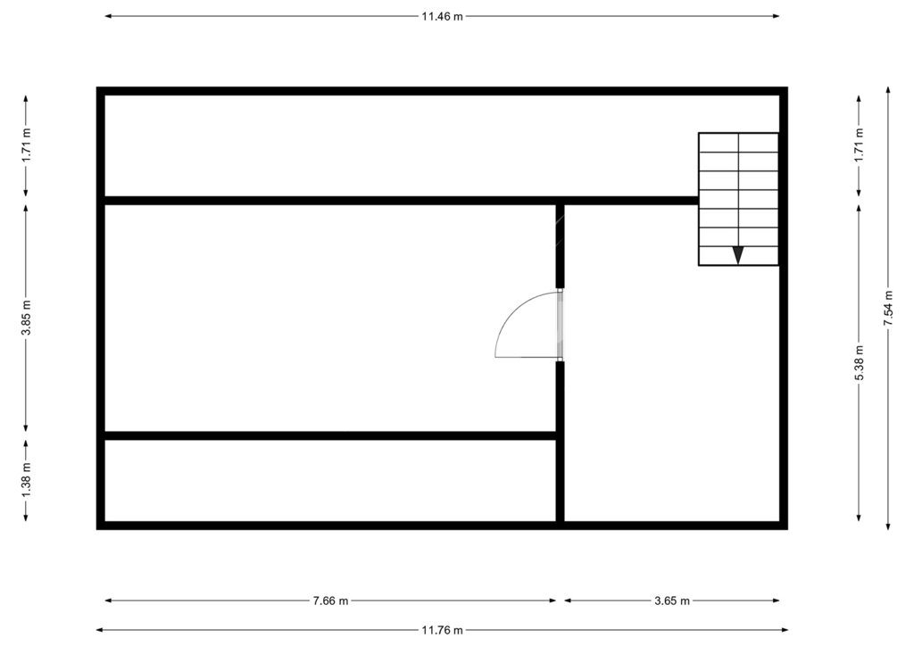
Dům nabízí dispozici 3+kk a má nové rozvody vody a elektřiny. Vytápí se přímotopy a čekají ho další úpravy. Přízemí zahrnuje dva pokoje, jeden s kuchyňským koutem a krbovými kamny, koupelnu a kůlnu, která může sloužit jako dílna. V patře se nachází velký pokoj s možností rozšíření.
Okolní příroda poskytuje široké možnosti trávení volného času, přímo v obci se nacházejí dva vleky a poblíž je zastávka skibusu. Vlaková zastávka je vzdálena pouhých 100 m od domu, přičemž největší lyžařský areál v Jizerských horách, Tanvaldský Špičák, je jen dvě stanice vlakem. Pro milovníky běžek je k dispozici celkem 90 km tratí, a v létě jsou zde ideální podmínky pro cykloturistiku a vycházky po značených trasách.
Nemovitost je v osobním vlastnictví a lze ji tedy financovat hypotečním úvěrem, který vám zdarma pomůžeme vyřídit za nejvýhodnějších podmínek na trhu.
Pomocí naší hypoteční kalkulačky si můžete udělat orientační představu o výši měsíčních splátek hypotéky. O vše ostatní se pak postaráme my ve spolupráci s našimi obchodními partnery.
16 154 Kč
* Odhadovaná měsíční splátka vychází z výše úvěru Kč s pevnou úrokovou sazbou % po celou dobu trvání úvěru.
Uživatel serveru RealityMIX.cz (dále jen „Server“) dostupného na internetové adrese (URL) https://www.realitymix.cz, který provozuje společnost DALTEN media s.r.o., se sídlem Na Harfě 916/9a, Praha 9, 190 00, IČO: 271 35 306 (dále jen „Správce“) jako provozovateli tohoto Serveru uděluje svůj výslovný souhlas v souladu s ustanovením § 5 zákona č. 101/2000 Sb. O ochraně osobních údajů a o změně některých zákonů, v platném znění (dále jen „zákon o ochraně osobních údajů“), se zpracováním uživatelem poskytnutých osobních údajů a dalších dat.
Uživatel poskytuje Správci osobní údaje v rozsahu: jméno, příjmení, e-mailová adresa, telefonický kontakt a další data, a to z důvodu projeveného zájmu o nemovitost, kde prostřednictvím služby Serveru Správce osloví Uživatel inzerenta uvedeného v detailu
nemovitosti - Nyxus reality s.r.o. (IČ 17946166) se zájmem o jeho služby.
Uživatel tyto osobní údaje poskytuje dobrovolně a bere na vědomí, že součástí služeb Správce, které Správce Uživateli poskytuje, je vyhledání všech Uživateli vyhovujících (dle parametrů - cena, typ nemovitosti, lokalita atd.) nemovitostí. Správce za tímto účelem provozuje aplikace Hlídací pes a newsletter. Tyto služby je možné z každého zaslaného emailu odhlásit. Souhlas se zpracováním osobních údajů Uživatel poskytuje Správci na dobu neurčitou s tím, že svůj udělený souhlas může Uživatel kdykoliv na drese správce info@realitymix.cz odvolat. Správce garantuje Uživateli i další práva uvedené v ustanovení §11 a §21 zákoba č. 101/200 Sb. Ve znění pozdějších předpisů.
Více informací o zpracování údajů získáte zde (realitymix.cz/zasady-ochrany-osobnich-udaju)