Prodej pozemku se stavebním povolením ke stavbě domu k bydlení
Hledáte pozemek umístěný v klidné části s výhledem, s inženýrskými sítěmi a chcete začít hned stavět?
Pak je pro vás ideální pozemek v Kamenici - Těptíně, který vše výše uvedené splňuje. Aktuální vlastník zde nechal vypracovat stavební povolení na kompletní přestavbu chaty a to na dům vhodný k bydlení. Dům si můžete nechat postavit od firmy, která projekt zpracovala, nebo jakoukoliv jinou cestou, majitelé vše ostatní připravili, stavbu můžete zahájit prakticky ihned. Náklad pro stavbu na klíč činí dle rozpočtu 4,5 mio Kč.
Navržená stavba je moderním rekreačním domem, který však může sloužit i pro trvalé bydlení. Dům o zastavěné ploše 80m2, funkční uspořádání odpovídá velkorysé dispozici 3+kk. Dům se rozkládá do dvou podlaží, část přízemí je otevřena až do krovu. Rád Vám poskytnu projektovou dokumentaci a podklady ke stavebnímu povolení. Výsledná stavba lze upravit formou změny stavby před dokončením, nebo postavit dům úplně odlišný.
Elektrická energie je zavedena do stávajícího objektu, vodovod a kanalizace je v příjezdové obecní komunikaci, je možné se jednoduše připojit. Nad rámec toho je na pozemku studna, vhodná třeba na zalévání, nebo jako voda do bazénu.
Díky odlišné výšce okolních pozemků je zde příjemné soukromí. Na pozemku již proběhly nákladné terénní úpravy, tím vznikl dostatek místa pro realizaci stavby.
Pozemek se nachází v lokalitě na okraji Těptína, která dříve sloužila pro rekreaci, v dnešní době se transformuje na plochu pro trvalé bydlení.
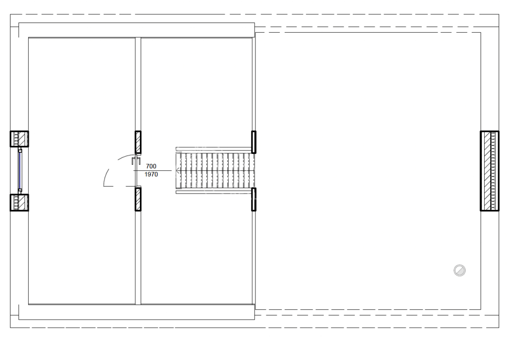
V galerii také naleznete náhled půdorysu a 3D vizualizace od firmy Prefast, která vytvořila stavbu na klíč dle požadavků územního plánu. Celková cena této stavby vč. DPH činí 4 465 440,- Kč.
V Těptíně najdete soukromou základní školu, potraviny. Širší vybavenost je pak v nedaleké Kamenici, několik supermarketů, státní základní škola, restaurace.
Spojení do Prahy zajišťuje autobus - 45 minut. Okolní lesy jsou skvělé pro toulky přírodou, výlety na kole, nebo cokoliv dalšího, co vás napadne.
Pomocí naší hypoteční kalkulačky si můžete udělat orientační představu o výši měsíčních splátek hypotéky. O vše ostatní se pak postaráme my ve spolupráci s našimi obchodními partnery.
19 393 Kč
* Odhadovaná měsíční splátka vychází z výše úvěru Kč s pevnou úrokovou sazbou % po celou dobu trvání úvěru.
Uživatel serveru RealityMIX.cz (dále jen „Server“) dostupného na internetové adrese (URL) https://www.realitymix.cz, který provozuje společnost DALTEN media s.r.o., se sídlem Na Harfě 916/9a, Praha 9, 190 00, IČO: 271 35 306 (dále jen „Správce“) jako provozovateli tohoto Serveru uděluje svůj výslovný souhlas v souladu s ustanovením § 5 zákona č. 101/2000 Sb. O ochraně osobních údajů a o změně některých zákonů, v platném znění (dále jen „zákon o ochraně osobních údajů“), se zpracováním uživatelem poskytnutých osobních údajů a dalších dat.
Uživatel poskytuje Správci osobní údaje v rozsahu: jméno, příjmení, e-mailová adresa, telefonický kontakt a další data, a to z důvodu projeveného zájmu o nemovitost, kde prostřednictvím služby Serveru Správce osloví Uživatel inzerenta uvedeného v detailu
nemovitosti - QARA s.r.o. (IČ 01740113) se zájmem o jeho služby. Tato společnost je součástí seskupení/sítě/franšízového modelu realitních kanceláří, jejich seznam můžete zobrazit kliknutím na tento odkaz.
QARA s.r.o. Ostrava (IČ 01740113) , QARA s.r.o. Brno (IČ 01740113) , QARA s.r.o. (IČ 01740113)
Uživatel tyto osobní údaje poskytuje dobrovolně a bere na vědomí, že součástí služeb Správce, které Správce Uživateli poskytuje, je vyhledání všech Uživateli vyhovujících (dle parametrů - cena, typ nemovitosti, lokalita atd.) nemovitostí. Správce za tímto účelem provozuje aplikace Hlídací pes a newsletter. Tyto služby je možné z každého zaslaného emailu odhlásit. Souhlas se zpracováním osobních údajů Uživatel poskytuje Správci na dobu neurčitou s tím, že svůj udělený souhlas může Uživatel kdykoliv na drese správce info@realitymix.cz odvolat. Správce garantuje Uživateli i další práva uvedené v ustanovení §11 a §21 zákoba č. 101/200 Sb. Ve znění pozdějších předpisů.
Více informací o zpracování údajů získáte zde (realitymix.cz/zasady-ochrany-osobnich-udaju)