V exkluzivním zastoupení nabízíme rodinný dům s dispozicí 4+1, o celkové rozloze 116 m2, se zahradou o velikosti 400 m2, v klidné lokalitě obce Kameni cký Šenov.
Tuto nemovitost je možno využít jak k trvalému bydlení, tak jako rekreační objekt.
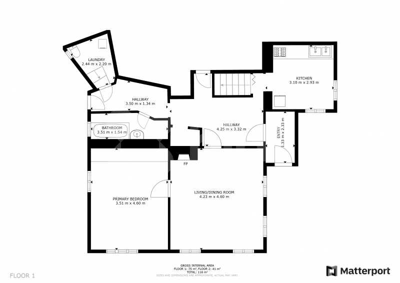
V přízemí se nachází obývací pokoj s krbovými kamny, kuchyně, ložnice, samostatně řešená koupelna a toaleta. Vstupní chodba umožňuje vstup do sklepa, který je umístěn přímo ve skále. V podkroví jsou dva pokoje spojené chodbou. Stropní konstrukce je dřevěná s přiznanými trámy, střešní krytina je z bonnského šindele, klempířské konstrukce z
pozinkovaného plechu. Ohřev vody je řešen elektrickým bojlerem, vytápění pak již zmíněnými krbovými
kamny a elektrickými přímotopy. Objekt je napojen na vodovod, plyn (přípojka na pozemku), elektřinu (220V, 380V) a veřejnou kanalizaci (septik s přepadem). Alternativním zdrojem vody může být i studna nacházející se na pozemku.
V obci najdete veškerou občanskou vybavenost, to znamená školku, školu, obchody, místní úřad, poštu a mnoho dalšího.
Vyhledávaným výletním cílem v okolí Kamenického Šenova je skalní útvar Panská skála, též známa jako Varhany, kterou si můžeme pamatovat z filmové pohádky Pyšná princezna. Méně známý, avšak neméně krásný, je rozsáhlý lesopark s lesním pramenem Žába a přírodním koupalištěm, které potěší v letním období. Naopak v zimním období jistě uvítáte upravené běžecké stopy i lyžařské vleky na Práchni a v Polevsku, a pro milovníky turistiky, zelená značka vás dovede ke zřícenině hradu Kamenice s dřevěnou rozhlednou.
V případě zájmu mě neváhejte kontaktovat, budu se těšit na prohlídku.
Pomocí naší hypoteční kalkulačky si můžete udělat orientační představu o výši měsíčních splátek hypotéky. O vše ostatní se pak postaráme my ve spolupráci s našimi obchodními partnery.
10 081 Kč
* Odhadovaná měsíční splátka vychází z výše úvěru Kč s pevnou úrokovou sazbou % po celou dobu trvání úvěru.
Uživatel serveru RealityMIX.cz (dále jen „Server“) dostupného na internetové adrese (URL) https://www.realitymix.cz, který provozuje společnost DALTEN media s.r.o., se sídlem Na Harfě 916/9a, Praha 9, 190 00, IČO: 271 35 306 (dále jen „Správce“) jako provozovateli tohoto Serveru uděluje svůj výslovný souhlas v souladu s ustanovením § 5 zákona č. 101/2000 Sb. O ochraně osobních údajů a o změně některých zákonů, v platném znění (dále jen „zákon o ochraně osobních údajů“), se zpracováním uživatelem poskytnutých osobních údajů a dalších dat.
Uživatel poskytuje Správci osobní údaje v rozsahu: jméno, příjmení, e-mailová adresa, telefonický kontakt a další data, a to z důvodu projeveného zájmu o nemovitost, kde prostřednictvím služby Serveru Správce osloví Uživatel inzerenta uvedeného v detailu
nemovitosti - Bidli reality, a.s. (IČ 06790763) se zájmem o jeho služby. Tato společnost je součástí seskupení/sítě/franšízového modelu realitních kanceláří, jejich seznam můžete zobrazit kliknutím na tento odkaz.
Hypocentrum modré pyramidy - Praha (IČ ) , Hypocentrum modré pyramidy - Brno (IČ ) , Hypocentrum Modré pyramidy - Hradec Králové (IČ ) , Hypocentrum Modré pyramidy - České Budějovice (IČ ) , Hypocentrum Modré pyramidy - Pardubice (IČ ) , Hypocentrum Modré pyramidy - Plzeň (IČ ) , Hypocentrum Modré pyramidy - Ústí nad Labem (IČ ) , Hypocentrum Modré pyramidy - Ostrava (IČ ) , Hypocentrum Modré pyramidy - Olomouc (IČ ) , Bidli reality, a.s. (IČ 06790763)
Uživatel tyto osobní údaje poskytuje dobrovolně a bere na vědomí, že součástí služeb Správce, které Správce Uživateli poskytuje, je vyhledání všech Uživateli vyhovujících (dle parametrů - cena, typ nemovitosti, lokalita atd.) nemovitostí. Správce za tímto účelem provozuje aplikace Hlídací pes a newsletter. Tyto služby je možné z každého zaslaného emailu odhlásit. Souhlas se zpracováním osobních údajů Uživatel poskytuje Správci na dobu neurčitou s tím, že svůj udělený souhlas může Uživatel kdykoliv na drese správce info@realitymix.cz odvolat. Správce garantuje Uživateli i další práva uvedené v ustanovení §11 a §21 zákoba č. 101/200 Sb. Ve znění pozdějších předpisů.
Více informací o zpracování údajů získáte zde (realitymix.cz/zasady-ochrany-osobnich-udaju)