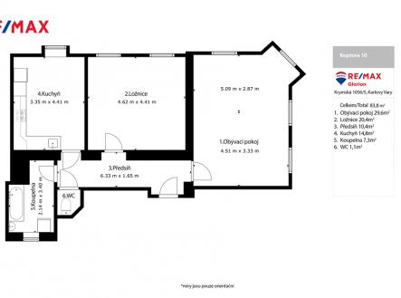
Prodej bytu 3kk,91 m2, ul. Nábřeží Jana Palacha, Karlovy Vary
Skvělou příležitost zaručené investice, nebo pohodlné bydlení v centru města, nabízí bytová jednotka nacházející se téměř na prahu lázeňského centra Karlových Varů, v ulici Nábřeží Jana Palacha, v bytovém domě, který je v bezvadném stavu a velmi dobře udržovaný. Samotný byt s dispozicí 3kk 90,87 m2, 5.NP prošel velmi důkladnou a nákladnou rekonstrukcí za použití těch nejlepších materiálů, včetně instalace kuchyňské linky zhotovené na zakázku a vybavené těmi nejlepšími spotřebiči. Kolaudace proběhla v roce 2022. Na fotografiích můžete vidět zařízení, které je možné odkoupit, a díky kterému můžete byt ihned používat jak k vlastnímu bydlení, tak ke komerčnímu využití (dlouhodobý i krátkodobý pronájem). Dům je velmi dobře strategicky umístěn a to pro blízkost autobusového a vlakového nádraží, obchod s potravinami se nachází 100 m od domu, veškerá občanská vybavenost v je v dosahu, lázně, wellness necelý kilometr a pro město tak důležité parkování je zajištěno dobrou kapacitou parkovacích míst. Ještě jednou zdůrazním stav domu, polohu domu, bezchybní stav bytové jednotky a to vše zaručí skvělou investici novému majiteli. Velmi ráda vám tuto nemovitost představím při osobní schůzce. Vzhledem k tomu, že před zadáním do inzerce nebyl vyhotoven PENB, je tento byt v souladu s platným zákonem zařazen do energetické třídy G.
Pomocí naší hypoteční kalkulačky si můžete udělat orientační představu o výši měsíčních splátek hypotéky. O vše ostatní se pak postaráme my ve spolupráci s našimi obchodními partnery.
23 685 Kč
* Odhadovaná měsíční splátka vychází z výše úvěru Kč s pevnou úrokovou sazbou % po celou dobu trvání úvěru.
Prodáváte nemovitost a potřebujete zjistit její reálnou hodnotu?
Uživatel serveru RealityMIX.cz (dále jen „Server“) dostupného na internetové adrese (URL) https://www.realitymix.cz, který provozuje společnost DALTEN media s.r.o., se sídlem Na Harfě 916/9a, Praha 9, 190 00, IČO: 271 35 306 (dále jen „Správce“) jako provozovateli tohoto Serveru uděluje svůj výslovný souhlas v souladu s ustanovením § 5 zákona č. 101/2000 Sb. O ochraně osobních údajů a o změně některých zákonů, v platném znění (dále jen „zákon o ochraně osobních údajů“), se zpracováním uživatelem poskytnutých osobních údajů a dalších dat.
Uživatel poskytuje Správci osobní údaje v rozsahu: jméno, příjmení, e-mailová adresa, telefonický kontakt a další data, a to z důvodu projeveného zájmu o nemovitost, kde prostřednictvím služby Serveru Správce osloví Uživatel inzerenta uvedeného v detailu
nemovitosti - Alfa Estate (IČ 10799796) se zájmem o jeho služby.
Uživatel tyto osobní údaje poskytuje dobrovolně a bere na vědomí, že součástí služeb Správce, které Správce Uživateli poskytuje, je vyhledání všech Uživateli vyhovujících (dle parametrů - cena, typ nemovitosti, lokalita atd.) nemovitostí. Správce za tímto účelem provozuje aplikace Hlídací pes a newsletter. Tyto služby je možné z každého zaslaného emailu odhlásit. Souhlas se zpracováním osobních údajů Uživatel poskytuje Správci na dobu neurčitou s tím, že svůj udělený souhlas může Uživatel kdykoliv na drese správce info@realitymix.cz odvolat. Správce garantuje Uživateli i další práva uvedené v ustanovení §11 a §21 zákoba č. 101/200 Sb. Ve znění pozdějších předpisů.
Více informací o zpracování údajů získáte zde (realitymix.cz/zasady-ochrany-osobnich-udaju)