Prodej ateliéru o dispozici 2+kk a velikosti 44 m2 ve druhém patře prvorepublikové vily v Kolíně
Nabízíme Vám ateliér o dispozici 2+kk a velikosti 44 m2 ve druhém patře prvorepublikové vily v Kolíně Zálabí, který je zařízen a vybaven jako pohodlný byt. Tento ateliér vznikl před dvěma lety, kdy byl dům, ve kterém se nachází kompletně zrekonstruován. V domě jsou celkem tři byty, ateliér, kanceláře a sauna.
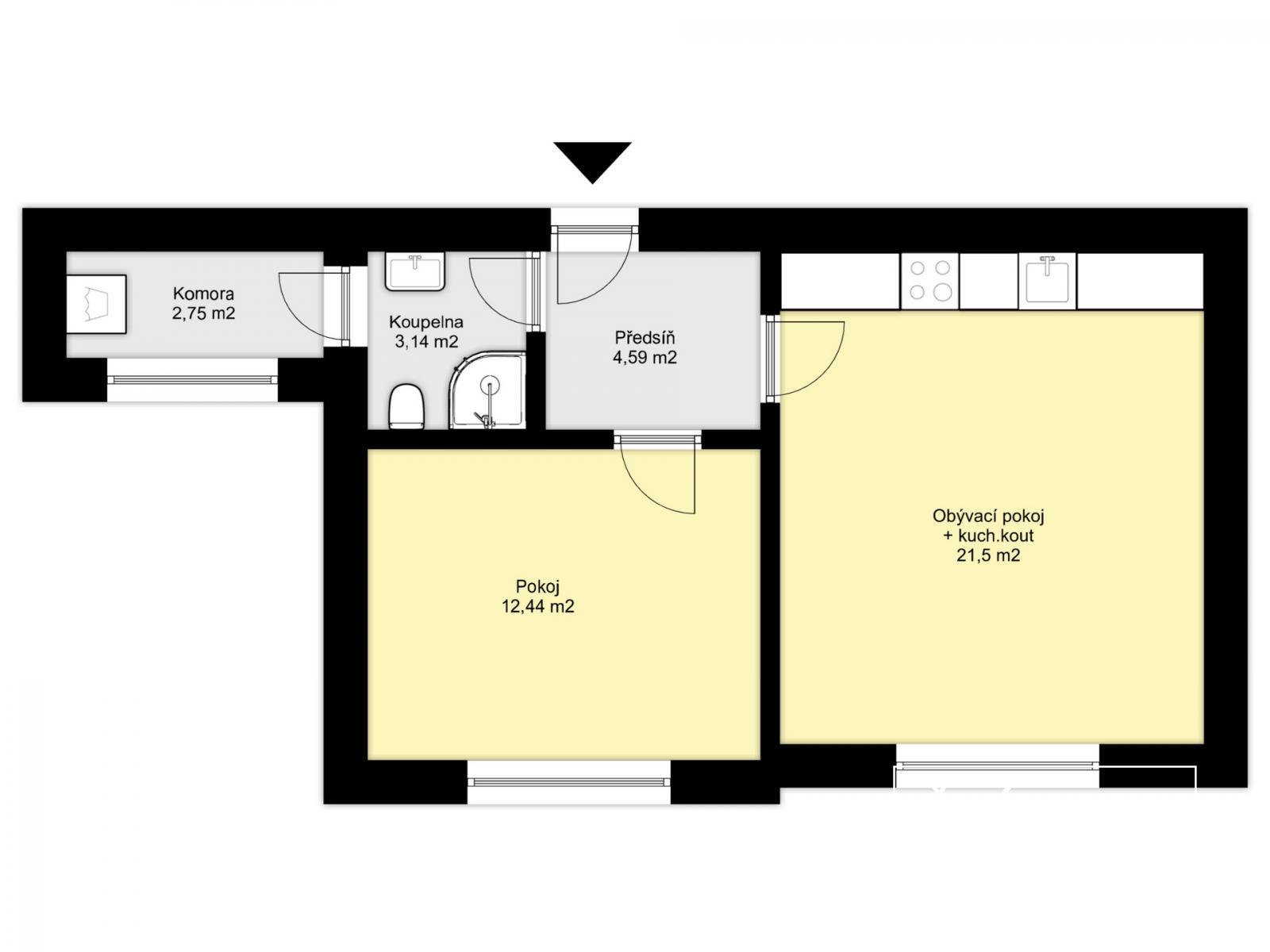
Ateliér je díky velkým Eurooknům a světlému interiéru příjemně prosluněný. Ateliér je prostorný a je zde jasně vidět spolupráce s architektkou, vznikl velice vkusný a praktický prostor s obývacím pokojem a kuchyní, ložnice, koupelna s WC a komora. Kuchyň je vybavena troubou, mikrovlnou troubou, lednicí, myčkou a indukcí. Nejčastěji používaný materiál je zde dřevo, vč. podlahové krytiny, díky tomu působí byt příjemným a teplým dojmem. V ložnici je položený koberec. Celkově byl při rekonstrukci domu kladen důraz na kvalitu použitých materiálů.
Byt se prodává včetně veškerého nábytku a vybavení, např. televizor, pračka, myčka.
Vytápění je zde pomocí tepelného čerpadla na principu vzduch - voda, tudíž slouží i pro ohřev vody.
Náklady na topení, vodu a elektřinu činí cca 3 až 4 tisíce korun.
Zahrada je stejně jako sauna k dispozici všem vlastníkům jednotek.
Nyní se pracuje na založení SVJ, papírová forma je již připravena, jedná se pouze o doladění s úřady. Toto bydlení je vhodné pro ty z Vás, kteří nechtějí bydlet v panelovém domě a ocení benefit ke svému bydlení v podobě pobytu na zahradě, která má ve své zadní části pergolu, či možnost využít saunu.
V centru Kolína jste svižnou chůzí za 10 min.
Na byt lze uplatnit odpočet DPH (12%), v tom případě je cena 3,928.571,- Kč.
Pokud Vás nabídka zaujala, kontaktujte mne, ráda Vás bytem a zahradou provedu. S financováním Vám můžeme pomoci.
Uživatel serveru RealityMIX.cz (dále jen „Server“) dostupného na internetové adrese (URL) https://www.realitymix.cz, který provozuje společnost DALTEN media s.r.o., se sídlem Na Harfě 916/9a, Praha 9, 190 00, IČO: 271 35 306 (dále jen „Správce“) jako provozovateli tohoto Serveru uděluje svůj výslovný souhlas v souladu s ustanovením § 5 zákona č. 101/2000 Sb. O ochraně osobních údajů a o změně některých zákonů, v platném znění (dále jen „zákon o ochraně osobních údajů“), se zpracováním uživatelem poskytnutých osobních údajů a dalších dat.
Uživatel poskytuje Správci osobní údaje v rozsahu: jméno, příjmení, e-mailová adresa, telefonický kontakt a další data, a to z důvodu projeveného zájmu o nemovitost, kde prostřednictvím služby Serveru Správce osloví Uživatel inzerenta uvedeného v detailu
nemovitosti - ŠMÍD & PARTNERS (IČ 24122955) se zájmem o jeho služby.
Uživatel tyto osobní údaje poskytuje dobrovolně a bere na vědomí, že součástí služeb Správce, které Správce Uživateli poskytuje, je vyhledání všech Uživateli vyhovujících (dle parametrů - cena, typ nemovitosti, lokalita atd.) nemovitostí. Správce za tímto účelem provozuje aplikace Hlídací pes a newsletter. Tyto služby je možné z každého zaslaného emailu odhlásit. Souhlas se zpracováním osobních údajů Uživatel poskytuje Správci na dobu neurčitou s tím, že svůj udělený souhlas může Uživatel kdykoliv na drese správce info@realitymix.cz odvolat. Správce garantuje Uživateli i další práva uvedené v ustanovení §11 a §21 zákoba č. 101/200 Sb. Ve znění pozdějších předpisů.
Více informací o zpracování údajů získáte zde (realitymix.cz/zasady-ochrany-osobnich-udaju)