Připravujeme prodej novostaveb 4+KK v obci Kostice u Břeclavi– moderní bydlení s garáží a zahradou.
Hledáte klidné, moderní a úsporné bydlení kousek od přírody i města? V obci Kostice u Břeclavi pro vás připravujeme nové rodinné domy s dispozicí 5+KK, vlastní zahradou a garážovým stáním. Ideální volba pro rodinný život v Jihomoravském kraji! Stavbu bude provádět firma TESGRUP.
Klíčové informace:
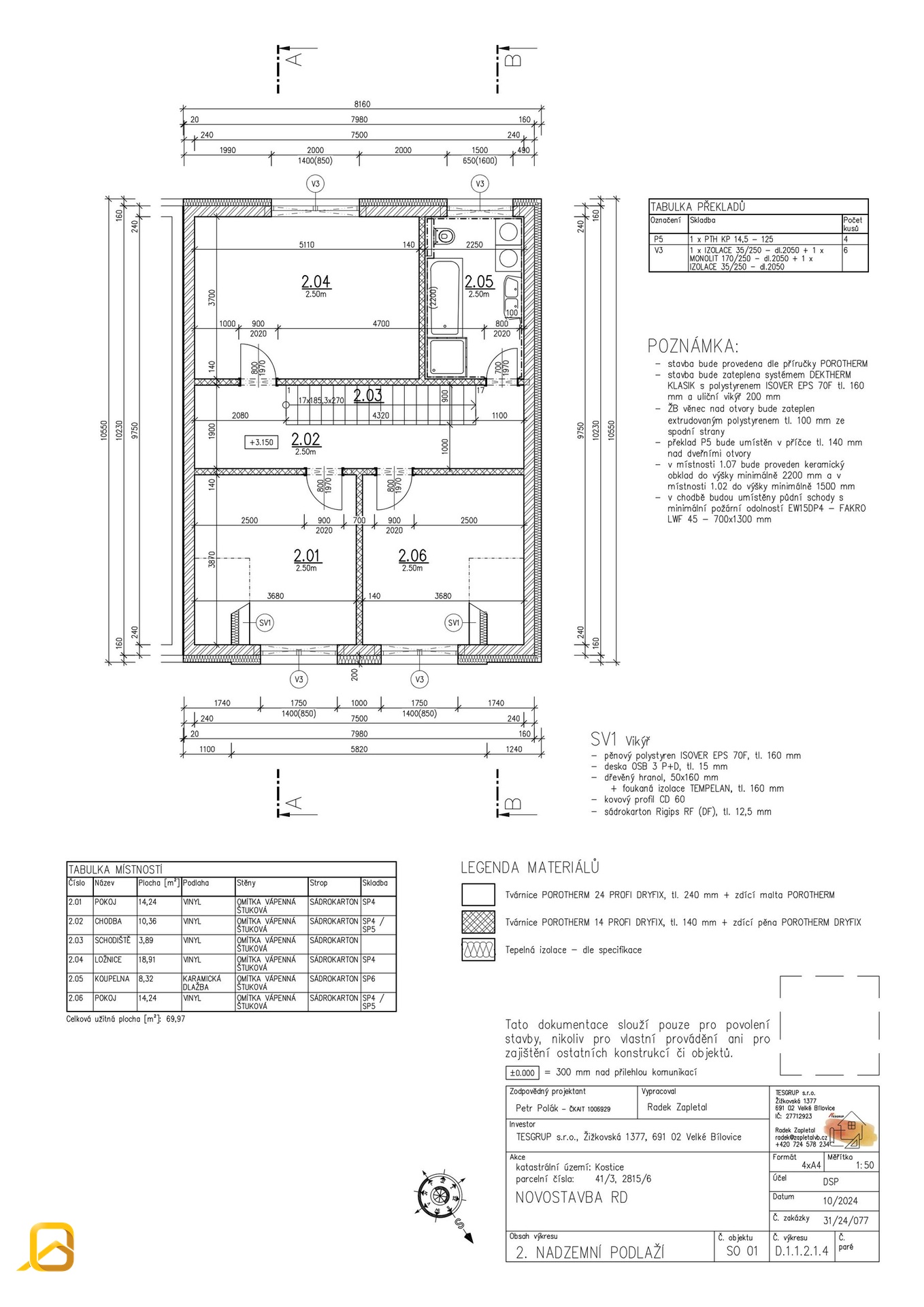
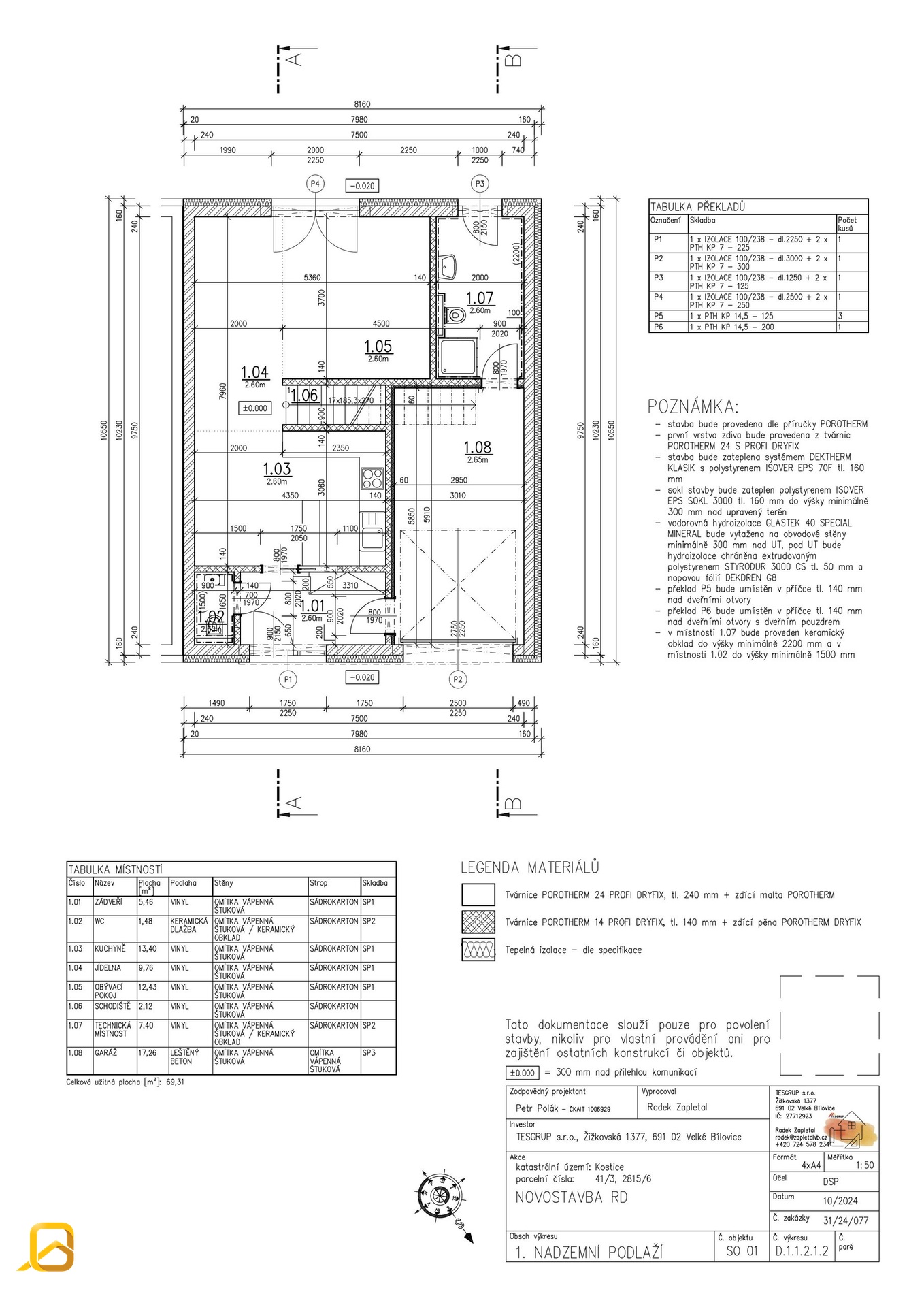
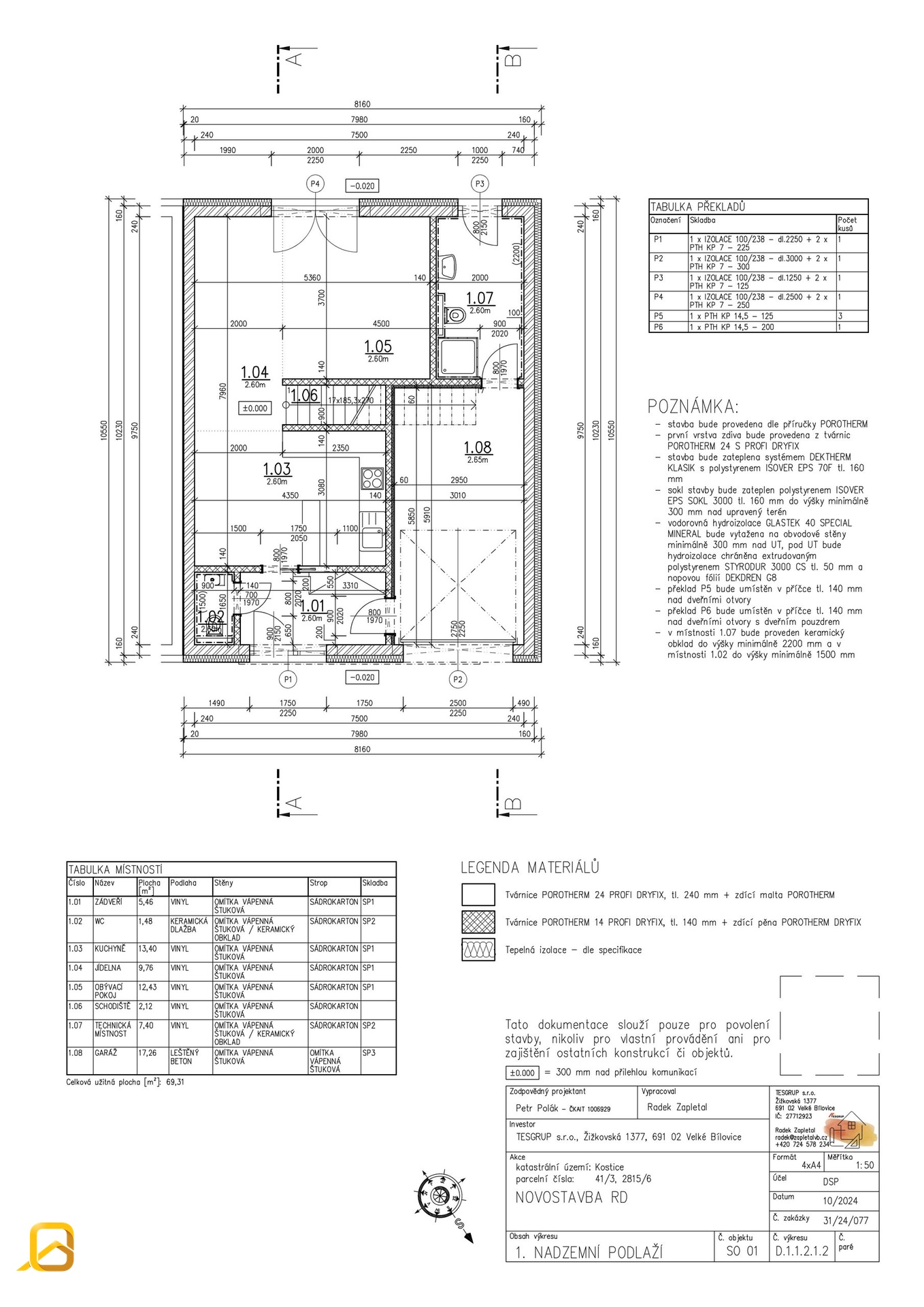
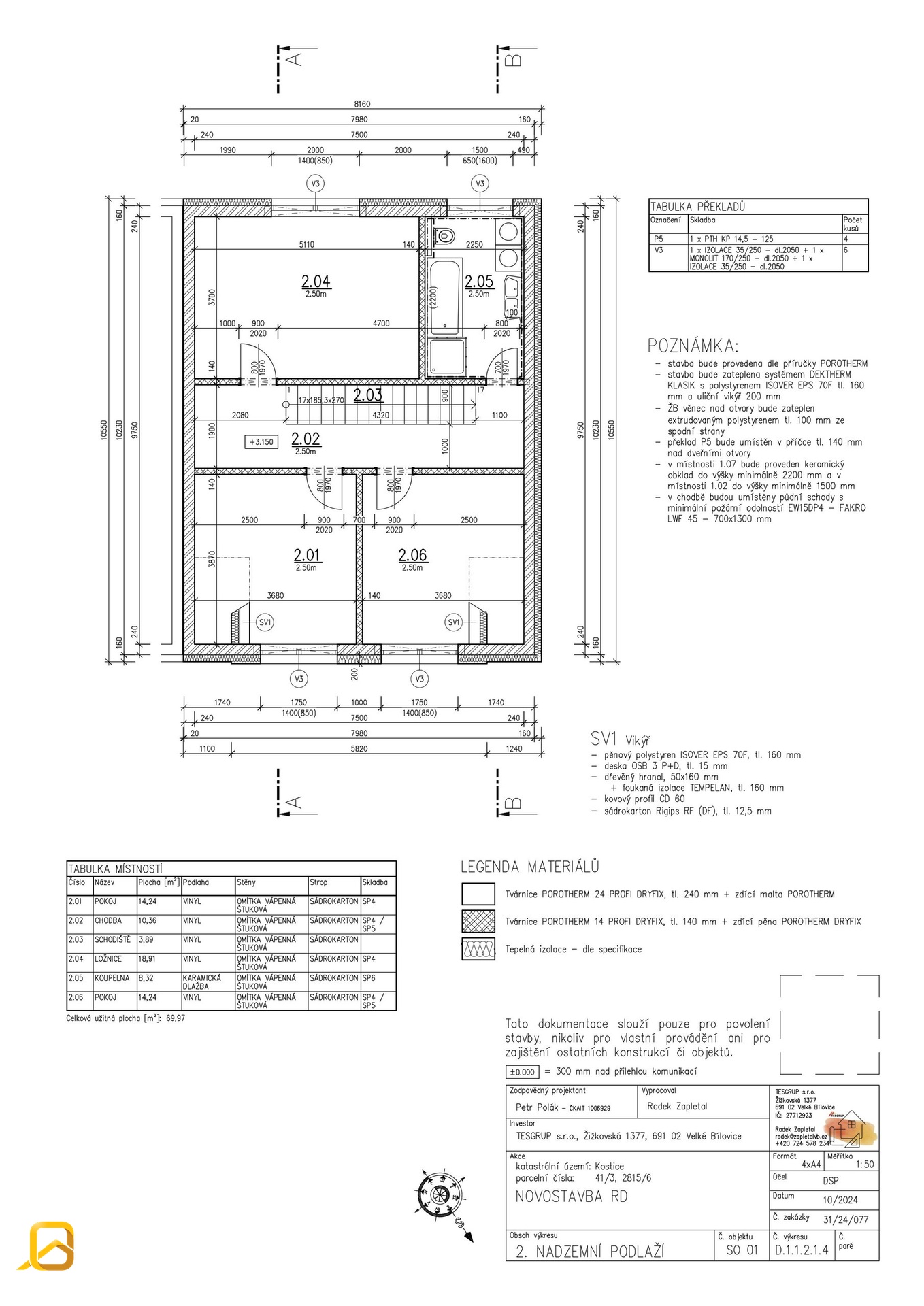
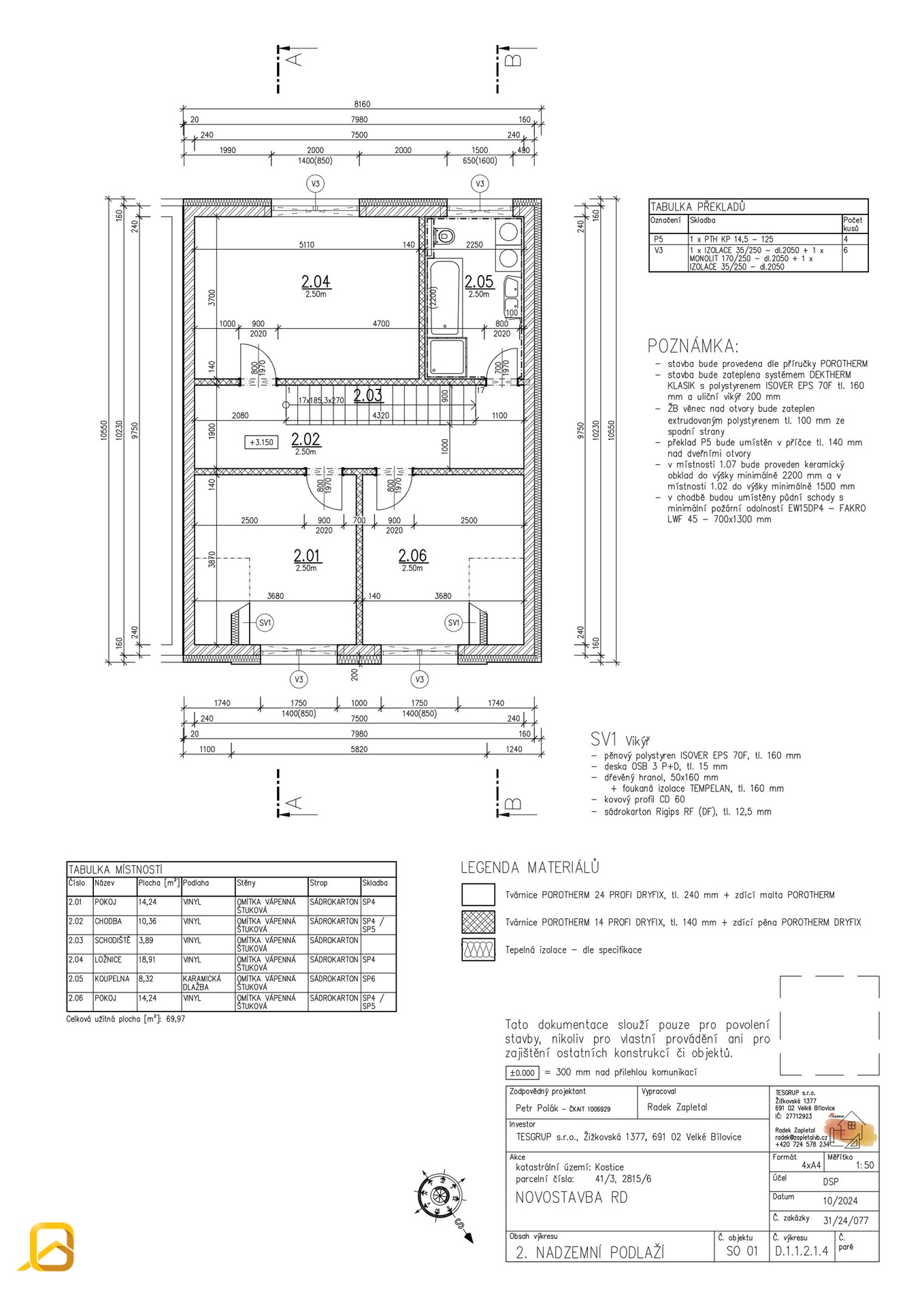
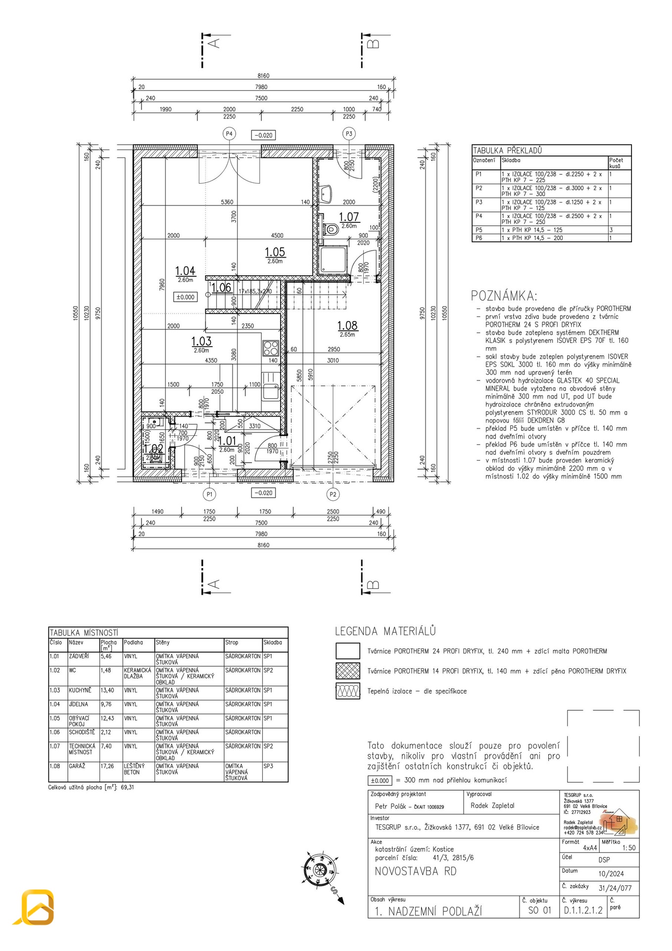
- Zděná novostavba 4+KK
- Užitná plocha 121 m²
- Kryté garážové stání o velikosti 17 m²
- Soukromá zahrada pro relaxaci i volný čas
- Tepelné čerpadlo – nízké provozní náklady
- Teplovodní podlahové topení v celém domě
- Kvalitní zděná konstrukce
- Kolaudace plánována na konec roku 2026
Standarty:
Koupelny jsi vyberete ve studiu Ptáček
Podlahy vinylové - RIGID
Dveře - Doornite
Tepelné čerpadlo - Podlahové vytápění
V případě zájmu je možné vidět vzorový dům v Dubňanech.
Lokalita Kostice nabízí skvělé místo pro život – klidná vesnická atmosféra, přitom výborná dostupnost do Břeclavi (10 min), Hodonína nebo na dálnici D2 směr Brno/Bratislava. V okolí je krásná příroda, cyklostezky, školy i veškerá občanská vybavenost.
Zaujala vás tato nabídka? Kontaktujte nás pro více informací. Počet domů je omezen! Za kancelář Dáme domov s.r.o., Roman Krist
Pomocí naší hypoteční kalkulačky si můžete udělat orientační představu o výši měsíčních splátek hypotéky. O vše ostatní se pak postaráme my ve spolupráci s našimi obchodními partnery.
32 349 Kč
* Odhadovaná měsíční splátka vychází z výše úvěru Kč s pevnou úrokovou sazbou % po celou dobu trvání úvěru.
Uživatel serveru RealityMIX.cz (dále jen „Server“) dostupného na internetové adrese (URL) https://www.realitymix.cz, který provozuje společnost DALTEN media s.r.o., se sídlem Na Harfě 916/9a, Praha 9, 190 00, IČO: 271 35 306 (dále jen „Správce“) jako provozovateli tohoto Serveru uděluje svůj výslovný souhlas v souladu s ustanovením § 5 zákona č. 101/2000 Sb. O ochraně osobních údajů a o změně některých zákonů, v platném znění (dále jen „zákon o ochraně osobních údajů“), se zpracováním uživatelem poskytnutých osobních údajů a dalších dat.
Uživatel poskytuje Správci osobní údaje v rozsahu: jméno, příjmení, e-mailová adresa, telefonický kontakt a další data, a to z důvodu projeveného zájmu o nemovitost, kde prostřednictvím služby Serveru Správce osloví Uživatel inzerenta uvedeného v detailu
nemovitosti - Dáme domov s.r.o. (IČ 19369859) se zájmem o jeho služby.
Uživatel tyto osobní údaje poskytuje dobrovolně a bere na vědomí, že součástí služeb Správce, které Správce Uživateli poskytuje, je vyhledání všech Uživateli vyhovujících (dle parametrů - cena, typ nemovitosti, lokalita atd.) nemovitostí. Správce za tímto účelem provozuje aplikace Hlídací pes a newsletter. Tyto služby je možné z každého zaslaného emailu odhlásit. Souhlas se zpracováním osobních údajů Uživatel poskytuje Správci na dobu neurčitou s tím, že svůj udělený souhlas může Uživatel kdykoliv na drese správce info@realitymix.cz odvolat. Správce garantuje Uživateli i další práva uvedené v ustanovení §11 a §21 zákoba č. 101/200 Sb. Ve znění pozdějších předpisů.
Více informací o zpracování údajů získáte zde (realitymix.cz/zasady-ochrany-osobnich-udaju)