Rodinný dům 2× 3+1 + zděné přízemí, balkon, garáž – ideální na rekonstrukci a úpravu podle vašich představ
Nabízím k prodeji rodinný dům typu OKAL z roku 1983 v obci Křenov (okres Svitavy). Dům má dvě samostatné bytové jednotky 3+1, velký balkon, zděné a suché přízemí, garáž a praktické sklepní prostory.
Přízemí je zděné, čisté a bez známek vlhkosti. Lze využít jako sklad, dílnu, technické zázemí nebo zvážit úpravu části na menší byt/kancelář (pouze na základě stavebního povolení).
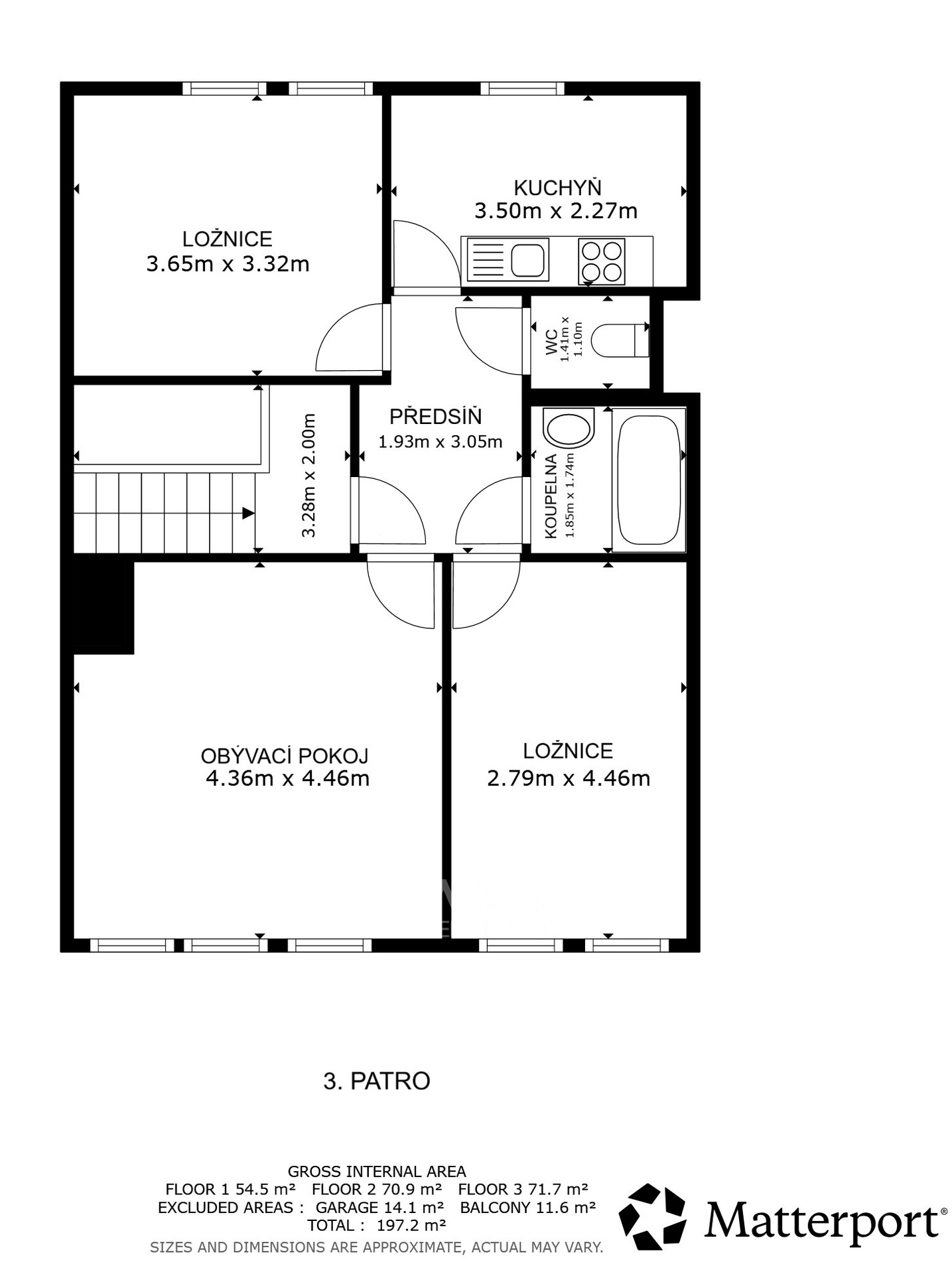
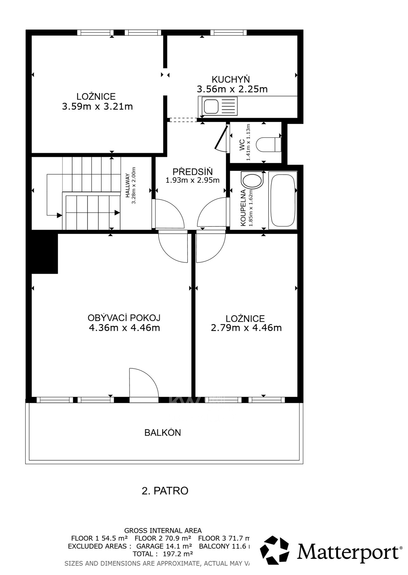
První a druhé patro tvoří dvě identické jednotky 3+1 – každá se světlými pokoji, v prvním patře s balkonem orientovaným na jihovýchod. Oba byty lze ponechat odděleně nebo propojit do jednoho velkého domu.
Dům je určen k rekonstrukci. Je vhodné počítat s modernizací rozvodů, koupelen, kuchyní, podlah, vnitřního schodiště i opláštění OKAL části a střechy. Zděné přízemí je v dobrém technickém stavu, což celý proces rekonstrukce usnadňuje.
Cena odpovídá technickému stavu a nechává prostor pro budoucí zhodnocení. Konečný efekt záleží vždy na rozsahu a kvalitě provedených úprav.
Křenov je klidná obec se školou, školkou a dobrou dostupností Moravské Třebové, Svitav i Brna. Vhodné pro rodiny i investory, kteří hledají nemovitost s jasnou dispozicí a možností úprav.
Výhody domu
• 2× byt 3+1 + možnost rozšíření (vždy dle stavebního povolení a statiky)
• Zděné, suché přízemí + garáž
• Velký balkon orientovaný na J–V
• Vyklizeno, připraveno k modernizaci
• Možné využití dotačních programů 2026 (dle podmínek)
Více informací a kompletní prezentaci najdete na webu makléře.
Majitel si vyhrazuje právo výběru nejvýhodnější nabídky.
Volejte pro domluvení prohlídky nebo zaslání podkladů.
Pomocí naší hypoteční kalkulačky si můžete udělat orientační představu o výši měsíčních splátek hypotéky. O vše ostatní se pak postaráme my ve spolupráci s našimi obchodními partnery.
9 717 Kč
* Odhadovaná měsíční splátka vychází z výše úvěru Kč s pevnou úrokovou sazbou % po celou dobu trvání úvěru.
Uživatel serveru RealityMIX.cz (dále jen „Server“) dostupného na internetové adrese (URL) https://www.realitymix.cz, který provozuje společnost DALTEN media s.r.o., se sídlem Na Harfě 916/9a, Praha 9, 190 00, IČO: 271 35 306 (dále jen „Správce“) jako provozovateli tohoto Serveru uděluje svůj výslovný souhlas v souladu s ustanovením § 5 zákona č. 101/2000 Sb. O ochraně osobních údajů a o změně některých zákonů, v platném znění (dále jen „zákon o ochraně osobních údajů“), se zpracováním uživatelem poskytnutých osobních údajů a dalších dat.
Uživatel poskytuje Správci osobní údaje v rozsahu: jméno, příjmení, e-mailová adresa, telefonický kontakt a další data, a to z důvodu projeveného zájmu o nemovitost, kde prostřednictvím služby Serveru Správce osloví Uživatel inzerenta uvedeného v detailu
nemovitosti - Keller Williams Czech Republic (IČ 07796340) se zájmem o jeho služby. Tato společnost je součástí seskupení/sítě/franšízového modelu realitních kanceláří, jejich seznam můžete zobrazit kliknutím na tento odkaz.
Keller Williams Czech Republic (IČ 07796340) , Nemovito by Keller Williams (IČ 10826971) , Keller Williams Czech Republic (IČ 07796340) , Keller Williams - centrála (IČ 06521924)
Uživatel tyto osobní údaje poskytuje dobrovolně a bere na vědomí, že součástí služeb Správce, které Správce Uživateli poskytuje, je vyhledání všech Uživateli vyhovujících (dle parametrů - cena, typ nemovitosti, lokalita atd.) nemovitostí. Správce za tímto účelem provozuje aplikace Hlídací pes a newsletter. Tyto služby je možné z každého zaslaného emailu odhlásit. Souhlas se zpracováním osobních údajů Uživatel poskytuje Správci na dobu neurčitou s tím, že svůj udělený souhlas může Uživatel kdykoliv na drese správce info@realitymix.cz odvolat. Správce garantuje Uživateli i další práva uvedené v ustanovení §11 a §21 zákoba č. 101/200 Sb. Ve znění pozdějších předpisů.
Více informací o zpracování údajů získáte zde (realitymix.cz/zasady-ochrany-osobnich-udaju)