Výstavba PENZIONU KUNOVICE - STAVEBNÍ POVOLENÍ V RUCE
Okamžitý start - 14 ubytovacích jednotek - 743 m and sup2; užitné plochy
PŘIPRAVENÝ INVESTIČNÍ PROJEKT
Výjimečná příležitost pro investory! Nabízíme kompletně připravený projekt výstavby penzionu v Kunovicích s platným stavebním povolením a hotovou projektovou dokumentací. Začněte stavět prakticky ihned!
KLÍČOVÉ PARAMETRY INVESTICE
Užitná plocha: 743,60 m and sup2; na třech podlažích
Kapacita: 14 ubytovacích jednotek + wellness zázemí
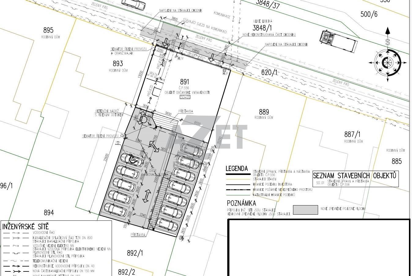
Parkování: 12 stání na vlastním pozemku (včetně ZTP)
Lokalita: Kunovice, ul. Lidická - výborná dostupnost
Stav: platné stavební povolení, okamžitý start možný
Klíčové výhody investice: platné stavební povolení umožňuje okamžitý start bez zbytečného zdržení, atraktivní lokalita v zavedené zástavbě s výbornou dostupností a strategická poloha u hlavní komunikace podporují vysoký potenciál vytíženosti, v objektu je zároveň možné vybudovat menší bytové jednotky pro dlouhodobé nájemní bydlení. K dispozici je velkorysá užitná plocha 743,60 m and sup2; na třech podlažích.
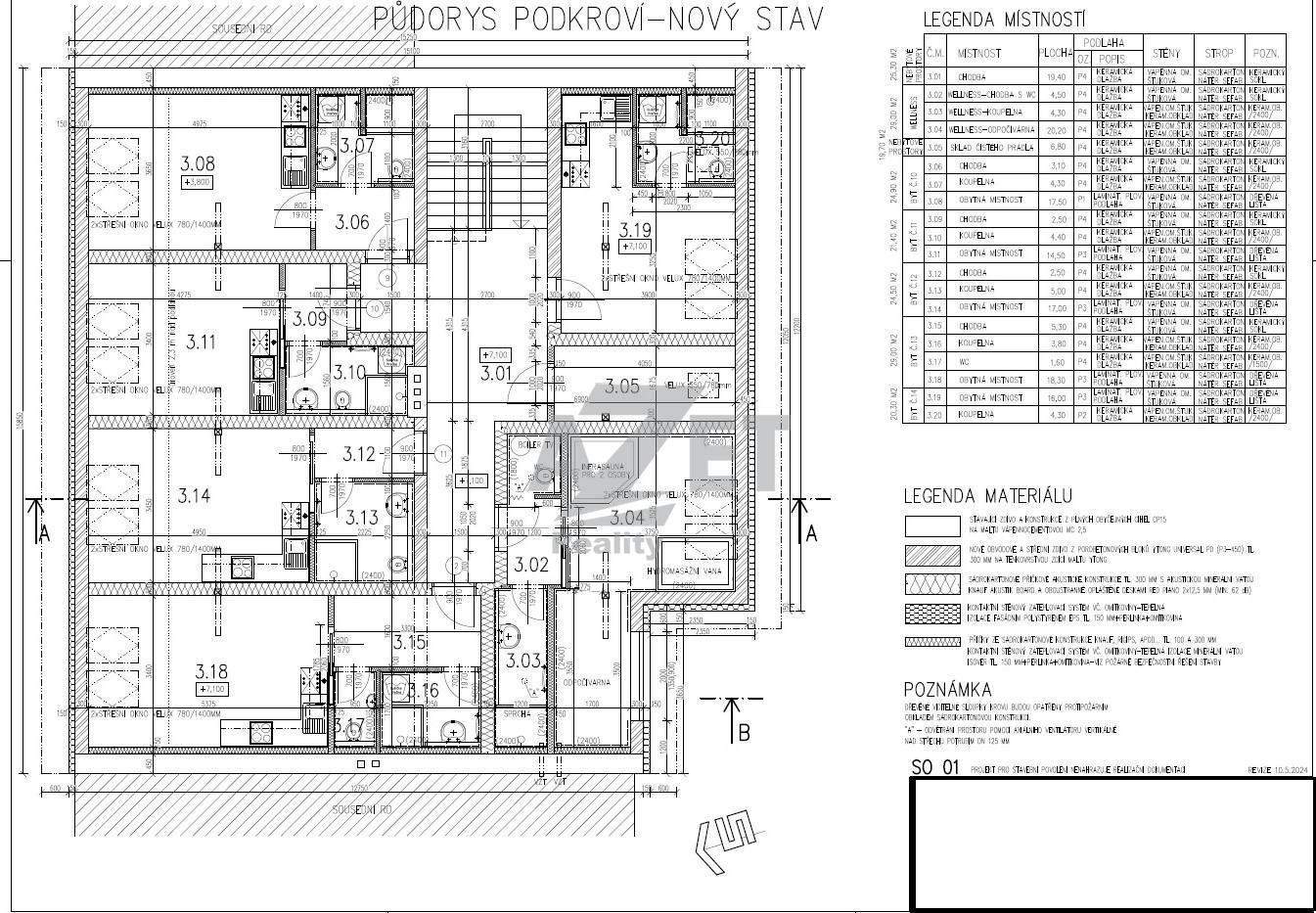
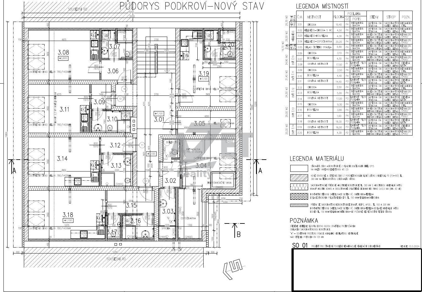
DISPOZICE PENZIONU
Podlaží Plocha Pobytová plocha Jednotky
1.NP 188 m and sup2; 58 m and sup2; 3 jednotky
2.NP 277 m and sup2; 103 m and sup2; 6 jednotek
Podkroví 278 m and sup2; 67 m and sup2; 5 jednotek
CELKEM 743 m and sup2; 28 m and sup2; 14 jednotek
TECHNICKÉ ŘEŠENÍ
Konstrukce: Nové nosné zdivo Ytong, příčky SDK
Kontaktní zateplení 150 mm
Nové stropy (ocelové profily + ŽB deska)
Krov a krytina Prefa Prefalz
Plastová okna s trojsklem
Vytápění a TUV:
Elektrické podlahové vytápění
Elektrické bojlery 100 l
Sítě:
Vodovod, kanalizace, elektřina - připojeno
Retenční nádrž pro dešťové vody
LOKALITA A DOSTUPNOST
Kunovice - ulice Lidická
Strategická poloha u hlavní komunikace
Zavedená zástavba rodinných domů
Výborné dopravní napojení
Blízkost městské infrastruktury
Vlastní dvůr s parkováním
FLEXIBILNÍ MOŽNOSTI
Územní plán umožňuje změnu záměru na:
Dům s nájemními byty
Apartmánový dům
Firemní ubytování
Kombinace bydlení a služeb
VHODNÉ PRO
Investory hledající okamžitý start projektu
Developery se zaměřením na ubytovací služby
Podnikatele v cestovním ruchu
Firmy řešící ubytování zaměstnanců
STAVEBNÍ ÚDAJE
Zastavěná plocha: 362 m and sup2;
Obestavěný prostor: 3.868 m and sup3;
Pozemek: s vlastním dvorem a parkováním
Stav objektu: připraven k rekonstrukci dle PD
CO ZÍSKÁTE
Platné stavební povolení
Kompletní projektovou dokumentaci
Připravený pozemek se sítěmi
Možnost okamžitého startu
Flexibilní využití objektu
Garantovanou návratnost investice
UPOZORNĚNÍ
Vizualizace jsou ilustrativní a slouží k lepší představě o potenciálu projektu. Závazné jsou údaje z projektové dokumentace.
KONTAKT
Maximalizujte potenciál této investice! Pro kompletní projektovou dokumentaci, finanční analýzu projektu, domluvení prohlídky nebo individuální investiční scénář mě kontaktujte.
Připraven k okamžitému startu Platné povolení Výnosná investice
Investiční projekt s garantovaným potenciálem v atraktivní lokalitě Kunovic
Cena:
7 000 000 Kč
Poznámka:
Konečná cena včetně právního servisu a provize RK.
Pomocí naší hypoteční kalkulačky si můžete udělat orientační představu o výši měsíčních splátek hypotéky. O vše ostatní se pak postaráme my ve spolupráci s našimi obchodními partnery.
28 341 Kč
* Odhadovaná měsíční splátka vychází z výše úvěru Kč s pevnou úrokovou sazbou % po celou dobu trvání úvěru.
Uživatel serveru RealityMIX.cz (dále jen „Server“) dostupného na internetové adrese (URL) https://www.realitymix.cz, který provozuje společnost DALTEN media s.r.o., se sídlem Na Harfě 916/9a, Praha 9, 190 00, IČO: 271 35 306 (dále jen „Správce“) jako provozovateli tohoto Serveru uděluje svůj výslovný souhlas v souladu s ustanovením § 5 zákona č. 101/2000 Sb. O ochraně osobních údajů a o změně některých zákonů, v platném znění (dále jen „zákon o ochraně osobních údajů“), se zpracováním uživatelem poskytnutých osobních údajů a dalších dat.
Uživatel poskytuje Správci osobní údaje v rozsahu: jméno, příjmení, e-mailová adresa, telefonický kontakt a další data, a to z důvodu projeveného zájmu o nemovitost, kde prostřednictvím služby Serveru Správce osloví Uživatel inzerenta uvedeného v detailu
nemovitosti - AZET reality (IČ 04841166) se zájmem o jeho služby.
Uživatel tyto osobní údaje poskytuje dobrovolně a bere na vědomí, že součástí služeb Správce, které Správce Uživateli poskytuje, je vyhledání všech Uživateli vyhovujících (dle parametrů - cena, typ nemovitosti, lokalita atd.) nemovitostí. Správce za tímto účelem provozuje aplikace Hlídací pes a newsletter. Tyto služby je možné z každého zaslaného emailu odhlásit. Souhlas se zpracováním osobních údajů Uživatel poskytuje Správci na dobu neurčitou s tím, že svůj udělený souhlas může Uživatel kdykoliv na drese správce info@realitymix.cz odvolat. Správce garantuje Uživateli i další práva uvedené v ustanovení §11 a §21 zákoba č. 101/200 Sb. Ve znění pozdějších předpisů.
Více informací o zpracování údajů získáte zde (realitymix.cz/zasady-ochrany-osobnich-udaju)