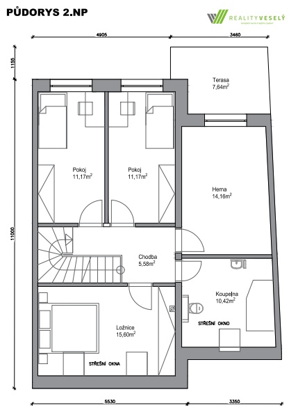
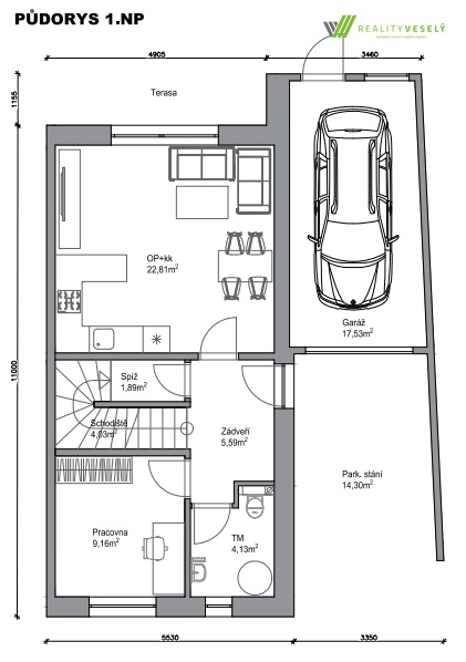
Nabízíme Vám poslední volný dům číslo 3 - Moderní a prostorný: Dispozice: 6+kk, Podlahová plocha: 145 m2, Plocha pozemku: 890 m2, Komfortní uspořádání: Garáž, kryté parkovací stání, obývací pokoj s kuchyňským koutem, 5 neprůchozích pokojů, 2 koupelny s WC, terasa. Cena v provedení nízkoenergetického RD: 7.659.531,-Kč, cena včetně pozemku, parkoviště a bez kuchyňské linky.
Stavbu nízkoenergetických domů provádí stavební společnost Úsporné bydlení s.r.o., s 20 letou tradicí.
- Moderní a energeticky úsporný dům s vysokým standardem, postavený s důrazem na kvalitu zpracování.
- Domy jsou navrženy jako nízkoenergetické dřevostavby s difůzně uzavřenou konstrukcí, což zajišťuje minimální energetickou náročnost a nízké náklady na provoz.
- Vlastní tepelné čerpadlo.
- Rekuperace s řízeným větráním zaručí zdravé a pohodlné bydlení.
- Ohřev teplé vody -fotovoltaika, vytápění TČ vzduch – vzduch.
Předání: Domy budou připraveny k nastěhování do 6 měsíců od začátku stavby. Stačí si na vlastní náklady zařídit kuchyňskou linku, svítidla a zeleň na zahrádce. Dotace NZÚ: domy jsou připraveny čerpat dotaci z programu „Nová zelená úsporám“. Lze postavit i jako pasivní dům.
Pokud hledáte moderní bydlení s nízkými provozními náklady v klidné lokalitě s perfektní dostupností do okolních měst, tento dům je ideální řešení právě pro vás. Obec Bohuslavice se nachází 5km od města Kyjova, výhodné spojení vlakem i autobusem, v obci mateřská i základní škola, fotbalové hřiště, přírodní koupací biotop, COOP. Možnost pěších túr a cyklo výletů do nádherné přírody Chřibů. Rádi Vám pomůžeme s financováním této nemovitosti. Pro více informací mě neváhejte kontaktovat.
Pomocí naší hypoteční kalkulačky si můžete udělat orientační představu o výši měsíčních splátek hypotéky. O vše ostatní se pak postaráme my ve spolupráci s našimi obchodními partnery.
31 011 Kč
* Odhadovaná měsíční splátka vychází z výše úvěru Kč s pevnou úrokovou sazbou % po celou dobu trvání úvěru.
Uživatel serveru RealityMIX.cz (dále jen „Server“) dostupného na internetové adrese (URL) https://www.realitymix.cz, který provozuje společnost DALTEN media s.r.o., se sídlem Na Harfě 916/9a, Praha 9, 190 00, IČO: 271 35 306 (dále jen „Správce“) jako provozovateli tohoto Serveru uděluje svůj výslovný souhlas v souladu s ustanovením § 5 zákona č. 101/2000 Sb. O ochraně osobních údajů a o změně některých zákonů, v platném znění (dále jen „zákon o ochraně osobních údajů“), se zpracováním uživatelem poskytnutých osobních údajů a dalších dat.
Uživatel poskytuje Správci osobní údaje v rozsahu: jméno, příjmení, e-mailová adresa, telefonický kontakt a další data, a to z důvodu projeveného zájmu o nemovitost, kde prostřednictvím služby Serveru Správce osloví Uživatel inzerenta uvedeného v detailu
nemovitosti - REALITY VESELÝ s.r.o. (IČ 02203316) se zájmem o jeho služby.
Uživatel tyto osobní údaje poskytuje dobrovolně a bere na vědomí, že součástí služeb Správce, které Správce Uživateli poskytuje, je vyhledání všech Uživateli vyhovujících (dle parametrů - cena, typ nemovitosti, lokalita atd.) nemovitostí. Správce za tímto účelem provozuje aplikace Hlídací pes a newsletter. Tyto služby je možné z každého zaslaného emailu odhlásit. Souhlas se zpracováním osobních údajů Uživatel poskytuje Správci na dobu neurčitou s tím, že svůj udělený souhlas může Uživatel kdykoliv na drese správce info@realitymix.cz odvolat. Správce garantuje Uživateli i další práva uvedené v ustanovení §11 a §21 zákoba č. 101/200 Sb. Ve znění pozdějších předpisů.
Více informací o zpracování údajů získáte zde (realitymix.cz/zasady-ochrany-osobnich-udaju)