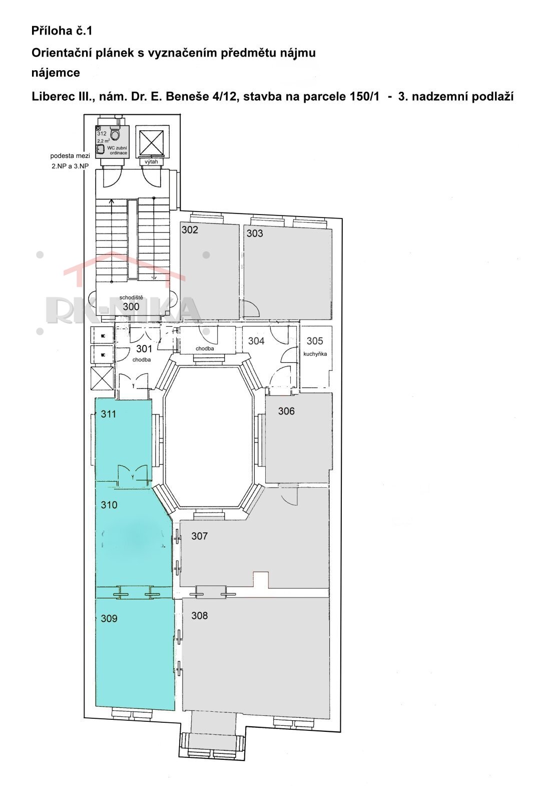
Kanceláře 45,5 m² s parkováním – Liberec, nám. Dr. E. Beneše (naproti radnici)
Nabízíme k pronájmu kancelářské prostory na prestižní adrese – náměstí Dr. E. Beneše v Liberci, přímo naproti historické budově Magistrátu města Liberec. Prostory se nacházejí ve 2. patře krásně renovovaného domu, který patří mezi dominanty náměstí a poskytuje firmě výbornou dostupnost i viditelnost.
Celková výměra činí 45,5 m² a zahrnuje tři na sebe navazující kanceláře, vhodné například pro menší firmu, pobočku společnosti, poradenské služby, účetní, projektanty či administrativní zázemí firmy.
K dispozici je společné zázemí – kuchyňka a sociální zařízení.
Velkou výhodou je 1 vyhrazené parkovací místo ve dvoře za domem, což je v centru města výrazný benefit pro nájemce i klienty.
Vybavení
• výtah v budově
• internetové připojení
• reprezentativní vstup do domu
• parkování ve dvoře
• zastávky MHD přímo na náměstí
Ideální kanceláře pro podnikání na adrese, kterou každý v Liberci zná. Vhodné pro firmy, které chtějí být klientům na očích a zároveň mít komfortní zázemí v centru města.
Cena:
250 Kč / (za m2/měsíc)
Poznámka:
zálohy za měsíční služby 125,-Kč/m2 + provize realitní kanceláře ve výši jednoho měsíčního nájemného
Uživatel serveru RealityMIX.cz (dále jen „Server“) dostupného na internetové adrese (URL) https://www.realitymix.cz, který provozuje společnost DALTEN media s.r.o., se sídlem Na Harfě 916/9a, Praha 9, 190 00, IČO: 271 35 306 (dále jen „Správce“) jako provozovateli tohoto Serveru uděluje svůj výslovný souhlas v souladu s ustanovením § 5 zákona č. 101/2000 Sb. O ochraně osobních údajů a o změně některých zákonů, v platném znění (dále jen „zákon o ochraně osobních údajů“), se zpracováním uživatelem poskytnutých osobních údajů a dalších dat.
Uživatel poskytuje Správci osobní údaje v rozsahu: jméno, příjmení, e-mailová adresa, telefonický kontakt a další data, a to z důvodu projeveného zájmu o nemovitost, kde prostřednictvím služby Serveru Správce osloví Uživatel inzerenta uvedeného v detailu
nemovitosti - RK NIKA s.r.o. (IČ 27478751) se zájmem o jeho služby.
Uživatel tyto osobní údaje poskytuje dobrovolně a bere na vědomí, že součástí služeb Správce, které Správce Uživateli poskytuje, je vyhledání všech Uživateli vyhovujících (dle parametrů - cena, typ nemovitosti, lokalita atd.) nemovitostí. Správce za tímto účelem provozuje aplikace Hlídací pes a newsletter. Tyto služby je možné z každého zaslaného emailu odhlásit. Souhlas se zpracováním osobních údajů Uživatel poskytuje Správci na dobu neurčitou s tím, že svůj udělený souhlas může Uživatel kdykoliv na drese správce info@realitymix.cz odvolat. Správce garantuje Uživateli i další práva uvedené v ustanovení §11 a §21 zákoba č. 101/200 Sb. Ve znění pozdějších předpisů.
Více informací o zpracování údajů získáte zde (realitymix.cz/zasady-ochrany-osobnich-udaju)