Přáli byste si rodinný dům v romantické přírodě kousek od Liberce? Nebo jste milovník zimních sportů a líbilo by se Vám horské útočiště? Nebo hledáte investiční nemovitost s několika bytovými jednotkami? Nebo by se Vám líbila kombinace něčeho zmíněného?
Tak jste tu tedy správně. Dnes pro Vás mám rustikální vilu z roku 1938 nacházející se u Mojžíšova pramene. Vila byla postavena česko-německou rodinnou, dle návrhů německých architektů a je vystavěna z cihel. Dům byl kompletně a citlivě zrekonstruován a k dokončení rekonstrukce došlo před dvěma lety. Dům se nachází téměř na samotě přesto pouhých 10min. do centra Liberce. Pozemek je na velmi žádaném a oblíbeném místě, v populární lokalitě Vratislavic nad Nisou s vyhlídkami na Liberec a Ještěd, vstupem do okolních lesů směrem na vyhlídku Císařský kámen a kousek nad domem jsou dokonce vidět i Krkonoše. Romantické prostředí s přilehlými loukami a lesy nabízí velmi klidné bydlení, bez přímých sousedů avšak s velmi dobrou dostupností do centra Liberce, Jablonce nebo s pohodlným napojením na Prahu (ta je cca 55 min autem). Koupat se můžete například ve Veseckém rybníku (1km na kole). Jedná se o velmi unikátní prostor, vzhledem k jeho poloze a okolí.
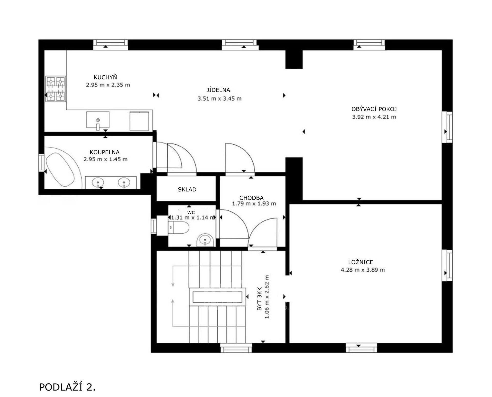
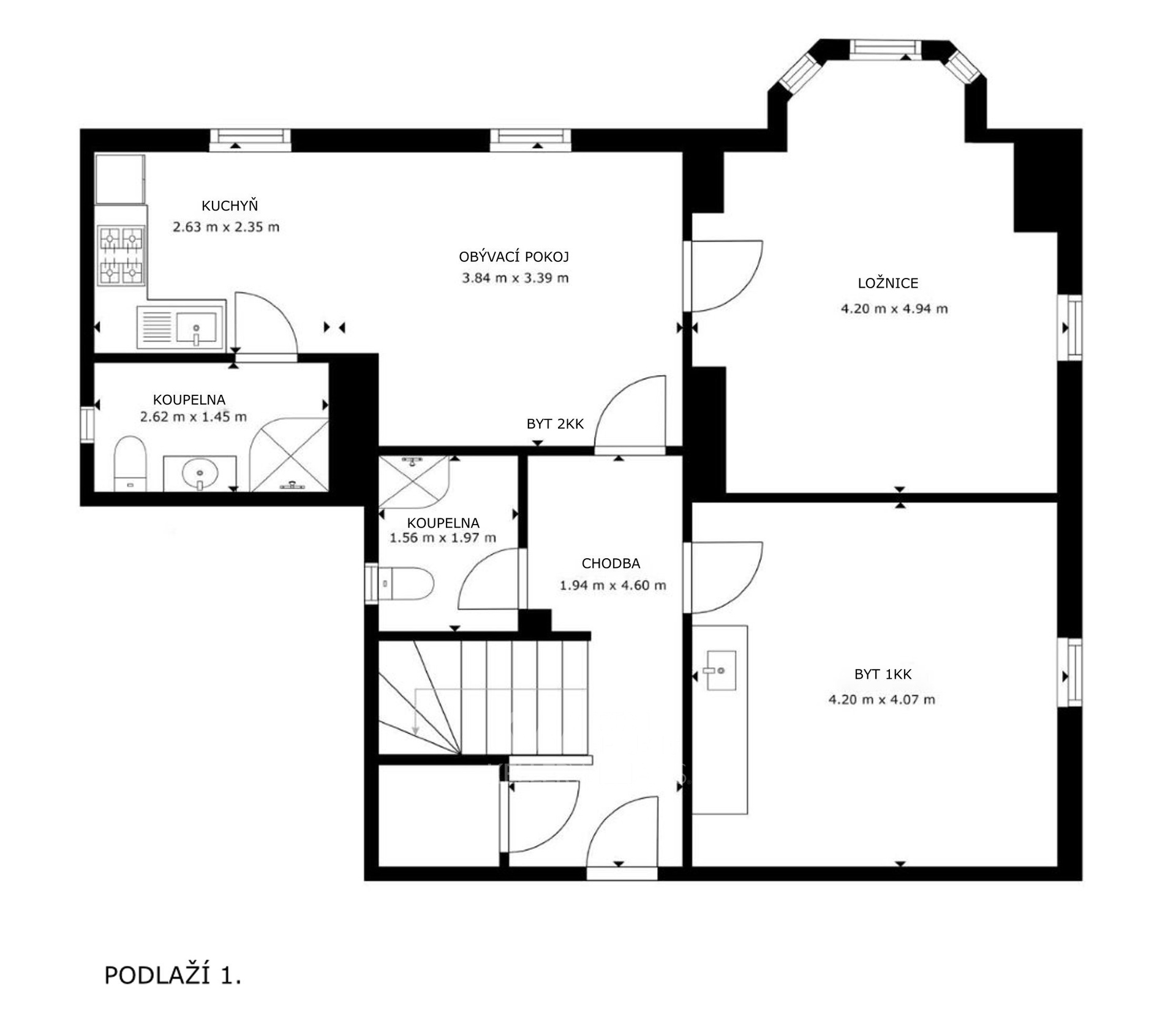
Rekonstrukce obsahovala rozvody elektřiny, vody, topení, podlahové topení v přízemí, výměna oken, podlahy, koupelny, kuchyně, vyvložkovaný komín s dvěma průduchy a novou čistírnu odpadních vod dimenzovanou pro 8 osob. Je zde i příprava rozvodů a nádrže na dešťovou vodu na splachování a zalévání. Použity kvalitní materiály, italská dlažba a keramika, dřevěné podlahy z masivu, francouzské kuchyně. Vše designováno s ohledem na unikátnost domu a jeho přirozenou polohu v rámci prostoru kde se nachází. Celý dům je podsklepen (cca. 70m2), sklepní prostory se využívají jako kotelna, prádelna a sklad. Nyní se v domě nachází tři byty o dispozicích 1kk, 2kk a 3kk. Předěl mezi přízemím a horním patrem lze vyřešit elektrickou roletou.
Na pozemku 1080m2 je připravená voda a elektřina na saunu, bazén, či letní kuchyň. Dále se zde nachází samostatná garáž (20m2) a hrací prvky pro děti. Na domě je bezpečnostní kamera a elektrické rozvody na další kamery v každém rohu domu.
Pro virtuální prohlídku domu mě kontaktujte a na následnou prohlídku se budu těšit.
Pomocí naší hypoteční kalkulačky si můžete udělat orientační představu o výši měsíčních splátek hypotéky. O vše ostatní se pak postaráme my ve spolupráci s našimi obchodními partnery.
50 933 Kč
* Odhadovaná měsíční splátka vychází z výše úvěru Kč s pevnou úrokovou sazbou % po celou dobu trvání úvěru.
Uživatel serveru RealityMIX.cz (dále jen „Server“) dostupného na internetové adrese (URL) https://www.realitymix.cz, který provozuje společnost DALTEN media s.r.o., se sídlem Na Harfě 916/9a, Praha 9, 190 00, IČO: 271 35 306 (dále jen „Správce“) jako provozovateli tohoto Serveru uděluje svůj výslovný souhlas v souladu s ustanovením § 5 zákona č. 101/2000 Sb. O ochraně osobních údajů a o změně některých zákonů, v platném znění (dále jen „zákon o ochraně osobních údajů“), se zpracováním uživatelem poskytnutých osobních údajů a dalších dat.
Uživatel poskytuje Správci osobní údaje v rozsahu: jméno, příjmení, e-mailová adresa, telefonický kontakt a další data, a to z důvodu projeveného zájmu o nemovitost, kde prostřednictvím služby Serveru Správce osloví Uživatel inzerenta uvedeného v detailu
nemovitosti - Keller Williams Czech Republic (IČ 07796340) se zájmem o jeho služby. Tato společnost je součástí seskupení/sítě/franšízového modelu realitních kanceláří, jejich seznam můžete zobrazit kliknutím na tento odkaz.
Keller Williams Czech Republic (IČ 07796340) , Nemovito by Keller Williams (IČ 10826971) , Keller Williams Czech Republic (IČ 07796340) , Keller Williams - centrála (IČ 06521924)
Uživatel tyto osobní údaje poskytuje dobrovolně a bere na vědomí, že součástí služeb Správce, které Správce Uživateli poskytuje, je vyhledání všech Uživateli vyhovujících (dle parametrů - cena, typ nemovitosti, lokalita atd.) nemovitostí. Správce za tímto účelem provozuje aplikace Hlídací pes a newsletter. Tyto služby je možné z každého zaslaného emailu odhlásit. Souhlas se zpracováním osobních údajů Uživatel poskytuje Správci na dobu neurčitou s tím, že svůj udělený souhlas může Uživatel kdykoliv na drese správce info@realitymix.cz odvolat. Správce garantuje Uživateli i další práva uvedené v ustanovení §11 a §21 zákoba č. 101/200 Sb. Ve znění pozdějších předpisů.
Více informací o zpracování údajů získáte zde (realitymix.cz/zasady-ochrany-osobnich-udaju)