Vila k celkové rekonstrukci prestižní čtvrť Staré město- Liberec.
Nabízíme jedinečnou příležitost k realizaci vlastního developerského nebo rodinného projektu v nejžádanější lokalitě Liberce směr Lidové sady.
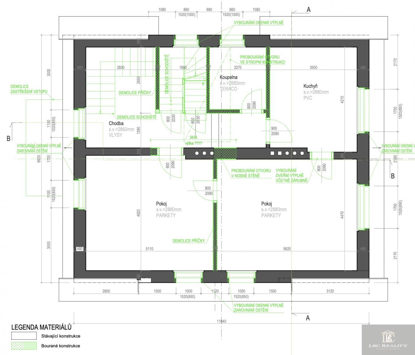
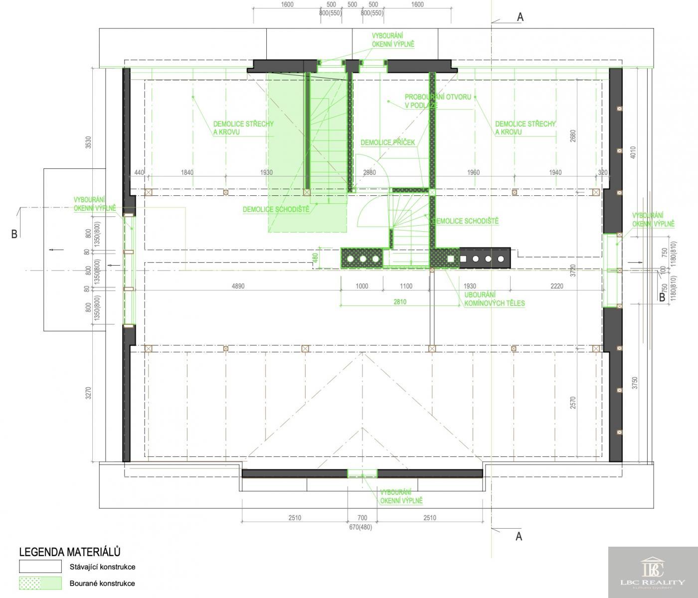
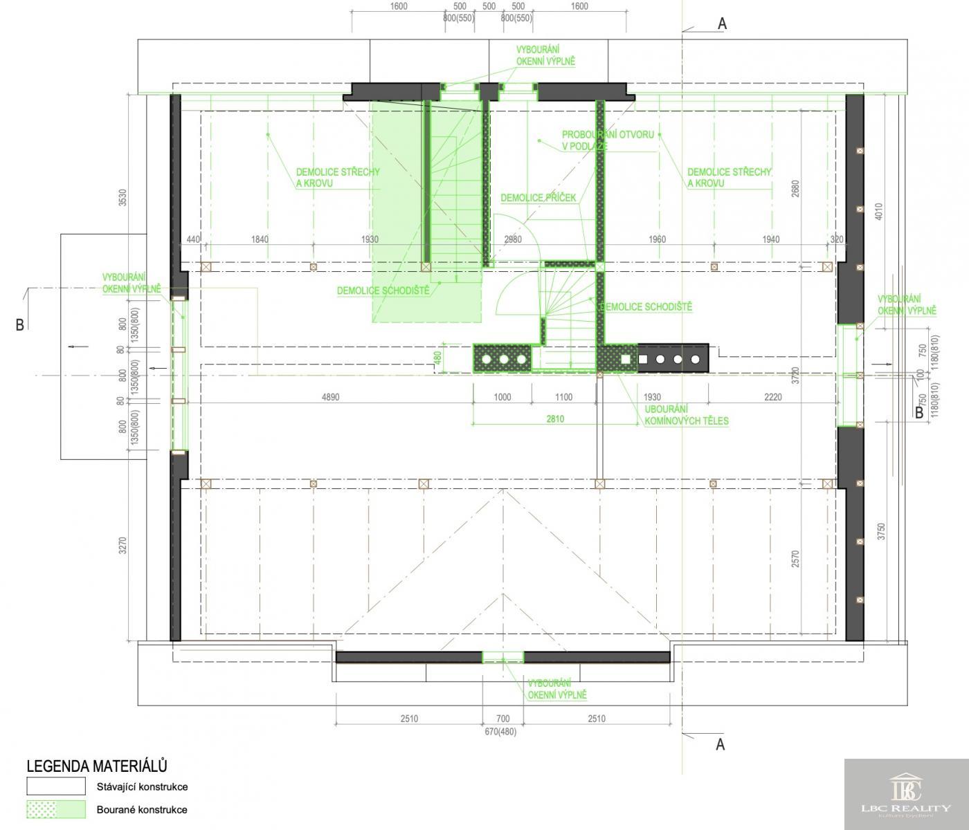
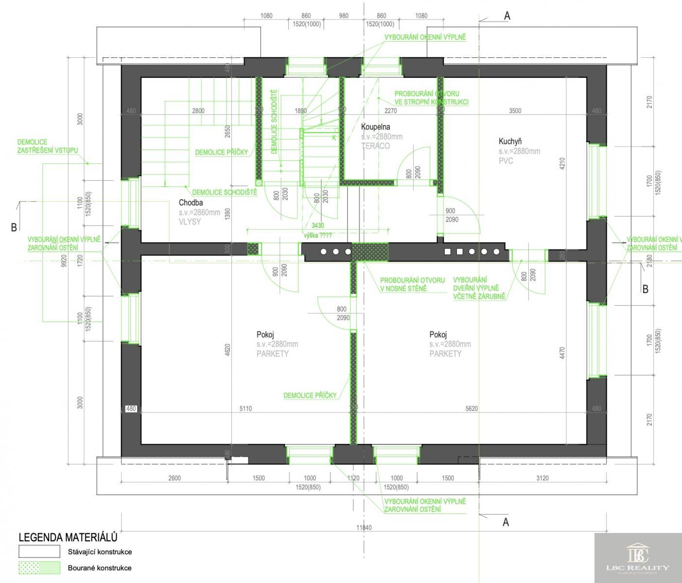
Tato vilová stavba z meziválečného období stojí na rozsáhlém pozemku a je připravena k celkové rekonstrukci objekt je zcela vyčištěn až na nosné zdivo (na cihlu) a připraven pro stavební zásah.
Základní informace:
Lokalita: Liberec Staré město ve směru Lidových sadů- nejprestižnější rezidenční oblast města
Pozemek: velkorysý, spíše rovinatý, s dostatkem prostoru pro parkování i zeleň
Stav objektu: kompletně vyčištěno na konstrukce, připraveno pro rekonstrukci
Stavební povolení: vydáno na dvě mezonetové bytové jednotky (uvedená cena zahrnuje kompletní projekt předního liberecké architekta)
Alternativně lze projekt upravit na čtyři samostatné bytové jednotky (po podlažích)
Popis a potenciál
Vila je ideální pro investory, kteří hledají projekt s duší a potenciálem návratnosti v prémiové části města.
Nosné zdivo je v dobrém technickém stavu, dům je zbaven všech původních rozvodů a vnitřních příček připravený na novou dispozici podle moderních standardů.
Lokalita umožňuje nízkopodlažní rezidenční zástavbu s vysokou společenskou prestiží.
Staré město a Lidové sady patří mezi nejstarší a nejreprezentativnější vilové čtvrti Liberce.
Vznikly na přelomu 19. a 20. století jako rezidenční oblast pro průmyslníky a měšťany, kteří zde stavěli své honosné vily s výhledem na Ještěd a do zeleně.
Dnes tato čtvrť představuje harmonické spojení historie, přírody a kultury v bezprostřední blízkosti zoologické a botanické zahrady, parku i centra města.
Tento objekt představuje mimořádnou investiční příležitost
ať už chcete vytvořit luxusní dvougenerační bydlení, nebo menší bytový dům v prestižní čtvrti s vysokou poptávkou.
Pokud máte zájem o více informací, případně nemovitost společně navštívit, kontaktujte mě a budu se na vás těšit na společné prohlídce.
Veškeré zveřejněné údaje obsažené v tomto inzerátu mají pouze informativní charakter a nejsou nabídkou ve smyslu § 1731 nebo § 1732 občanského zákoníku, ani se nejedná o veřejný příslib dle § 1733 občanského zákoníku.
Pomocí naší hypoteční kalkulačky si můžete udělat orientační představu o výši měsíčních splátek hypotéky. O vše ostatní se pak postaráme my ve spolupráci s našimi obchodními partnery.
84 214 Kč
* Odhadovaná měsíční splátka vychází z výše úvěru Kč s pevnou úrokovou sazbou % po celou dobu trvání úvěru.
Uživatel serveru RealityMIX.cz (dále jen „Server“) dostupného na internetové adrese (URL) https://www.realitymix.cz, který provozuje společnost DALTEN media s.r.o., se sídlem Na Harfě 916/9a, Praha 9, 190 00, IČO: 271 35 306 (dále jen „Správce“) jako provozovateli tohoto Serveru uděluje svůj výslovný souhlas v souladu s ustanovením § 5 zákona č. 101/2000 Sb. O ochraně osobních údajů a o změně některých zákonů, v platném znění (dále jen „zákon o ochraně osobních údajů“), se zpracováním uživatelem poskytnutých osobních údajů a dalších dat.
Uživatel poskytuje Správci osobní údaje v rozsahu: jméno, příjmení, e-mailová adresa, telefonický kontakt a další data, a to z důvodu projeveného zájmu o nemovitost, kde prostřednictvím služby Serveru Správce osloví Uživatel inzerenta uvedeného v detailu
nemovitosti - LBC reality s.r.o. (IČ 22772901) se zájmem o jeho služby.
Uživatel tyto osobní údaje poskytuje dobrovolně a bere na vědomí, že součástí služeb Správce, které Správce Uživateli poskytuje, je vyhledání všech Uživateli vyhovujících (dle parametrů - cena, typ nemovitosti, lokalita atd.) nemovitostí. Správce za tímto účelem provozuje aplikace Hlídací pes a newsletter. Tyto služby je možné z každého zaslaného emailu odhlásit. Souhlas se zpracováním osobních údajů Uživatel poskytuje Správci na dobu neurčitou s tím, že svůj udělený souhlas může Uživatel kdykoliv na drese správce info@realitymix.cz odvolat. Správce garantuje Uživateli i další práva uvedené v ustanovení §11 a §21 zákoba č. 101/200 Sb. Ve znění pozdějších předpisů.
Více informací o zpracování údajů získáte zde (realitymix.cz/zasady-ochrany-osobnich-udaju)