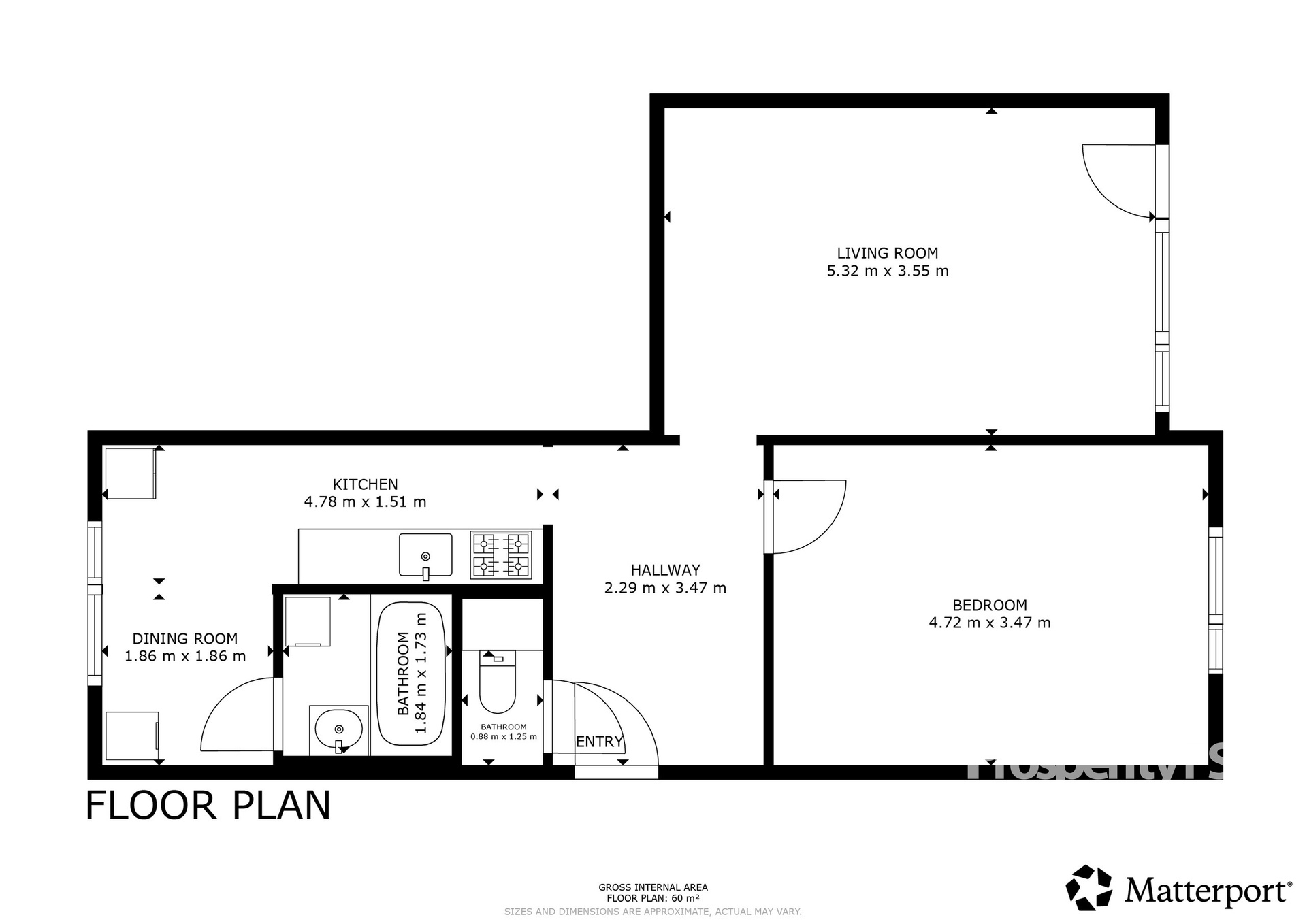
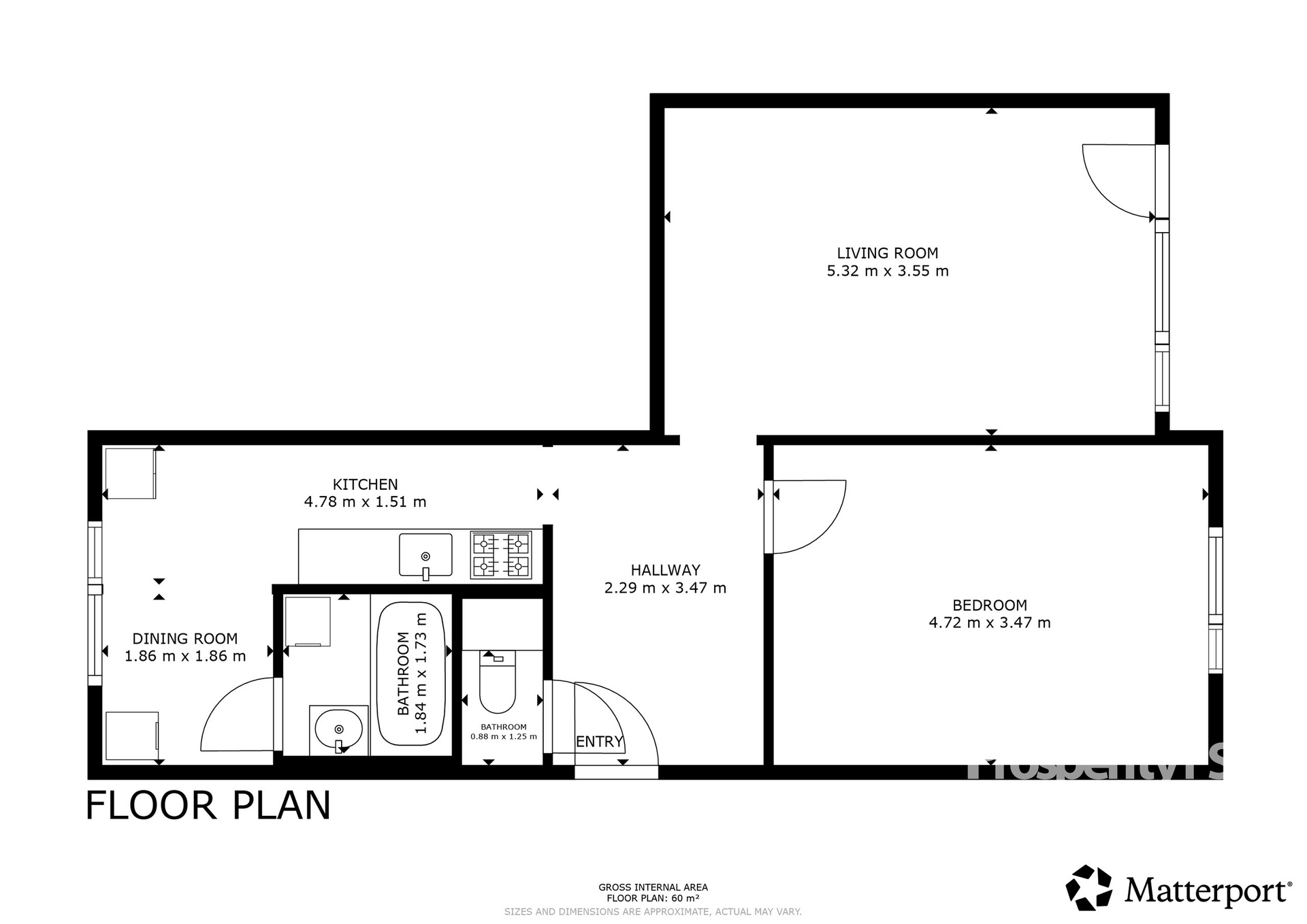
Nabízíme k prodeji světlý byt o dispozici 2+1 a výměře 64 m², situovaný v klidné části Litoměřic.
Byt prošel rekonstrukcí a nabízí praktické a funkční řešení dispozice. Velkou výhodou je zděné jádro, oddělená toaleta a koupelna, což zvyšuje komfort každodenního bydlení. Obývací pokoj je prostorný a díky velkým oknům velmi světlý, s přímým vstupem na lodžii, která poskytuje příjemné místo k odpočinku.
Další místnosti jsou dobře využitelné jak pro rodinné bydlení, tak i jako pracovna či dětský pokoj. Byt působí vzdušně a udržovaně, připravený k okamžitému nastěhování bez nutnosti dalších větších investic.
Velkým benefitem jsou nadstandardní úložné prostory – k dispozici je sklepní kóje a zároveň další úložný prostor v suterénu domu. Praktické je také umístění úložných prostor přímo na stejném podlaží jako byt.
Dům je udržovaný a nachází se v klidné lokalitě s dostatkem zeleně. V okolí najdete kompletní občanskou vybavenost – školy, školky, sportoviště i obchody. Výhodou je také pěší dostupnost historického centra Litoměřic během několika minut.
Měsíční náklady na provoz bytu činí přibližně 5 100 Kč dle předpisu .
Tato nemovitost je ideální jak pro vlastní bydlení, tak i jako investiční příležitost díky kombinaci dispozice, stavu a lokality.
K této nabídce máme připravenou kompletní dokumentaci, kterou vám rádi představíme ještě před prohlídkou.
Navíc se můžete projít bytem pomocí virtuální prohlídky z pohodlí vašeho domova.
Pomocí naší hypoteční kalkulačky si můžete udělat orientační představu o výši měsíčních splátek hypotéky. O vše ostatní se pak postaráme my ve spolupráci s našimi obchodními partnery.
18 017 Kč
* Odhadovaná měsíční splátka vychází z výše úvěru Kč s pevnou úrokovou sazbou % po celou dobu trvání úvěru.
Prodáváte nemovitost a potřebujete zjistit její reálnou hodnotu?
Uživatel serveru RealityMIX.cz (dále jen „Server“) dostupného na internetové adrese (URL) https://www.realitymix.cz, který provozuje společnost DALTEN media s.r.o., se sídlem Na Harfě 916/9a, Praha 9, 190 00, IČO: 271 35 306 (dále jen „Správce“) jako provozovateli tohoto Serveru uděluje svůj výslovný souhlas v souladu s ustanovením § 5 zákona č. 101/2000 Sb. O ochraně osobních údajů a o změně některých zákonů, v platném znění (dále jen „zákon o ochraně osobních údajů“), se zpracováním uživatelem poskytnutých osobních údajů a dalších dat.
Uživatel poskytuje Správci osobní údaje v rozsahu: jméno, příjmení, e-mailová adresa, telefonický kontakt a další data, a to z důvodu projeveného zájmu o nemovitost, kde prostřednictvím služby Serveru Správce osloví Uživatel inzerenta uvedeného v detailu
nemovitosti - Prosperity Financial Services a.s. (IČ 02745836) se zájmem o jeho služby. Tato společnost je součástí seskupení/sítě/franšízového modelu realitních kanceláří, jejich seznam můžete zobrazit kliknutím na tento odkaz.
Prosperity Living s.r.o. (IČ 23446731) , Prosperity Financial Services a.s. (IČ 02745836)
Uživatel tyto osobní údaje poskytuje dobrovolně a bere na vědomí, že součástí služeb Správce, které Správce Uživateli poskytuje, je vyhledání všech Uživateli vyhovujících (dle parametrů - cena, typ nemovitosti, lokalita atd.) nemovitostí. Správce za tímto účelem provozuje aplikace Hlídací pes a newsletter. Tyto služby je možné z každého zaslaného emailu odhlásit. Souhlas se zpracováním osobních údajů Uživatel poskytuje Správci na dobu neurčitou s tím, že svůj udělený souhlas může Uživatel kdykoliv na drese správce info@realitymix.cz odvolat. Správce garantuje Uživateli i další práva uvedené v ustanovení §11 a §21 zákoba č. 101/200 Sb. Ve znění pozdějších předpisů.
Více informací o zpracování údajů získáte zde (realitymix.cz/zasady-ochrany-osobnich-udaju)