Nabízíme k prodeji rodinný dům v malebné obci Svučice, čp. 45, nacházející se v těsné blízkosti obce Mišovice a Mirovice.
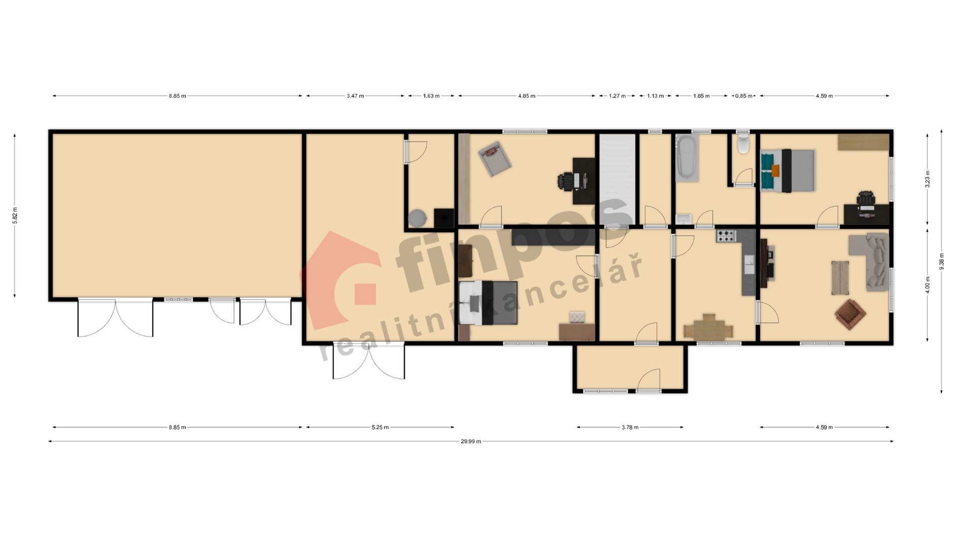
Tento dům, o dispozici 5+kk a podlahové ploše 141 m², nabízí skvělou příležitost pro ty, kteří hledají nemovitost k celkové rekonstrukci interiéru.
S velkým pozemkem o celkové rozloze 2404 m², z toho zahrada a přilehlé louka(travní porost) tvoří 1994 m², získáváte dostatečný rovinatý prostor pro vlastní zahradní úpravy, relaxaci, nebo pěstování rostlin. Travní porost za zahradou je také navíc s možností přístupu z obecního pozemku.
Dům s dispozicí 5+kk je před rekonstrukcí, což dává budoucímu majiteli volnost při realizaci vlastních nápadů a potřeb. Přízemní cihlová přístavba zahrnuje garáž o velikosti 49 m². Z 1NP(přízemí) vede schodiště do neobytného podkroví, které jse velmi prostorné a vhodné pro budoucí obytnou plochu. Sedlový krov je zachovalý a novodobější střešní krytina z pálených cihlových bobrovek je udržovaná a funkční.
Nemovitost se nachází na okraji obce v příjemném a klidném prostředí, přičemž je obklopena krásnou přírodou. Skvělou zprávou je výborná dostupnost na dálnici D4, která je vzdálena jen 10 minut jízdy, což umožní snadný a rychlý přístup do měst Praha - Písek - Budějovice.
K dispozici máte vlastní studnu, která je napojená na dům. Odpady svedeny do septiku (sloužící jako jímka), který není zatím napojen na kanalizaci. Přímo před nemovitostí je vedení smíšené kanalizace obce Svučice, kam můžete napojit nový odpovídající předpisům septik, nebo ČOV. Topení je řešeno ústředním systémem na tuhá paliva, kotel je posazen níže a funguje zde samotíží bez nutnosti čerpadla.
Občanská vybavenost obce Mirovice je na dobré úrovni, poskytující vše potřebné pro každodenní život. Pokud hledáte místo v přírodě s možností vytvořit si domov podle svých představ, neváhejte nás kontaktovat pro více informací a domluvení prohlídky!
Uživatel serveru RealityMIX.cz (dále jen „Server“) dostupného na internetové adrese (URL) https://www.realitymix.cz, který provozuje společnost DALTEN media s.r.o., se sídlem Na Harfě 916/9a, Praha 9, 190 00, IČO: 271 35 306 (dále jen „Správce“) jako provozovateli tohoto Serveru uděluje svůj výslovný souhlas v souladu s ustanovením § 5 zákona č. 101/2000 Sb. O ochraně osobních údajů a o změně některých zákonů, v platném znění (dále jen „zákon o ochraně osobních údajů“), se zpracováním uživatelem poskytnutých osobních údajů a dalších dat.
Uživatel poskytuje Správci osobní údaje v rozsahu: jméno, příjmení, e-mailová adresa, telefonický kontakt a další data, a to z důvodu projeveného zájmu o nemovitost, kde prostřednictvím služby Serveru Správce osloví Uživatel inzerenta uvedeného v detailu
nemovitosti - Finpos realitní kancelář Tábor (IČ 05253951) se zájmem o jeho služby. Tato společnost je součástí seskupení/sítě/franšízového modelu realitních kanceláří, jejich seznam můžete zobrazit kliknutím na tento odkaz.
Finpos realitní kancelář Jihlava (IČ 05253951) , Finpos realitní kancelář Mělník (IČ 05253951) , Finpos realitní kancelář Pacov (IČ 05253951) , Finpos realitní kancelář Plzeň (IČ 05253951) , Finpos realitní kancelář Písek (IČ 05253951) , Finpos realitní kancelář České Budějovice (IČ 05253951) , Finpos realitní kancelář Pardubice (IČ 05253951) , Finpos realitní kancelář Nymburk (IČ 05253951) , Regionální kancelář Jeseník (IČ 05253951) , Finpos realitní kancelář Praha (IČ 05253951) , Finpos realitní kancelář Brno (IČ 05253951) , Finpos realitní kancelář Tábor (IČ 05253951) , Finpos realitní kancelář Praha (IČ 05253951) , Finpos realitní kancelář Chlumec nad Cidlinou (IČ 05253951) , Finpos realitní kancelář Brno (IČ 05253951) , Finpos realitní kancelář Plzeň (IČ 05253951) , Finpos realitní kancelář Brno - Přízřenice (IČ 05253951) , Finpos realitní kancelář Vlašim (IČ 05253951) , Finpos realitní Benešov (IČ 05253951)
Uživatel tyto osobní údaje poskytuje dobrovolně a bere na vědomí, že součástí služeb Správce, které Správce Uživateli poskytuje, je vyhledání všech Uživateli vyhovujících (dle parametrů - cena, typ nemovitosti, lokalita atd.) nemovitostí. Správce za tímto účelem provozuje aplikace Hlídací pes a newsletter. Tyto služby je možné z každého zaslaného emailu odhlásit. Souhlas se zpracováním osobních údajů Uživatel poskytuje Správci na dobu neurčitou s tím, že svůj udělený souhlas může Uživatel kdykoliv na drese správce info@realitymix.cz odvolat. Správce garantuje Uživateli i další práva uvedené v ustanovení §11 a §21 zákoba č. 101/200 Sb. Ve znění pozdějších předpisů.
Více informací o zpracování údajů získáte zde (realitymix.cz/zasady-ochrany-osobnich-udaju)