Prodej novostavby rodinného domu - Horákov, Mokrá-Horákov
Hledáte novostavbu, která bude během několika měsíců dokončena na klíč a přesně podle Vašich představ?
V malebné části Horákov, v obci Mokrá-Horáko v, Vám nabízím moderní rodinný dům s dispozicí až 6+kk, zahradou a garáží - ideální místo pro pohodové rodinné bydlení jen pár minut od Brna.
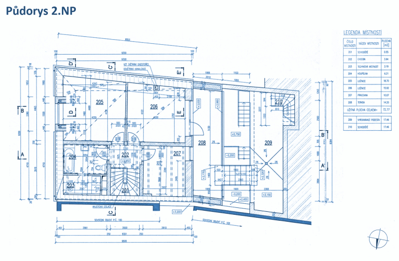
Dům má užitnou plochu přibližně 140 m2, podlahová plocha činí asi 150 m2 a pozemek má celkovou výměru 248 m2. Součástí je také garáž o velikosti přibližně 12 m. Nemovitost se v současné době nachází ve fázi hrubé stavby, přičemž zkušená stavební firma je připravena dům dokončit na klíč zhruba do půl roku. Kompletní rozpočet dokončení je k dispozici na vyžádání.
Velkou výhodou je možnost přizpůsobit si finální podobu domu podle vlastních přání - ať už jde o interiér, materiály nebo doplňkové úpravy. V případě potřeby lze nemovitost upravit i na dvě samostatné bytové jednotky, což umožňuje vícegenerační bydlení, pronájem nebo propojení bydlení s podnikáním.
Parkování je možné na veřejném prostranství přímo před domem. Na pozemku se navíc nachází menší garáž, která je vhodná k rekonstrukci.
Lokalita, která má své kouzlo
Mokrá-Horákov leží v těsné blízkosti Brna a je obklopena krásnou přírodou Moravského krasu. V okolí se nachází množství turistických i cyklistických tras, včetně známé jeskyně Pekárna. Obec nabízí kompletní občanskou vybavenost a bohaté možnosti kulturního i sportovního vyžití, díky čemuž je ideální nejen pro rodinný život, ale i pro aktivní způsob trávení volného času.
Zaujala Vás tato nemovitost? Zavolejte mi pro více informací nebo domluvení prohlídky.
Pomocí naší hypoteční kalkulačky si můžete udělat orientační představu o výši měsíčních splátek hypotéky. O vše ostatní se pak postaráme my ve spolupráci s našimi obchodními partnery.
44 496 Kč
* Odhadovaná měsíční splátka vychází z výše úvěru Kč s pevnou úrokovou sazbou % po celou dobu trvání úvěru.
Uživatel serveru RealityMIX.cz (dále jen „Server“) dostupného na internetové adrese (URL) https://www.realitymix.cz, který provozuje společnost DALTEN media s.r.o., se sídlem Na Harfě 916/9a, Praha 9, 190 00, IČO: 271 35 306 (dále jen „Správce“) jako provozovateli tohoto Serveru uděluje svůj výslovný souhlas v souladu s ustanovením § 5 zákona č. 101/2000 Sb. O ochraně osobních údajů a o změně některých zákonů, v platném znění (dále jen „zákon o ochraně osobních údajů“), se zpracováním uživatelem poskytnutých osobních údajů a dalších dat.
Uživatel poskytuje Správci osobní údaje v rozsahu: jméno, příjmení, e-mailová adresa, telefonický kontakt a další data, a to z důvodu projeveného zájmu o nemovitost, kde prostřednictvím služby Serveru Správce osloví Uživatel inzerenta uvedeného v detailu
nemovitosti - Bidli reality, a.s. (IČ 06790763) se zájmem o jeho služby. Tato společnost je součástí seskupení/sítě/franšízového modelu realitních kanceláří, jejich seznam můžete zobrazit kliknutím na tento odkaz.
Hypocentrum modré pyramidy - Praha (IČ ) , Hypocentrum modré pyramidy - Brno (IČ ) , Hypocentrum Modré pyramidy - Hradec Králové (IČ ) , Hypocentrum Modré pyramidy - České Budějovice (IČ ) , Hypocentrum Modré pyramidy - Pardubice (IČ ) , Hypocentrum Modré pyramidy - Plzeň (IČ ) , Hypocentrum Modré pyramidy - Ústí nad Labem (IČ ) , Hypocentrum Modré pyramidy - Ostrava (IČ ) , Hypocentrum Modré pyramidy - Olomouc (IČ ) , Bidli reality, a.s. (IČ 06790763)
Uživatel tyto osobní údaje poskytuje dobrovolně a bere na vědomí, že součástí služeb Správce, které Správce Uživateli poskytuje, je vyhledání všech Uživateli vyhovujících (dle parametrů - cena, typ nemovitosti, lokalita atd.) nemovitostí. Správce za tímto účelem provozuje aplikace Hlídací pes a newsletter. Tyto služby je možné z každého zaslaného emailu odhlásit. Souhlas se zpracováním osobních údajů Uživatel poskytuje Správci na dobu neurčitou s tím, že svůj udělený souhlas může Uživatel kdykoliv na drese správce info@realitymix.cz odvolat. Správce garantuje Uživateli i další práva uvedené v ustanovení §11 a §21 zákoba č. 101/200 Sb. Ve znění pozdějších předpisů.
Více informací o zpracování údajů získáte zde (realitymix.cz/zasady-ochrany-osobnich-udaju)