Nabízíme k prodeji rodinný dům v obci Němčany, situovaný v atraktivní lokalitě s výbornou dostupností do Slavkova (7 minut), Bučovic (10 minut) a Brna (20 minut).
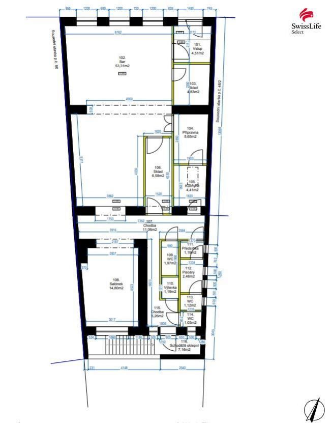
Tento dům je ideální pro přestavbu na tři moderní bytové jednotky o dispozici 4+kk. Každá jednotka má rozlohu 111,8 m a obsahuje prostornou obytnou kuchyni (35 m) a tři pokoje (každý 15 m). Pokoje budou orientovány do ulice, zatímco kuchyně a obytné prostory budou směřovat do vnitrobloku. K jednotkám náleží koupelna, samostatné WC a šatna. Každá bytová jednotka bude mít samostatný vstup ze společného komunikačního jádra a vlastní sklepní kóji v 1. podzemním podlaží. Vstup do objektu bude umístěn ve vnitrobloku.
Dům je navržen jako dvoupodlažní s obytným podkrovím, což zajišťuje dostatek prostoru pro komfortní bydlení i pro vícegenerační rodinu. K dispozici je také parkování s venkovními stáními tři na ulici a tři ve vnitrobloku. Tento projekt nabízí široké možnosti využití, ať už pro vlastní bydlení nebo jako investiční příležitost.
Němčany jsou klidná obec s velmi dobrou dopravní dostupností, ideální pro ty, kteří hledají bydlení mimo městský ruch, ale přitom s výborným spojením do Brna a okolních měst. V obci se nachází základní občanská vybavenost, včetně školy, obchodu, pošty a dalších služeb. Pro milovníky přírody a aktivního odpočinku je k dispozici řada cyklostezek a turistických tras.
Tento projekt je skvélé příležitost nejen pro rodiny, které hledají pohodlné bydlení, ale také pro investory, kteří chtějí využít rostoucího potenciálu této lokality.
Swiss Life Select Vám nabízí pomoc při vyřízení financování této nemovitosti, včetně nezávislého porovnání hypoték a tvorby financování na míru. Díky našim exkluzivním podmínkám a kvalitnímu klientskému servisu můžete být jistí, že pro vás najdeme nejlepší možnosti financování.
Pomocí naší hypoteční kalkulačky si můžete udělat orientační představu o výši měsíčních splátek hypotéky. O vše ostatní se pak postaráme my ve spolupráci s našimi obchodními partnery.
14 940 Kč
* Odhadovaná měsíční splátka vychází z výše úvěru Kč s pevnou úrokovou sazbou % po celou dobu trvání úvěru.
Uživatel serveru RealityMIX.cz (dále jen „Server“) dostupného na internetové adrese (URL) https://www.realitymix.cz, který provozuje společnost DALTEN media s.r.o., se sídlem Na Harfě 916/9a, Praha 9, 190 00, IČO: 271 35 306 (dále jen „Správce“) jako provozovateli tohoto Serveru uděluje svůj výslovný souhlas v souladu s ustanovením § 5 zákona č. 101/2000 Sb. O ochraně osobních údajů a o změně některých zákonů, v platném znění (dále jen „zákon o ochraně osobních údajů“), se zpracováním uživatelem poskytnutých osobních údajů a dalších dat.
Uživatel poskytuje Správci osobní údaje v rozsahu: jméno, příjmení, e-mailová adresa, telefonický kontakt a další data, a to z důvodu projeveného zájmu o nemovitost, kde prostřednictvím služby Serveru Správce osloví Uživatel inzerenta uvedeného v detailu
nemovitosti - Swiss Life Select Reality (IČ 24260444) se zájmem o jeho služby. Tato společnost je součástí seskupení/sítě/franšízového modelu realitních kanceláří, jejich seznam můžete zobrazit kliknutím na tento odkaz.
Fincentrum a.s. (IČ 24260444) , Swiss Life Select Reality (IČ 24260444)
Uživatel tyto osobní údaje poskytuje dobrovolně a bere na vědomí, že součástí služeb Správce, které Správce Uživateli poskytuje, je vyhledání všech Uživateli vyhovujících (dle parametrů - cena, typ nemovitosti, lokalita atd.) nemovitostí. Správce za tímto účelem provozuje aplikace Hlídací pes a newsletter. Tyto služby je možné z každého zaslaného emailu odhlásit. Souhlas se zpracováním osobních údajů Uživatel poskytuje Správci na dobu neurčitou s tím, že svůj udělený souhlas může Uživatel kdykoliv na drese správce info@realitymix.cz odvolat. Správce garantuje Uživateli i další práva uvedené v ustanovení §11 a §21 zákoba č. 101/200 Sb. Ve znění pozdějších předpisů.
Více informací o zpracování údajů získáte zde (realitymix.cz/zasady-ochrany-osobnich-udaju)